
Pronájem bytu 2+1 • 62 m² bez realitkyAbendstr. 15 b Magdeburg Neue Neustadt Sachsen-Anhalt 39124
Abendstr. 15 b Magdeburg Neue Neustadt Sachsen-Anhalt 39124MHD 4 minuty pěšky • GarážPřístavba dokončená v roce 2018 je moderní a díky čtyřem obytným jednotkám velmi přehledná. Navíc byla postavena dozadu, což přispívá ke klidnému bydlení.
Renovovaný bytový dům se nachází na adrese Abendstr. 15 b ve čtvrti „Neue Neustadt“. Tato čtvrť vyniká svou centrální polohou a velmi dobrou dostupností veřejné dopravy. Tramvaj, autobus i různé možnosti nakupování jsou dosažitelné pěšky během asi 300 metrů. Do centra se dostanete během několika minut, ať už veřejnou dopravou nebo autem. Lékaři, lékárny, fitness centra a obchody s každodenními potřebami jsou rovněž v bezprostřední blízkosti.
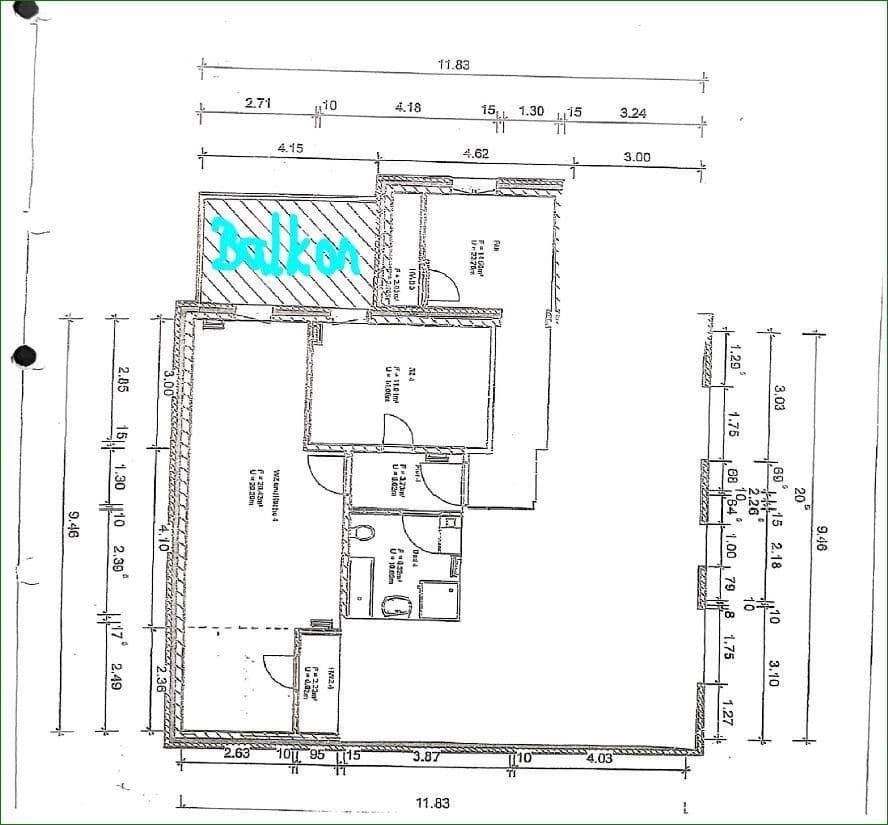
Dvojpokojový byt dokončený v roce 2018 disponuje moderně obloženou koupelnou s vanou a sprchou, dále s ručníkovým topným tělesem a prostorem pro pračku. Místnosti jsou vybaveny kvalitní laminátovou podlahou. Byt dále nabízí moderní vestavěnou kuchyň včetně varné desky a myčky nádobí.
Prostorný balkon zve ke komfortnímu posezení na čerstvém vzduchu.
Navíc je v případě potřeby možné pronajmout garáž, která se nachází přímo pod bytem ve společném prostoru (oddělené úložné prostory pro všechny čtyři nájemníky).
Pronájem probíhá přímo a bez provize od majitele.
Pro pronájem je zapotřebí vyplnit osobní údaje, doložit potvrzení o příjmu, potvrzení od předchozího pronajímatele a složit kauci ve výši dvou nájmů (bez zahrnutí provozních nákladů).
V případě dalších dotazů jsem Vám kdykoli rád k dispozici telefonicky. Prohlídka bytu je možná i krátkodobě.
Základní znalost němčiny je vyžadována.
V okolí nemovitosti najdete
Stále hledáte to pravé?
Nastavte si hlídacího psa. Nabídky vybrané na míru dostanete souhrnně 1× denně e-mailem. S Premium profilem máte k ruce hlídačů rovnou 5 a když se něco objeví, informují vás obratem.













