
Pronájem bytu 3+1 • 82 m² bez realitkyAm Brüggeberge 14, , Dolní Sasko
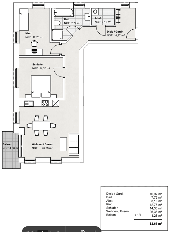
Am Brüggeberge 14, , Dolní SaskoMHD 5 minut pěšky • VýtahByt 7 – prostorné bydlení pro páry, rodiny a seniory
Novostavba nabízí moderní obytný prostor s vysokou kvalitou pobytu. Každý byt disponuje otevřeným obývacím a jídelním prostorem s přilehlou kuchyní, moderní koupelnou s dešťovou sprchou nebo vanou a jednou až dvěma světlými ložnicemi. Navíc máte k dispozici praktický úložný prostor přímo v bytě – skutečné plus pro každodenní život a pořádek.
Byty se nacházejí v 1. a 2. patře a disponují prostornými balkony orientovanými na jihozápad – ideální pro relaxaci uprostřed zeleně. Byty v přízemí mají terasy, které zve k posezení.
Díky bezbariérovému uspořádání, výtahu v domě a nízkoprahovým vstupům je objekt ideální také pro seniory nebo osoby s omezenou mobilitou. Vybavení je moderní, nenáročné na údržbu a zaměřené na příjemné životní prostředí.
V exteriéru zajišťují pečlivě udržované cesty, převážně kryovaná parkovací místa s předem připravenou infrastrukturou pro elektromobilitu dodatečný komfort a udržitelnost.
Fümmelse se nachází jen několik minut jízdy od centra Wolfenbüttels a zároveň nabízí všechny výhody klidného obytného prostředí. Místo je charakteristické rodinnými domy, malými bytovými domy a přátelskou sousedskou komunitou – ideální pro rodiny s dětmi a pro ty, kteří chtějí strávit důchod v příjemné atmosféře.
Všechny důležité zařízení jsou v bezprostřední blízkosti:
- Základní škola je dosažitelná během několika minut chůze
- Mateřská škola a zařízení denní péče ASB se nacházejí přímo v sousedství
- Hřiště leží naproti nemovitosti – perfektní pro mladé rodiny
- Obchodní příležitosti, lékaři a další poskytovatelé služeb jsou rychle dostupní
- Velmi dobré napojení do centra Wolfenbüttels a na silnici B79
V Fümmelse naleznete klidné bydlení se všemi výhodami blízkosti města – zasazené do zeleného prostředí s vysokou kvalitou života.
Světlé prostory s moderními dispozicemi
Bezbariérové vstupy a výtah v domě
Moderní koupelna s dešťovou sprchou nebo vanou
Úložný prostor přímo v bytě
Novostavba, kvalitní podlahové a obkladové materiály
Podlahové vytápění
Máte zájem? Rádi vám zašleme podrobný expoziční materiál se všemi informacemi o bytu, dispozicích a nájemních podmínkách – napište nám krátkou zprávu.
V okolí nemovitosti najdete
Stále hledáte to pravé?
Nastavte si hlídacího psa. Nabídky vybrané na míru dostanete souhrnně 1× denně e-mailem. S Premium profilem máte k ruce hlídačů rovnou 5 a když se něco objeví, informují vás obratem.








