
Pronájem bytu 3+1 • 96 m² bez realitkyAm Brüggeberge 14, , Dolní Sasko
Am Brüggeberge 14, , Dolní SaskoMHD 5 minut pěšky • VýtahByt 2 – prostorné bydlení pro páry, rodiny a seniory
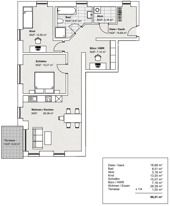
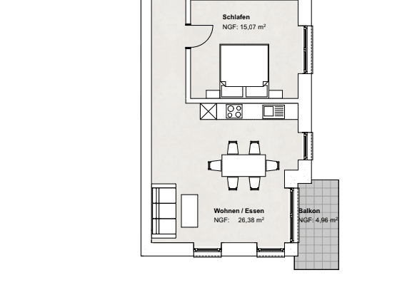
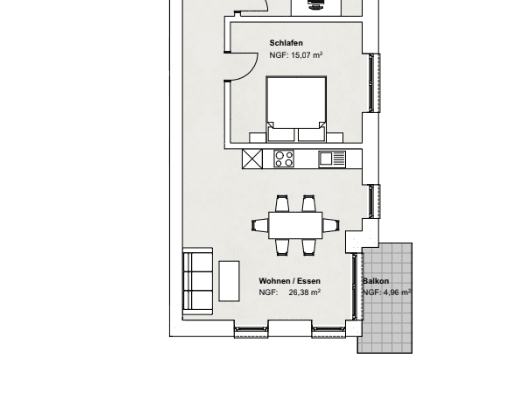
Novostavba poskytuje moderní obytné prostory s vysokou kvalitou pobytu. Každý byt disponuje otevřeným obývacím a jídelním pokojem s přilehlou kuchyní, moderní koupelnou se sprchou nebo vanou a jednou až dvěma světlými ložnicemi. Navíc máte k dispozici praktický úložný prostor uvnitř bytu – skutečné plus pro každodenní život a pořádek.
Byty se nacházejí v 1. a 2. patře a mají prostorné balkony orientované na jihozápad – ideální k odpočinku v zeleném prostředí. Byty v přízemí mají terasy, které zve k posezení.
Díky bezbariérovému uspořádání, výtahu v domě a bezprahovým vstupům je objekt ideálně vhodný také pro starší osoby nebo osoby se sníženou pohyblivostí. Vybavení je moderní, nenáročné na údržbu a zaměřené na příjemné bydlení.
Vně budovy se postarají upravené chodníky a převážně krytá parkovací místa s připravenou infrastrukturou pro elektromobilitu, což přináší další komfort a udržitelnost.
Fümmelse se nachází jen několik minut jízdy od centra Wolfenbüttels a zároveň nabízí všechny výhody klidného obytného prostředí. Místo je charakterizováno rodinnými domy, malými vícegeneračními domky a přátelským sousedstvím – ideální pro rodiny s dětmi a pro lidi, kteří chtějí strávit důchod v příjemné atmosféře.
Všechny důležité zařízení se nacházejí v bezprostřední blízkosti:
• Základní škola je dosažitelná za pár minut chůze
• Mateřská škola a zařízení denní péče ASB se nacházejí přímo v okolí
• Hřiště se nachází naproti nemovitosti – ideální pro mladé rodiny
• Obchody, lékaři a další služby jsou rychle dosažitelný
• Velmi dobré spojení do centra Wolfenbüttels a k silnici B79
Ve Fümmelse naleznete klidné bydlení se všemi výhodami blízkosti města – zasazené do zeleného okolí s vysokou kvalitou života.
Světlé místnosti s moderními dispozicemi
Bezbariérové vstupy a výtah v domě
Moderní koupelna se sprchou nebo vanou
Úložný prostor uvnitř bytu
První nájem, kvalitní podlahy a stěnové obklady
Podlahové vytápění
Máte zájem? Rádi Vám zašleme podrobný expozé se všemi informacemi o bytu, dispozicích a podmínkách pronájmu – stačí nám napsat krátkou zprávu.
V okolí nemovitosti najdete
Stále hledáte to pravé?
Nastavte si hlídacího psa. Nabídky vybrané na míru dostanete souhrnně 1× denně e-mailem. S Premium profilem máte k ruce hlídačů rovnou 5 a když se něco objeví, informují vás obratem.








