Pronájem nebytového prostoru • 270 m² bez realitkyWartburgstr. 5, , Durynsko
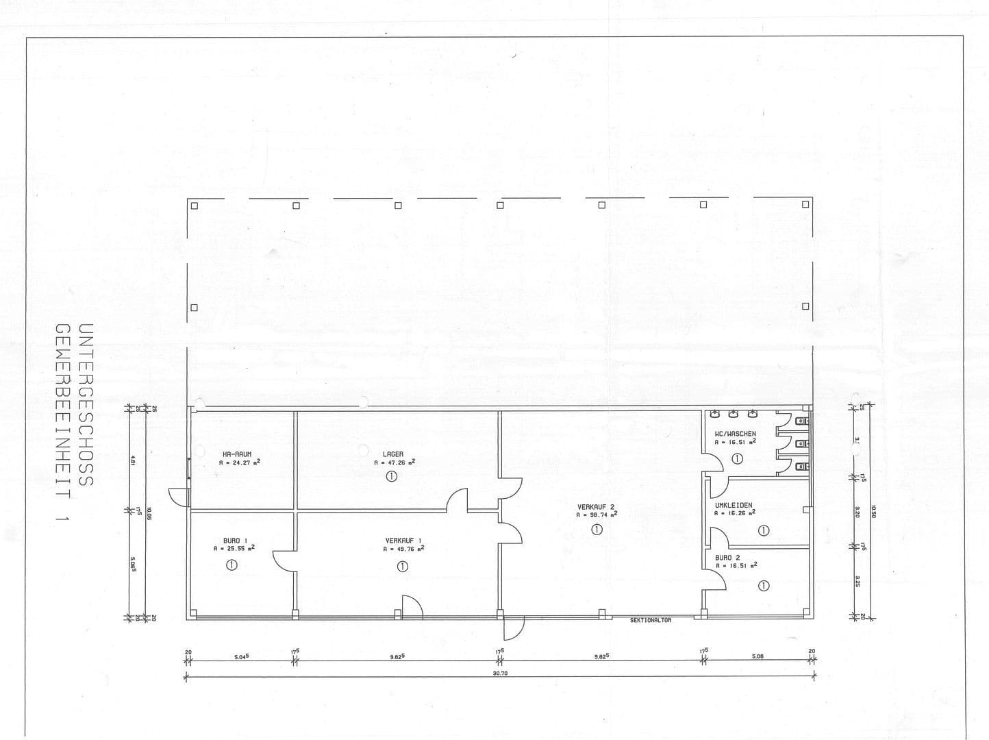
Wartburgstr. 5, , DurynskoMHD 1 minuta pěškyNabízená komerční jednotka se nachází v budovním komplexu postaveném v roce 1992 v přízemí a disponuje cca 270 m² užitné plochy. Na přilehlém pozemku o rozloze cca 1000 m², který patří k nájemnímu objektu, má budoucí nájemce k dispozici dále cca 300 m² travnaté plochy (NEJSOU ZAHRNUTY V NÁJEMNÉM CENĚ. CENA: 1,00 €/m²) a cca 300 m² dlažebního parkoviště. Komerční jednotka se nachází v přízemí a je zcela oddělena od dvou dalších pronajatých komerčních jednotek (sportovní- fyzioterapeutické studio + výrobce nářadí), které se nacházejí na zadní straně budovy. Užitná plocha je rozdělena do 7 místností:
1x Sanitární místnost cca 16,5 m², se 3 toaletami a 3 umyvadly
1x Šatna cca 16 m²,
1x Kancelář/Kuchyň cca 16,5 m² s obklady stěn a přípojkami pro kuchyňské vybavení
1x Výstavní/produkční/prodejní prostory cca 100 m² s velkou prosklenou čelní stěnou
1x Výstavní/prodejní/konzultační prostory cca 50 m² s velkou prosklenou čelní stěnou,
1x Sklad/produkce cca 50 m²,
1x Kancelář/prodej cca 25 m².
Cca 30 m dlouhé prosklené čelní stěny a okna nabízejí volný výhled na nezastavěnou krajinu.
Komerční jednotka je díky dispozici, poloze a vybavení využitelná pro různé účely.
Dosud byly prostory využívány jako prodejní a výstavní prostory nábytku.
Vybavení
Nabízené komerční prostory se nacházejí v Stedtfeld OT Eisenach/Gewerbepark. Místnosti jsou situovány přímo u ulic Oberlandstr./Wartburgstr. a tudíž ve velmi centrální poloze. Nejbližší spojení s BA 4 jsou: Eisenach-West a Herleshausen (cca 8 minut jízdy autem). Autobusová zastávka se nachází přímo vedle komerčního objektu. Zbrusu nová cyklostezka (50 m vzdálená) vede podél řeky směrem do Eisenachu.
Podlahové krytiny jsou z laminátu a dlaždic.
Venku markýzy a uvnitř žaluzie.
Topení: teplá centrální vytápění (dálkové vytápění).
Teplá voda: průtokový ohřívač nebo kotel na dálkové vytápění.
Optické vlákno již vede do budovy a bude brzy připojeno.
Zcela nově instalovaná fotovoltaická elektrárna o výkonu cca 30 kW nabízí možnost dodávat levnou elektřinu.
Parametry nemovitosti
| Stáří | Nad 50 let |
|---|---|
| Číslo inzerátu | 955267 |
| Plocha pozemku | 1 000 m² |
| Stav | Dobrý |
|---|---|
| Plocha nebytového prostoru | 270 m² |
| Cena za jednotku | 6 € / m2 |
Co tato nemovitost nabízí?
| MHD 1 minuta pěšky |
V okolí nemovitosti najdete
Stále hledáte to pravé?
Nastavte si hlídacího psa. Nabídky vybrané na míru dostanete souhrnně 1× denně e-mailem. S Premium profilem máte k ruce hlídačů rovnou 5 a když se něco objeví, informují vás obratem.



























