Prodej domu • 1950 m² bez realitkyPforzheim Pforzheim Baden-Württemberg 75175
Pforzheim Pforzheim Baden-Württemberg 75175MHD 5 minut pěšky • Výtah • Parkování • GarážProdej bez provize od soukromé osoby
Prosím, žádné poptávky makléřů
Nabízený multifunkční dům vám poskytuje:
- velmi dobrou strukturu nájemníků
- výborný stav údržby
- žádný zásek v opravách
- dobré dispozice
- rok výstavby 1995
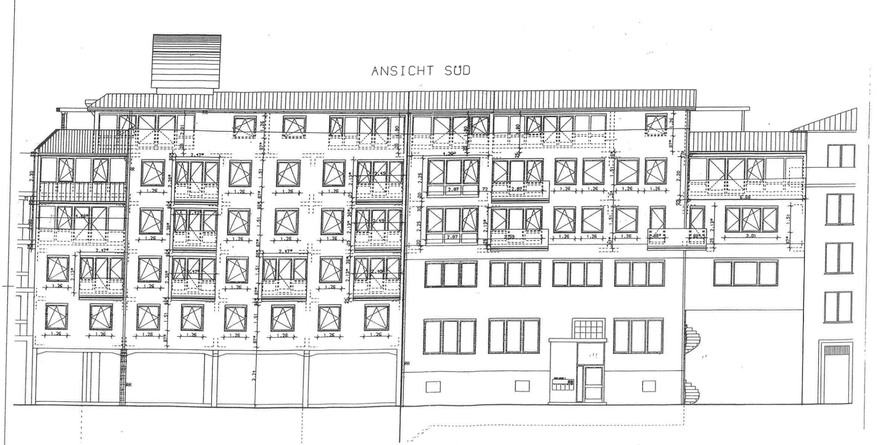
Základní údaje
- Rok výstavby: 1995
- Podlahová plocha: 1950 m²
- 19 parkovacích míst, 7 garáží
- Roční chladné nájmy: 236.360 €
- Kupní cena: 4,485 miliónu €
- Hrubá výnosnost: 5,27 %
- Faktor: 19
- Kupní cena za m²: 2300 €
Technický stav:
- Izolovaná fasáda
- Plastová okna s dvojitým izolačním zasklením
- Vodoinstalace, topení a elektroinstalace odpovídají nejnovějším technologickým standardům (rok 1995)
- 14 bytových jednotek kompletně zrekonstruováno včetně vysoce kvalitních vestavěných kuchyní
- 10 bytových jednotek v původním stavu typickém pro rok 1995
- Komplexní rekonstrukce výtahu (nová lana, nové řízení apod.)
- Dálkové vytápění s novým ohřívačem teplé vody, řídicím systémem, výměníkem tepla a čerpadly
Struktura nájemníků:
- Žádné nedoplatky na nájmu
- Žádné právní spory
- Depozity jsou plně k dispozici
- Všichni nájemníci mluví výborně německy
- Všichni nájemníci jsou zaměstnaní (s výjimkou 4 důchodcovských párů)
Multifunkční dům se nachází v centrální a žádané lokalitě ve čtvrti Au, 75175 Pforzheim. Okolí kombinuje městský šarm s dobrou infrastrukturou a vysokou kvalitou života:
• Veřejnou dopravu dosáhnete pěšky, takže máte rychlé spojení do všech částí Pforzheimu i okolí.
• Nákupní možnosti pro každodenní potřeby najdete v bezprostřední blízkosti: supermarkety, pekárny a menší obchody jsou pohodlně dostupné pěšky.
• Pro péči o děti a školy existují blízké zařízení, což je velkou výhodou zejména pro rodiny.
• Lékaři, lékárny a další služby jsou dostupné v krátké vzdálenosti, což zajišťuje krátké cesty a možnost vyřídit řadu záležitostí bez použití auta.
• Pro volný čas a odpočinek nabízí Pforzheim mnoho možností – parky, zelené plochy a blízkost města činí tuto lokalitu atraktivní. Typické destinace jako Wildpark nebo Enzauen jsou rychle dosažitelné.
• Dům se nachází v městské oblasti s dobrou infrastrukturou, městským charakterem a krátkými cestami – ideální, pokud chcete kombinovat městský život s klidnými okamžiky v blízkosti.
Pro studenty:
- Vysoká škola ekonomiky/techniky a designu v bezprostřední blízkosti
Pro dojíždějící:
- 5 minut autem k vjezdu na dálnici A8
- 10 minut pěšky k hlavnímu nádraží
- Autobusové zastávky
Pro každodenní potřeby v bezprostřední blízkosti:
- Nemocnice
- Břeh řeky Enz
- Penny Markt / obchod se zeleninou / döner / čínská restaurace / atd.
- Kreativní centrum EMMA
- Café Roland
- Mauritius
- Irish Pub
- Městská knihovna
- Kongresové centrum
Parametry nemovitosti
| Stáří | Nad 50 let | 
|---|---|
| Stav | Po rekonstrukci | 
| PENB | C - Úsporná | 
| Plocha pozemku | 1 078 m² | 
| Cena za jednotku | 2 300 € / m2 | 
| Dostupné od | 4. 11. 2025 | 
|---|---|
| Číslo inzerátu | 955456 | 
| Užitná plocha | 1 950 m² | 
| Celkem podlaží | 7 | 
Co tato nemovitost nabízí?
| Balkón | |
| Sklep | |
| Parkování | 
| Bezbariérový přístup | |
| Garáž | |
| Výtah | |
| MHD 5 minut pěšky | 
V okolí nemovitosti najdete
Stále hledáte to pravé?
Nastavte si hlídacího psa. Nabídky vybrané na míru dostanete souhrnně 1× denně e-mailem. S Premium profilem máte k ruce hlídačů rovnou 5 a když se něco objeví, informují vás obratem.

















