Pronájem bytu 2+kk • 59 m² bez realitkyWeiden i.d.OPf. Rothenstadt Bayern 92637
Weiden i.d.OPf. Rothenstadt Bayern 92637MHD 1 minuta pěšky • ParkováníSvětlý, přátelský 2,5-pokojový byt v přízemí malého dvojrodinného domu
– velká zahrada (100 € / měsíc)
– parkovací místo pro automobil (40 € / měsíc)
– prakticky řešené místnosti
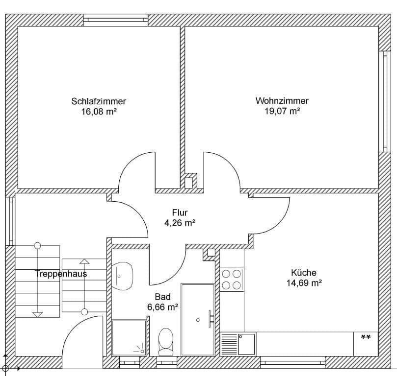
– částečně zrekonstruovaná koupelna s denním světlem, vybavená vanou, sprchou, umyvadlem a toaletou
– laminátové podlahy s dřevěným vzhledem
– obytná kuchyně s kuchyňským koutkem a kvalitními spotřebiči
– sklep pro nájemníky
– technická místnost
– přípojka pro pračku ve sklepě
– všechny stěny a stropy jsou neutrálně bíle natřeny
Domácí mazlíčci nejsou povoleni.
Přesvědčte se osobně o tomto krásném bytě a domluvte si termín prohlídky.
Byt se nachází v Weiden-Rothenstadt, čtvrti města Weiden v Horním Bavorsku, a má velmi výhodnou dopravní polohu. Dálnici i veřejnou dopravu dosáhnete během krátké doby. Rovněž blízké obchodní možnosti v Rothenstadtu a dobré autobusové spojení do Weidenu přispívají k atraktivní poloze tohoto bytu.
Noční akumulační kaminy zobrazené na fotografiích budou ještě odstraněny. Vytápění místností je zajištěno novou, energeticky úspornou a cenově efektivní split klimatizační jednotkou (tepelným čerpadlem). V létě může tato jednotka sloužit také k chlazení. Koupelna je vybavena průtokovým ohřívačem a teplovzdušným ventilátorem pro rychlé a příjemné teplo.
Náklady na vytápění nejsou zahrnuty ve službách, jelikož vytápění je provozováno a účtováno prostřednictvím elektrického připojení nájemce.
Byt je vhodný pro jednotlivce nebo klidný pár (nejlépe nekuřáky), kteří mají radost z péče o zahradu. Díky velké zahradě nabízí výhody samostatné polohy. Vlastníci domu nebudou pravidelně přítomni v horním patře, takže si můžete užívat klid a pocit, že bydlíte v rodinném domě.
V okolí nemovitosti najdete
Stále hledáte to pravé?
Nastavte si hlídacího psa. Nabídky vybrané na míru dostanete souhrnně 1× denně e-mailem. S Premium profilem máte k ruce hlídačů rovnou 5 a když se něco objeví, informují vás obratem.













