Prodej nebytového prostoru • 1490 m² bez realitkyZeppelinring 12-14, , Hessen
Zeppelinring 12-14, , HessenMHD 8 minut pěškyNabízený průmyslový objekt se nachází na prostorném pozemku o celkové ploše cca 3.383 m², který je určen jako průmyslová zóna dle § 8 BauNVO. Nabízí ideální kombinaci výrobních, kancelářských a volných ploch, čímž je vynikající pro rozmanité průmyslové využití.
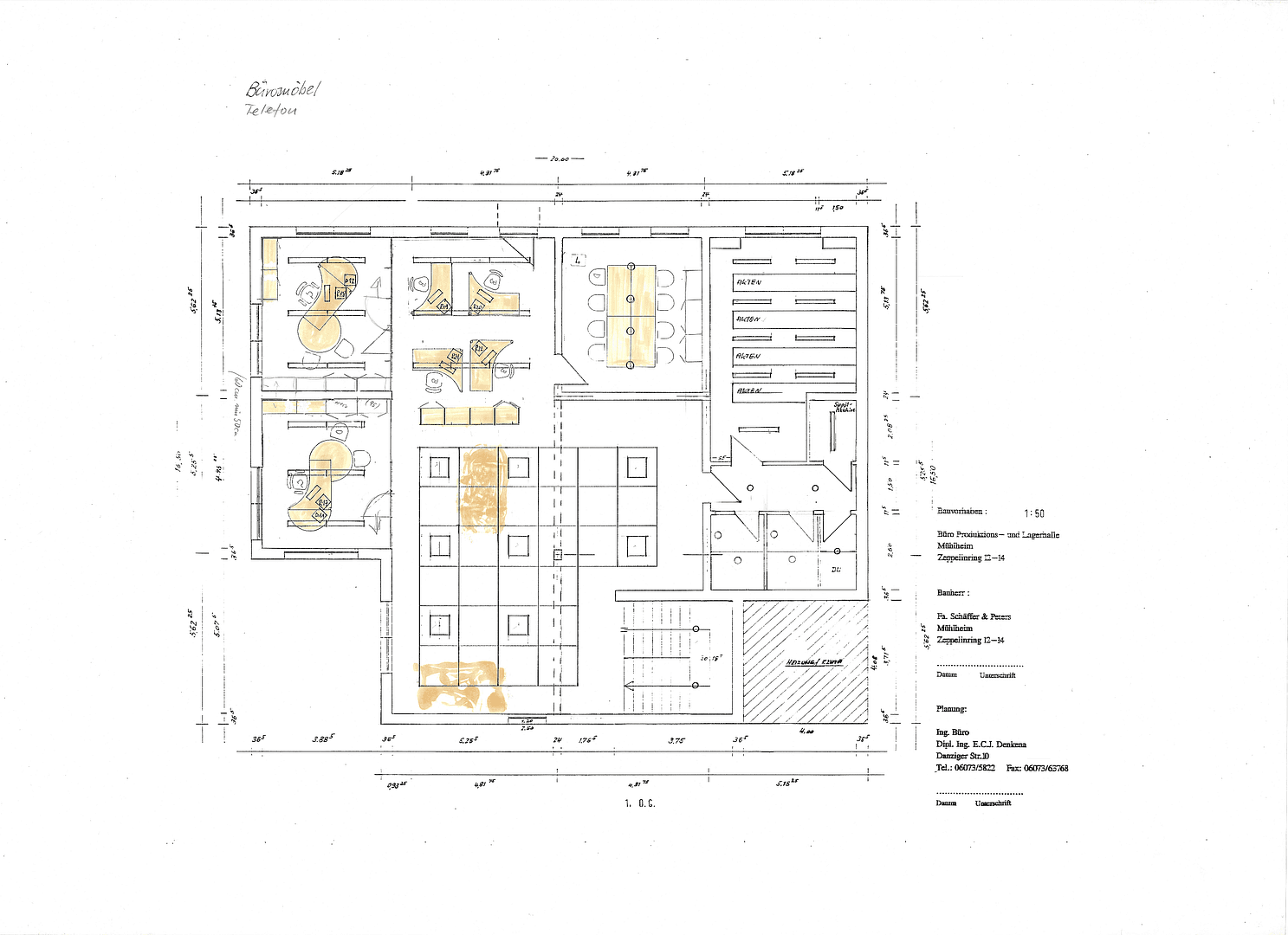
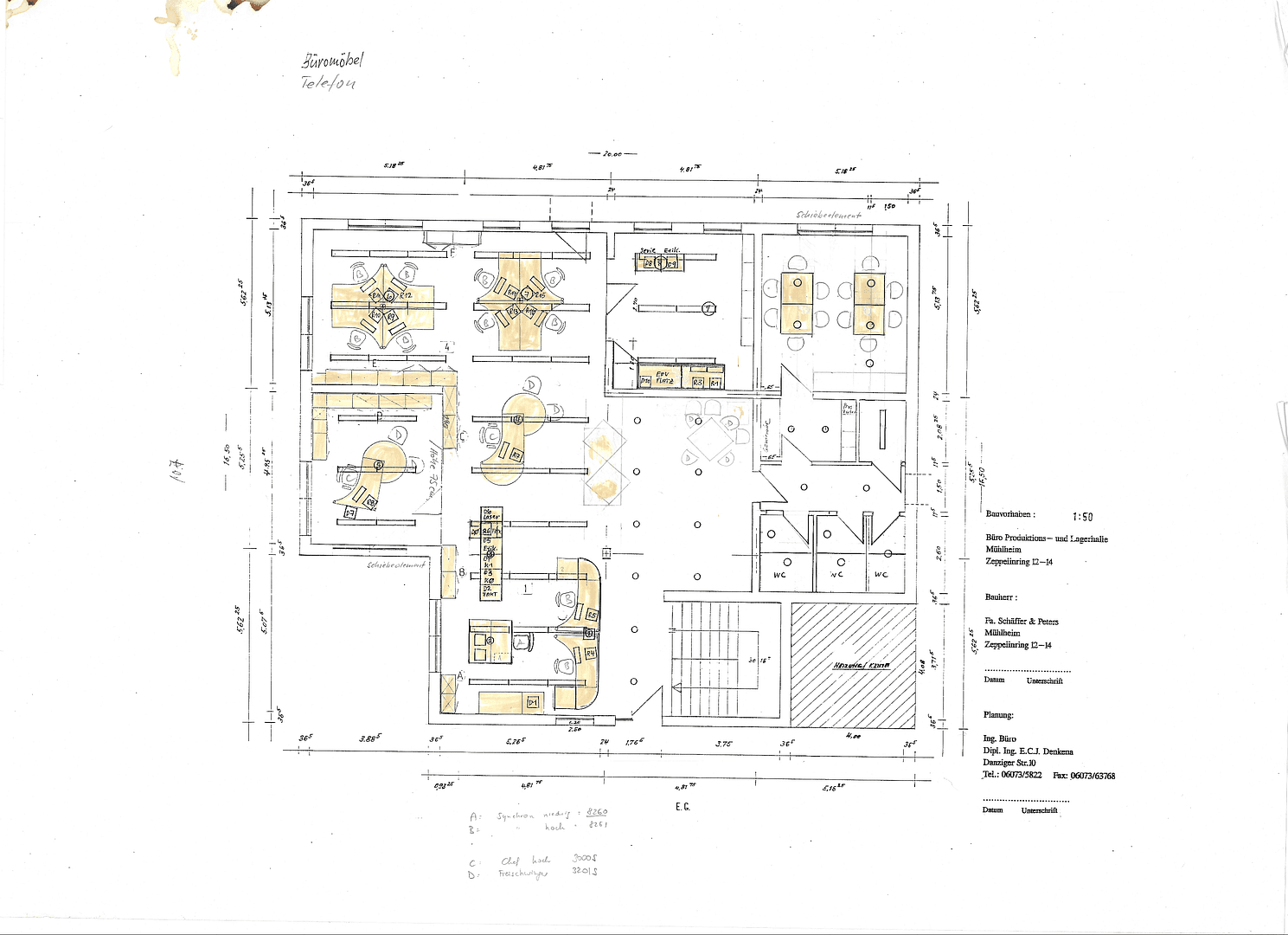
Stávající výrobní hala s čistou plochou přibližně 900 m² byla postavena v roce 1983 a disponuje výškou haly cca 3,60 m. Přiléhající dvoupodlažní kancelářská budova z roku 1992 nabízí celkem přibližně 590 m² kancelářských prostor rozprostřených mezi přízemím a prvním patrem. Prostory jsou funkčně navrženy a poskytují prostor pro administrativu, prodej či technické kanceláře.
Dále je k dispozici prostorná volná plocha o rozloze cca 2.000 m², která nabízí dostatek místa pro parkovací plochy, venkovní skladování nebo budoucí rozšíření.
Územní plán stanovuje zastavěnou plochu (GRZ) 0,8, což umožňuje zastavět až 2.706 m². Koeficient zastavěné plochy (GFZ) 2,0 umožňuje povolenou zastavěnou plochu až 6.766 m² při maximálně čtyřech plných podlažích a volné konstrukci.
Obzvláště stojí za zmínku rozvojový potenciál objektu: V současnosti existuje nezastavěná část pozemku o rozloze cca 1.317,5 m², která je momentálně krátkodobě pronajata. Tato část nabízí atraktivní možnosti pro rozšíření nebo novou výstavbu, aby bylo možné optimálně využít dostupné rezervy GRZ a GFZ.
Celkově se jedná o všestranně využitelný průmyslový areál se solidní stavební výbavou, prostornými venkovními plochami a značným rozvojovým potenciálem v žádané průmyslové lokalitě. Nemovitost se nachází v průmyslové zóně v Mühlheimu – oblíbeném místě pro firmy z oblasti obchodu, výroby a logistiky. Nedaleká spolková silnice B43 zajišťuje vynikající dopravní dostupnost a rychlé spojení v rámci celého regionu. Také letiště ve Frankfurtu lze velmi rychle dosáhnout, což činí lokalitu obzvlášť zajímavou pro mezinárodní firmy. Četné průmyslové podniky a poskytovatelé služeb v okolí dále podtrhují vynikající polohu.
1. 2× skládací vratá v úrovni terénu
2. Stropní osvětlení
3. Sanitařní a sociální místnosti
4. Dostupná parkovací místa
5. Elektroinstalace / vysokonapěťový proud
6. K dispozici WC
7. Kuchyň
8. Podlahové vytápění v kancelářské budově
9. Plynové centrální topení
10. Připojení na optickou síť
Prodej bez provize a bez makléře.
Parametry nemovitosti
| Stáří | Nad 50 let | 
|---|---|
| Stav | Dobrý | 
| Plocha nebytového prostoru | 1 490 m² | 
| Cena za jednotku | 1 473 € / m2 | 
| Dostupné od | 31. 10. 2025 | 
|---|---|
| Číslo inzerátu | 956097 | 
| Plocha pozemku | 3 383 m² | 
Co tato nemovitost nabízí?
| MHD 8 minut pěšky | 
V okolí nemovitosti najdete
Stále hledáte to pravé?
Nastavte si hlídacího psa. Nabídky vybrané na míru dostanete souhrnně 1× denně e-mailem. S Premium profilem máte k ruce hlídačů rovnou 5 a když se něco objeví, informují vás obratem.




























