Pronájem nebytového prostoru • 221 m² bez realitkySchmidtstedter Str. 28 Erfurt Altstadt Thüringen 99084
Schmidtstedter Str. 28 Erfurt Altstadt Thüringen 99084MHD 2 minuty pěškyKomerční prostor se nachází v přízemí přední budovy obytného a obchodního domu.
Stav:
Prostor momentálně není připraven k nastěhování a je potřeba renovace. Koncept předpokládá, že úprava a vybavení bude provedeno individuálně (na vlastní náklady) nájemkyní či nájemcem. Na oplátku je po dohodě možná sleva na nájemném v prvním roce pronájmu.
Varianty využití:
Prostor může být využit jako jedna velká souvislá jednotka, nebo po odpovídající přestavbě rozdělen na dvě samostatné jednotky. Jednotky již mají samostatné vchody, takže by mohly být využity různými podniky.
Společné využití vhodnými obory je rovněž možné, např. kombinací kancelářských prostor, ordinací nebo prostor pro kurzy.
Vzhledem k vyšší náročnosti přestavby na oddělené jednotky je prostor rád pronajímán jako celek.
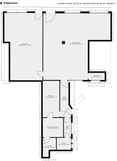
Rozložení prostoru:
Prostor disponuje dvěma vchody směrem k ulici a zadním východem. Velká přepážka v hlavní místnosti může být v případě potřeby odstraněna. Je možná výlohová fasáda směřující k ulici. V zadní části se nachází doplňkový prostor, který nabízí místo pro uskladnění a možnost instalace sanitárního zařízení a kuchyňského koutku.
Vhodné využití:
Vzhledem k tomu, že se v budově nacházejí také obytné prostory, je preferováno klidné podnikatelské využití. Zejména vhodná jsou kancelářská, ordinace nebo služby jako kadeřnictví, kosmetika či koučink. Gastronomické provozy nebo maloobchod s potravinami nejsou žádoucí kvůli dodávkám a možné hlučnosti.
Prohlídka:
V případě zájmu a přání prohlídky prosíme o zaslání dotazu se zahrnutím následujících údajů:
- požadovaná velikost plochy (počet jednotek)
- druh podnikání
- plánované datum nastěhování
Obytný a obchodní dům se nachází na ulici Schmidtstedter, centrálně v Erfurtu. Hlavní nádraží a Anger 1 jsou dosažitelné pěšky za několik minut. Lokalita nabízí velmi dobrou dostupnost k veřejné městské i dálkové hromadné dopravě, stejně jako krátké vzdálenosti k nákupním možnostem a centru města.
Rozhodnutí zůstává na nájemkyni či nájemci.
Parametry nemovitosti
| Stáří | Nad 50 let |
|---|---|
| Plocha nebytového prostoru | 221 m² |
| Číslo inzerátu | 956134 |
|---|---|
| Cena za jednotku | 9 € / m2 |
Co tato nemovitost nabízí?
| MHD 2 minuty pěšky |
V okolí nemovitosti najdete
Stále hledáte to pravé?
Nastavte si hlídacího psa. Nabídky vybrané na míru dostanete souhrnně 1× denně e-mailem. S Premium profilem máte k ruce hlídačů rovnou 5 a když se něco objeví, informují vás obratem.




