Prodej domu 7+1 • 200 m² bez realitky, Porýní-Falc
, Porýní-FalcMHD 3 minuty pěšky • ParkováníV historickém jádru Monsheimu (část Kriegsheim) vás čeká neobvyklý obytný dům:
Kompletně zrekonstruovaná budova v půvabném třístranném dvoře, která spojuje moderní komfort bydlení s historickým šarmem.
Dům byl v roce 2001 kompletně a kvalitně zrekonstruován a nabízí obytnou plochu cca 200 m².
Z uzavřeného vnitřního dvora, který je sdílen s dalšími dvěma subjekty, vstoupíte do domu přes prostornou halu a hned se ocitnete před 60 m² velkou, nádhernou křížovou klenbou, která tvoří srdce domu.
Ta je momentálně využívána jako obytná kuchyň a má vstup na dvůr a terasu s výhledem do malého zahrádky vzadu.
V přízemí se nachází také hostinská toaleta se sprchou, sklepa a další místnost se saunou. Z haly vede také vstup do klenutého sklepa.
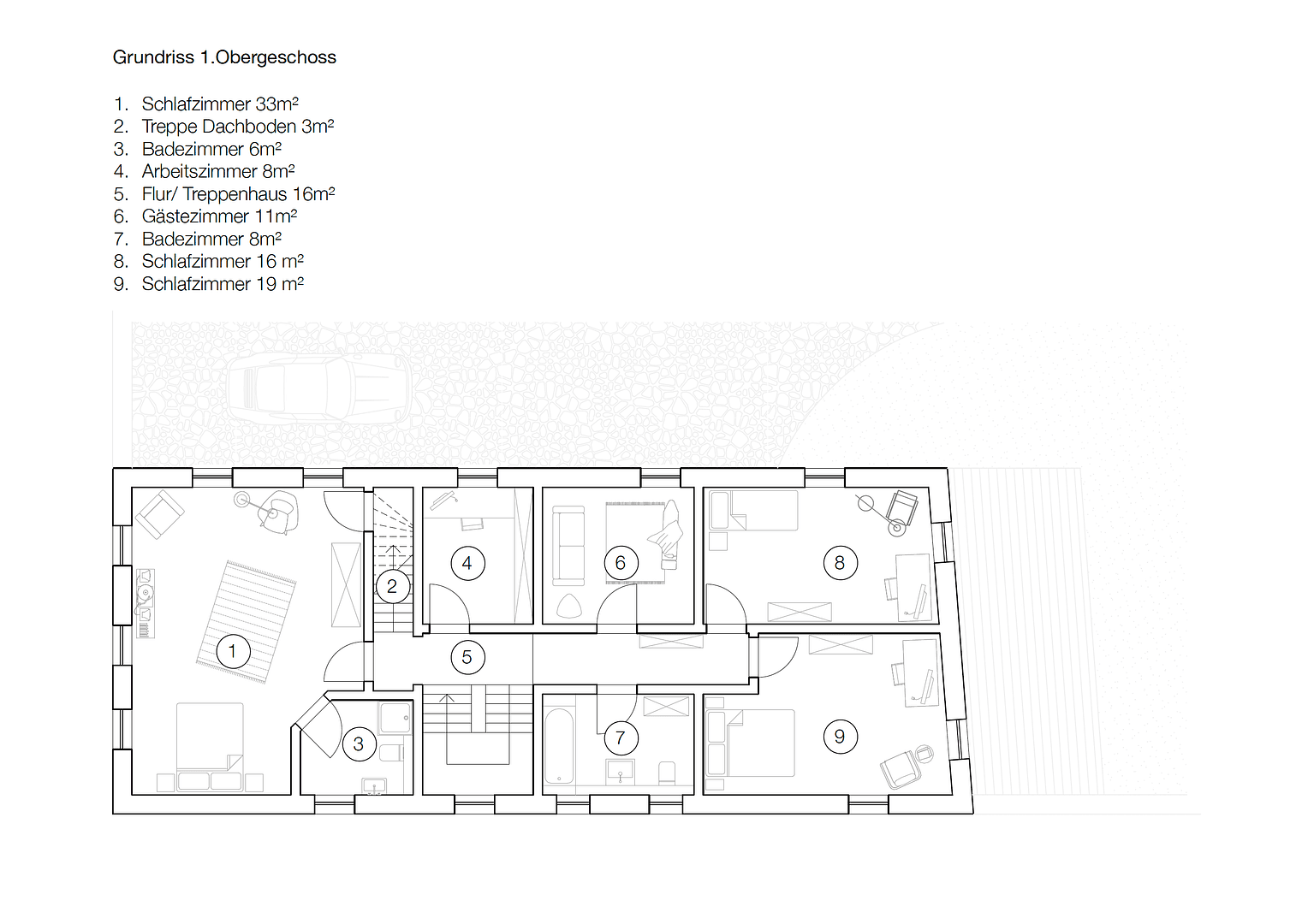
Širom schodištěm se dostanete do patra, kde se nacházejí 2 další koupelny, 4 pokoje a kancelář.
Velký podkrovní prostor je ještě k dokončení dle vlastních představ. Plynové topení bylo obnoveno v roce 2020.
V patře byly položeny dřevěné podlahy, v přízemí cementové dlaždice, v křížové klenbě je podlahové vytápění a nachází se zde také přípojka pro krb.
Na slunném Rheinhessenu, ve vinařské obci Monsheim/Kriegsheim.
V okolí nemovitosti najdete
Stále hledáte to pravé?
Nastavte si hlídacího psa. Nabídky vybrané na míru dostanete souhrnně 1× denně e-mailem. S Premium profilem máte k ruce hlídačů rovnou 5 a když se něco objeví, informují vás obratem.
















