
Prodej domu 5+1 • 254 m² bez realitkyPforzheim Pforzheim Baden-Württemberg 75172
Pforzheim Pforzheim Baden-Württemberg 75172MHD 1 minuta pěšky • GarážDas prostorný rodinný dům z roku 1957 se nachází v čtvrti Südweststadt v Pforzheimu na přibližně 458 m² velkém pozemku, který je rozšířen o další pronajatou plochu přibližně 360 m². Okolí je charakterizováno rodinnými domy, zelenými ulicemi a poklidnou obytnou atmosférou – ideální pro všechny, kteří chtějí bydlet centrálně a přitom v klidu.
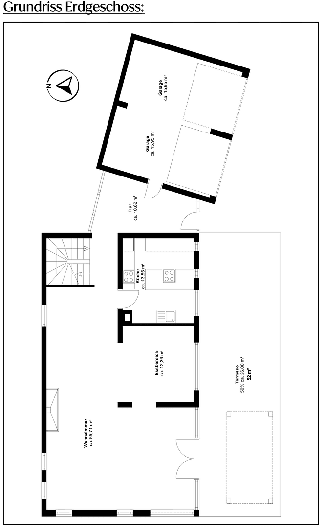
Obytná plocha přibližně 253,53 m² je rozdělena do tří úrovní. Ke vstupu do domu je přístup jak hlavním vchodem, tak přímo z dvojito garáže. Odtud vede cesta do kuchyně, která je vybavena kvalitní vestavěnou kuchyňskou linkou (2012) se zařízeným ostrovem. Srdcem přízemí je otevřený obývací a jídelní prostor, který je naplněn světlem díky velkým okenním plochám zimní zahrady. Dalším kouzlem prostoru je otevřený krb. Z obývacího pokoje se dostanete na prostornou jižní terasu (52 m²), která je částečně kryta masivním pavilonem a poskytuje přímý přístup do zahrady.
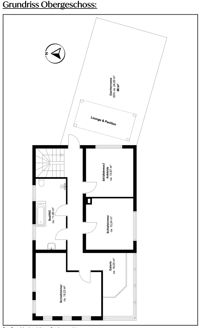
V horním patře se nacházejí tři dobře navržené místnosti, které lze flexibilně využít jako ložnici, dětský pokoj, pracovnu nebo pokoj pro hosty. Otevřená galerie vedoucí do obývacího pokoje i zde zajišťuje světlou atmosféru. Patro je doplněno velkou koupelnou s vanou, sprchou a dvojitým umyvadlem. Z chodby vstoupíte na prostornou střešní terasu (48 m²), která je částečně kryta masivním pavilonem a nabízí malebný výhled přes střechy Pforzheimu. Díky volné orientaci do všech světových stran zde můžete celý den využívat slunce – ideální pro snídaně, relaxaci či společenské večery.
V suterénu se kromě kotelny, technické místnosti a prádelny nachází další prostorná ložnice s přístupem na třetí terasu (15 m²), která je spojená s zahradou přírodní schodištěm z přírodního kamene. Díky polohování na svahu zde také proudí hojně denního světla, takže místnost vypadá světlá a příjemná. Patro je dále doplněno o další sprchovou koupelnu.
Vybavení domu je kvalitní a udržované: V obytných místnostech je dřevěná parketa z dubu, koupelny, vstupní hala a technické místnosti jsou obloženy snadno udržovatelnou dlažbou, v některých ložnicích se nachází částečně kobercová podlaha. Dům je vybaven převážně dřevěnými okny s dvojitým zasklením. Dodatečnou bezpečnost poskytují okna v přízemí a suterénu, která jsou opatřena bezpečnostním sklem. Zastínění zimní zahrady je realizováno automatickým nebo ručně ovládaným vnějším zastíněním, v ostatních místnostech pomocí elektrických žaluzií.
Dům je vytápěn olejovým kotlem (1993), který ohřívá všechny místnosti pomocí radiátorů.
Venkovní terasy jsou vybaveny antracitovými dlaždicemi (2021). Pozemek je velmi upravený: Zelené plochy jsou zvelebené, zahradní ploty byly obnoveny. Zavlažování probíhá přes inteligentně řízený systém a trávník je většinou sekán robotickým sekačkou. Malý rybník, venkovní sprcha, dřevěná chata, sklad dřeva a masivní krytá část terasy s pavilonem doplňují nabídku. Navíc jsou kolem domu k dispozici přípojky vody a elektřiny, které usnadňují údržbu zahrady.
Rodinný dům se nachází v čtvrti Südweststadt v Pforzheimu, v klidné a vyspělé obytné oblasti, která si díky své zvlněné struktuře a krásným výhledům získává zvláštní kouzlo. Zároveň je centrum města s pěší zónou a trhem rychle dostupné – pouhých asi 5 minut na kole nebo 10–15 minut chůze. Takto spojuje Südweststadt příjemnou obytnou atmosféru s výborným spojením s centrem města.
Pro každodenní potřeby je v bezprostředním okolí široká nabídka obchodů: Edeka, Aldi, Lidl a Rewe jsou dostupné během několika minut autem nebo dokonce pěšky. Navíc zde najdete pekárny, lékárny a menší specializované obchody. Kavárny a restaurace jsou k vidění jak v Südweststadt, tak v nedalekém centru města.
Rodiny ocení dobrou infrastrukturu: V bezprostřední blízkosti se nachází několik školkových zařízení. V okolí se nachází základní škola Osterfeld, škola Otterstein a škola Weiherberg – všechny jsou snadno dostupné pěšky, na kole nebo autobusem. Dále jsou snadno a rychle dostupné střední školy, jako je gymnázium Hebel, gymnázium Hilda, reálná škola Otterstein a reálná škola Osterfeld.
Pro odpočinek láká přímo příroda, menší zelené plochy a dětská hřiště v čtvrti. Sportovní aktivity je možné provozovat na okolních sportovištích i v místních sportovních klubech. Oblíbený park Enzauen je dosažitelný na kole asi za 20 minut a zve k procházkám a volnočasovým aktivitám. Zvláštním lákadlem pro rodiny je také zvířím park Pforzheim, který je autem dosažitelný za přibližně 10 minut. Také v krátké vzdálenosti se nachází plynovodárna (Gasometer) Pforzheim, která svými střídajícími se 360° panoramatickými výstavami představuje kulturní magnet daleko za hranicemi města.
Dopravní spojení je vynikající: Několik autobusových linek projíždí čtvrtí Südweststadt a zajišťuje přímé spojení do centra města a na hlavní nádraží. Hlavní nádraží Pforzheim se nachází jen asi 1,5 kilometru daleko a je dostupné pěšky nebo autobusem za několik minut. Přes silnice B10 a dálnici A8 jsou Karlsruhe, Stuttgart a celý region rychle dostupné.
Südweststadt spojuje klidné bydlení, krátké vzdálenosti k obchodům, školám, školkám a kultuře a zároveň vynikající dopravní spojení – atraktivní lokalita pro rodiny i pracovníky.
Pozemek: přibližně 458 m² + pronajatá plocha cca 360 m²
Obytná plocha: cca 253,5 m² ve třech úrovních
Podlahy: dubová parketa, dlaždice, kobercová podlaha
Okna: dřevěná okna s dvojitým zasklením, bezpečnostní sklo v přízemí a suterénu
Zastínění: vnější zastínění zimní zahrady, elektrické rolety v ostatních místnostech
Vytápění: olejové topení (1993) pomocí radiátorů
Terasy: zahradní terasa (přízemí) 52 m², střešní terasa 48 m², terasa v suterénu 15 m², částečně kryté pavilonem
Kuchyně: kvalitní vestavěná kuchyňská linka (2012) s ostrovem
Extra: otevřený krb, zimní zahrada, udržované a kvalitně upravené zelené plochy
Veškeré dodatečné náklady jako daň z nabytí nemovitosti ve výši 5 % z kupní ceny a náklady na notáře a soud nese kupující.
V okolí nemovitosti najdete
Stále hledáte to pravé?
Nastavte si hlídacího psa. Nabídky vybrané na míru dostanete souhrnně 1× denně e-mailem. S Premium profilem máte k ruce hlídačů rovnou 5 a když se něco objeví, informují vás obratem.































