Prodej domu • 210 m² bez realitky, Dolní Sasko
, Dolní SaskoMHD do minuty pěšky • Parkování • GarážTento rodinný dům pro jednu nebo dvě rodiny s nezaměnitelnými kulatými okny zaujme 8 pokoji o přibližně 210 m² obytné plochy a jedním z největších pozemků ve Vechelde (1 066 m²), přičemž vynikají tyto přednosti:
• Nejlepší a klidná poloha v centru Vechelde, nedaleko velkého nákupního centra
• Vynikající dopravní spojení do Braunschweigu, Wolfsburgu, Salzgitteru a Peine
• Obrovský pozemek (1 066 m²) pro realizaci vašich zahradních snů
• Ideální pro několik generací pod jednou střechou (vícegenerační bydlení)
• Výjimečná architektura s kulatými okny
• Pevná omítka z cihel s tepelnou izolací a odolností vůči povětrnostním vlivům
• Cihlová garáž se dvěma parkovacími místy, přičemž druhé je přímo u vchodu k domu
• Kladicí kamenný krbový kamna (krbová místnost) s venkovním grilovacím krbem (2 terasy)
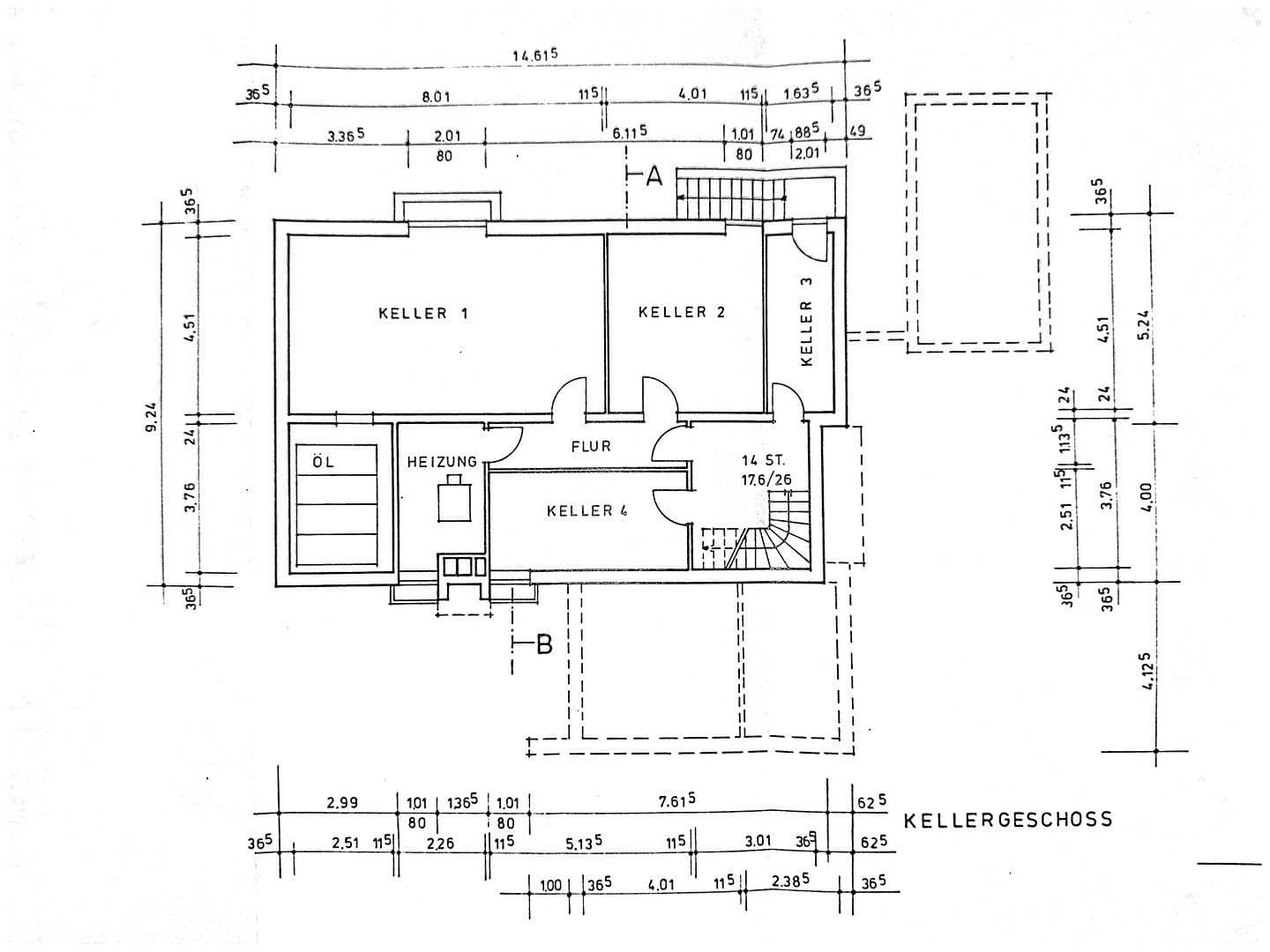
• Obrovský sklep, který lze využít také k bydlení
• Další úložný prostor na půdě
• Nízkoteplotní kotel, který není třeba vyměňovat
• K dispozici optické připojení k DSL Internetu
U této výjimečné nemovitosti ve vyhlášené centrální části Vechelde se jedná o samostatně stojící dům pro dvě rodiny s dostatkem prostoru pro naplnění vašich představ o bydlení – jak uvnitř, tak venku.
Nemovitost nabízí minimálně 8 prostorných místností ve dvou podlažích, rovněž 2 koupelny a samostatné toalety pro hosty.
V přízemí se vstupem do haly dostanete k toaletě pro hosty, schodišti a věšáku v chodbě. Oddělenými dveřmi se dostanete do kuchyně se samostatnou spižírnou, jídelny, obývacího pokoje a krbové místnosti, stejně jako do rodičovské ložnice s vlastní koupelnou.
V patře najdete přes chodbu s přístupem na půdu 4 světlé místnosti, velkou koupelnu a malou kuchyňskou část s obývacím prostorem.
Ve sklepě můžete ve 4 místnostech kromě kotelny provozovat hernu, pracovní prostor nebo zde uskladnit věci v teple a suchu.
Příslušný pozemek vám zároveň nabízí s neporovnatelných 1 066 m² obrovský prostor pro realizaci vašich přání (například bazén, zahradní chatu se saunou, vlastní pěstování zeleniny) a především hodně místa pro volný pobyt dětí. Samostatně stojící garáž poskytuje místo pro automobily a zahradní nářadí.
Nemovitost se nachází v klidné a centrální části Vechelde, které se za poslední roky s přibližně 20 000 obyvateli proměnilo v regionální centrum. Vechelde proto nabízí kromě mateřských/dětských škol vše od základních škol až po gymnázia.
Tyto výhody, společně s velkým nákupním centrem nacházejícím se kousek od nemovitosti (v několika minutách pěšky) s obchody jako REWE, dm, ALDI, LIDL, Fressnapf, JYSK, Action, lékárnou, lékaři/veterináři, fitness centrem, stavebninami, McDonaldsem a mnoha dalšími, opravdu neponechávají žádnou mezeru ve vašich představách o ideálním bydlení. Navíc celou nabídku dále doplňují blízké restaurace, pekárny, lékaři, kavárny, další obchody, řada mateřských/dětských škol, sportoviště a rozlehlý zámecký park.
Zastávka autobusu „Wahler Weg“ se nachází na konci ulice velmi blízko, a také železniční stanice Vechelde je snadno dosažitelná. Díky přímému vjezdu na objízdnou silnici B1 se dostanete autem přibližně za 10 minut do Braunschweigu a s rychlým připojením k dálnici za zhruba 30 minut do Wolfsburgu. Letiště Hannover je dosažitelné za přibližně 45 minut.
Parametry nemovitosti
| Stáří | Nad 50 let |
|---|---|
| Stav | Dobrý |
| PENB | B - Velmi úsporná |
| Plocha pozemku | 1 066 m² |
| Cena za jednotku | 3 329 € / m2 |
| Dostupné od | 26. 10. 2025 |
|---|---|
| Číslo inzerátu | 956804 |
| Užitná plocha | 210 m² |
| Celkem podlaží | 1 |
Co tato nemovitost nabízí?
| Sklep | |
| MHD 0 minut pěšky |
| Garáž | |
| Parkování | |
| Terasa |
V okolí nemovitosti najdete
Stále hledáte to pravé?
Nastavte si hlídacího psa. Nabídky vybrané na míru dostanete souhrnně 1× denně e-mailem. S Premium profilem máte k ruce hlídačů rovnou 5 a když se něco objeví, informují vás obratem.














