Prodej nebytového prostoru • 28300 m² bez realitkyLützowstr. 1, , Mecklenburg-Vorpommern
Lützowstr. 1, , Mecklenburg-VorpommernMHD 10 minut pěšky • Výtah • GarážBývalý kasárenský areál, který je nyní k prodeji, zahrnuje řadu různorodých komplexů budov a hal.
Lokalita: 17153 Stavenhagen, průmyslová zóna Basepohl
Soubor objektů se dělí následovně:
Celková plocha: 28.300 m² stavebního pozemku!!! (územní plán, zónové číslo 17 města Stavenhagen) (průmyslový stavební pozemek)
Stávající budovy jsou všechny v dobrém stavu a byly ve středních až pozdních 90. letech za několik milionů eur ze strany státu rozsáhle zrekonstruovány (izolace, střechy, elektroinstalace).
Všechny budovy mají vlastní parcelu a lze je zakoupit i samostatně.
Následující budovy jsou aktuálně k prodeji:
– bývalá velitelská a ubytovací budova s užitnou plochou cca 2.323 m², (parcela 13/55) + 1.647 m² pozemku – 129.000 eur –
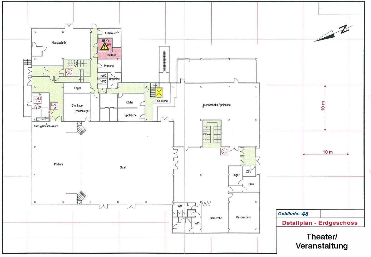
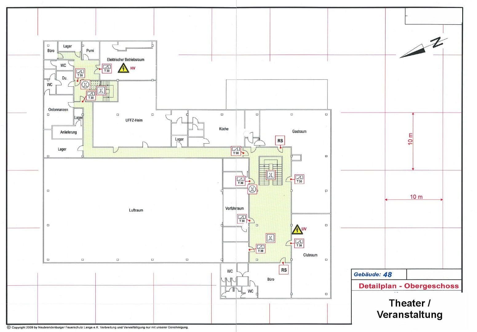
– sociální a konferenční budova s velkou halou (pro 500 osob) a jevištěm, společenskými místnostmi, a navíc dvěma kuchyněmi s dvěma restauračními prostory, výtahem a celkovou užitnou plochou cca 2.628 m², (parcela 13/47) + 8.402 m² pozemku – 199.000 eur –
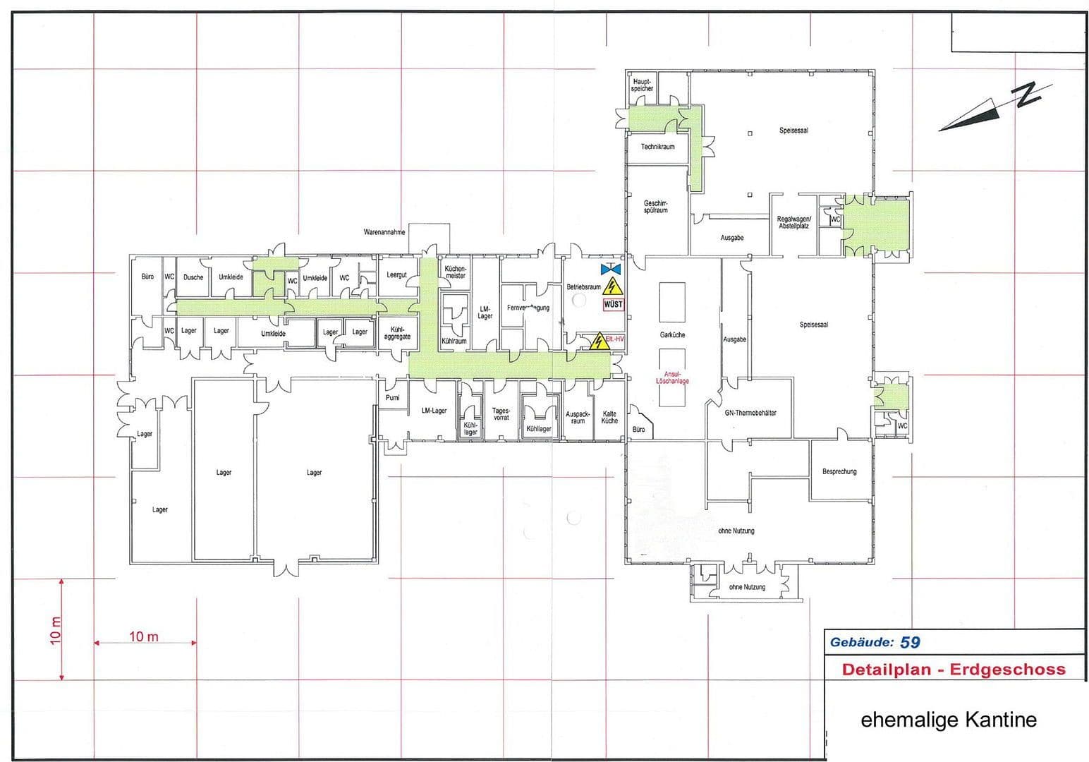
– hospodářská budova se dvěma jídelnami, velkou kuchyní, skladovými, chladírenskými a sanitárními prostory s celkovou užitnou plochou cca 2.470 m², z toho cca 600 m² jsou určeny pro studený sklad, (parcela 14/24) + 7.145 m² pozemku – 249.000 eur –
– jedna sanitární budova s ordinacemi a pacientskými pokoji s celkovou užitnou plochou cca 1.300 m², (parcela 13/60) + 3.991 m² pozemku – 149.000 eur –
– bývalý bunkr vybavený technikou, kanceláří, ubytovacími a sanitárními prostory s užitnou plochou cca 265 m², (parcela 13/52) + 1.236 m² pozemku – 49.000 eur –
– bývalá školní budova s užitnou plochou cca 3.900 m², (parcela 13/58) + 3.654 m² pozemku – 149.000 eur –
– zpevněná parkovací plocha s užitnou plochou cca 3.000 m², (parcela 13/56) + 4.587 m² pozemku – 49.000 eur –
Jednotlivé stavební komplexy byly postaveny v různých obdobích mezi lety cca 1970 až cca 1987 a byly zrekonstruovány nebo částečně rekonstruovány mezi lety cca 1996 až 1999. Stavební provedení probíhalo převážně betonovou konstrukcí. Média a rozvodné/odpadové sítě již většinou nejsou funkční a musely by být znovu vybudovány či reaktivovány.
Původní centrální topná jednotka je v současnosti rovněž nevyužitelná. Všechny budovy vykazují potřebu oprav a modernizace. Energetický štítek není vyžadován. Areál se skládá z několika samostatných parcel; je tak možný i nákup částečných pozemků.
Město Stavenhagen je malé město v okrese Mecklenburgische Seenplatte, známé svou rozmanitostí podniků a průmyslových sídel. Město s přibližně 5.500 obyvateli se nachází asi 25 km od Waren (Müritz) a asi 32 km jihovýchodně od Neubrandenburgu. Basepohl, jako městská část, se nachází u „Velkého a Malého jezera“, přibližně 5 km severně od Stavenhagen.
Díky své rozmanitosti podnikových a průmyslových sídel byla část Basepohl zejména známá díky dvěma velkým kasárnám, a to dokonce i za hranicemi regionu Mecklenburg.
Prodejní plocha se nachází v územní plánovací zóně č. 17 města Stavenhagen „Kaserne Mecklenburgische Schweiz Südteil“.
Jedna ze dvou částí kasáren byla již plně přeměněna na průmyslovou oblast.
Díky dobrému napojení na silnici B 104 a dálnice (A19 + A20) jsou velká města Berlín i Hamburk dostupná za méně než dvě hodiny jízdy autem.
Územní plánovací zóna č. 17 města Stavenhagen „Kaserne Mecklenburgische Schweiz Südteil“.
Parametry nemovitosti
| Dostupné od | 31. 10. 2025 | 
|---|---|
| Číslo inzerátu | 957066 | 
| Plocha pozemku | 28 300 m² | 
| Stav | Dobrý | 
|---|---|
| Plocha nebytového prostoru | 28 300 m² | 
| Cena za jednotku | 0 € / m2 | 
Co tato nemovitost nabízí?
| Bezbariérový přístup | |
| Garáž | |
| Výtah | |
| Terasa | 
| Sklep | |
| MHD 10 minut pěšky | 
V okolí nemovitosti najdete
Stále hledáte to pravé?
Nastavte si hlídacího psa. Nabídky vybrané na míru dostanete souhrnně 1× denně e-mailem. S Premium profilem máte k ruce hlídačů rovnou 5 a když se něco objeví, informují vás obratem.
















































