Prodej bytu 3+1 • 81 m² bez realitky, Bádensko-Württembersko
, Bádensko-WürttemberskoMHD 1 minuta pěšky • ParkováníNyní využijte výhody časově omezené nabídky a ušetřete 30 000 €: rezervujte si byt do 31. 12. 2025 a zajistěte si cenu 415 000 € místo 445 000 €.
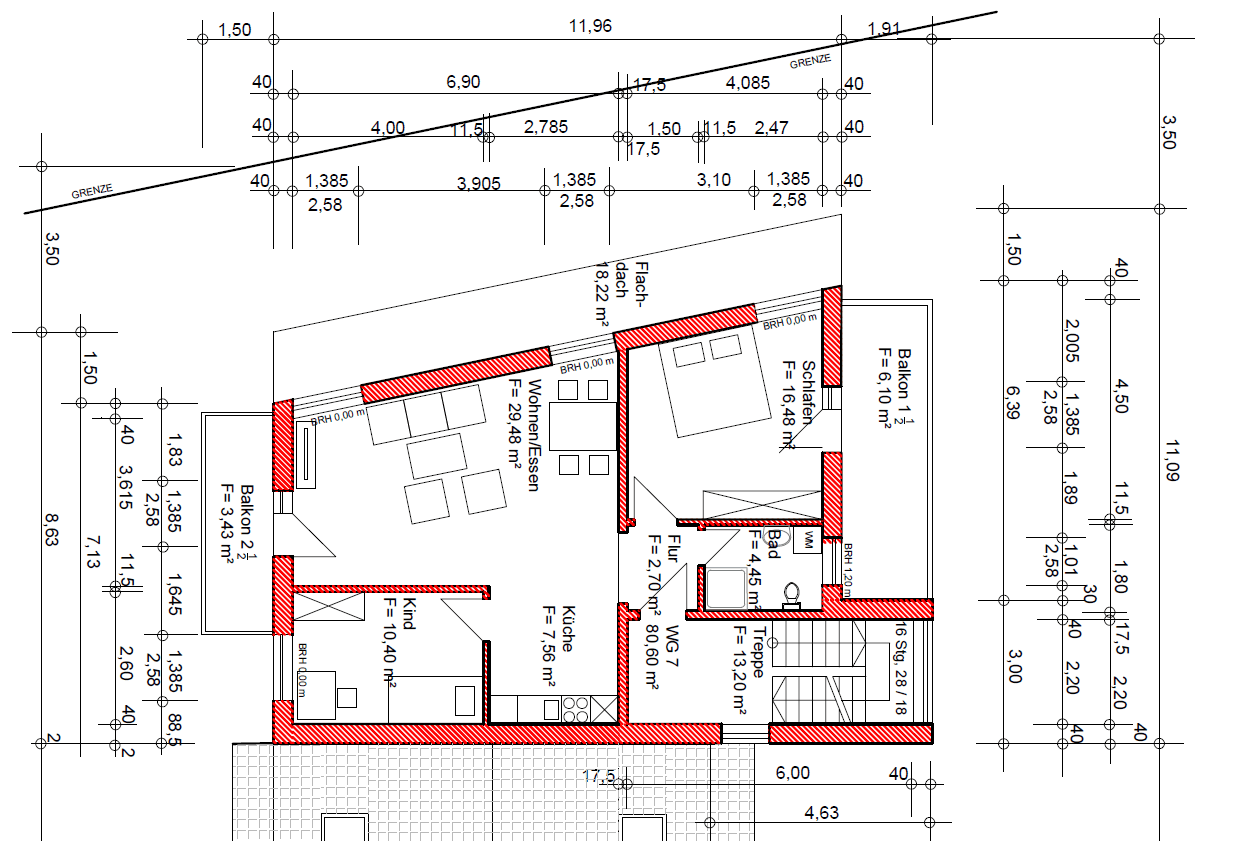
Krátce od areálu lázeňského parku obce Bad Bellingen vzniká vedle starší budovy samostatný novostavbový projekt sestávající ze sedmi bytových jednotek. Dva byty v přízemí, v prvním i ve druhém patře mají obytnou plochu mezi 48 m² a 49 m² a dvě místnosti. Penthouse byt ve třetím patře se vyznačuje navíc další ložnicí a obytnou plochou přes 80 m². Všechny byty těží z velkého množství podlahových oken, díky nimž působí světlým a příjemným dojmem. Promyšlený půdorys s otevřeným obývacím prostorem, kuchyní a jídelnou podtrhuje modernost projektu. Koupelny ve všech bytech jsou vybaveny bezbariérovou sprchou, přičemž tři z nich mají orientaci na východ a velká koupelna v penthousu navíc okno. Byty v přízemí jsou bezbariérově přístupné a jsou proto ideální pro seniory. Na velké terase si můžete vychutnávat jak ranní, tak večerní slunce. Byty ve vyšších patrech jsou přístupné po schodišti, které se díky omezenému počtu pater vyznačuje přehlednou stupnicí. Místo terasy disponují tyto jednotky balkonem, penthouse byt má dokonce dva balkony.
Bad Bellingen je obec s více než 5 000 obyvateli, nacházející se na severozápadě okresu Lörrach, a leží přímo v trojhraničí Německa, Francie a Švýcarska. Nájezd na spolkovou dálnici č. 5 je vzdálen pouze 10 minut jízdy, což umožňuje dojet do měst Lörrach za 30 minut, Mülhausen za 40 minut a Basel taktéž za 30 minut – Basel navíc disponuje mezinárodním letištěm. Dopravní síť je doplněna regionálními a expresními vlaky na trati Rheintal, přičemž Bad Bellingen má vlastní nádraží.
Obec si od padesátek 20. století, kdy byly objeveny termální prameny, vybudovala renomé lázeňského a turistického střediska na regionální úrovni. Tím výrazně prospívá místní ekonomice a infrastruktuře obce. V areálu lázeňského parku, který je pěšky dostupný z nového projektu a nabízí řadu volnočasových aktivit – například oblíbené termální lázně Balinea, cestu nabroušenou na chůzi bosýma nohama, dětské hřiště nebo fitness trasu – najdete vše od obchodů denní potřeby, velký supermarket i kulinářské gastronomické podniky. Přilehlý Rýn a nedaleký Hertinger Wald pak ještě dále rozšiřují rozmanitost přírody.
• Udržitelná stavba dle energeticky efektivního standardu KfW 40
• Podlahové vytápění ve všech místnostech (vzduch-voda tepelná čerpadla)
• Moderně navržený obytný koncept s otevřenou kuchyní
• Podlahová plastová okna (trojitě zasklená) s elektrickými hliníkovými rolety
• Podlahové krytiny: parketová podlaha v obytném a ložnicovém prostoru a dlaždice 60×60 cm v koupelně
• Stěnová úprava: malířský textilní obklad v obytném a ložnicovém prostoru a dlaždice 60×30 cm v koupelně
• Nadčasový design koupelen s bezbariérovou sprchou, oknem a sanitární technikou či armaturou renomovaných značek Duravit a Hansgrohe
V okolí nemovitosti najdete
Stále hledáte to pravé?
Nastavte si hlídacího psa. Nabídky vybrané na míru dostanete souhrnně 1× denně e-mailem. S Premium profilem máte k ruce hlídačů rovnou 5 a když se něco objeví, informují vás obratem.













