Prodej domu 5+kk • 182 m² bez realitky, Hessen
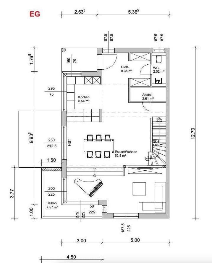
, HessenMHD 3 minuty pěšky • ParkováníTento moderní rodinný dům se třemi podlažími spojuje prostorné bydlení, vysoce kvalitní vybavení a nádherně klidnou polohu – ideální pro všechny, kdo ocení jak komfort, tak přírodu.
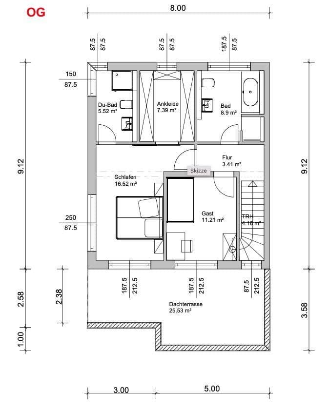
Díky umístění na svahu se z terasy na střeše naskýtá ohromující výhled na pohoří Taunus, zatímco rozlehlý pozemek a zelené okolí vytvářejí pocit svobody a relaxace.
Dům byl postaven v rámci stavební zóny (polodvojdům) a sdílí vjezd se sousedy.
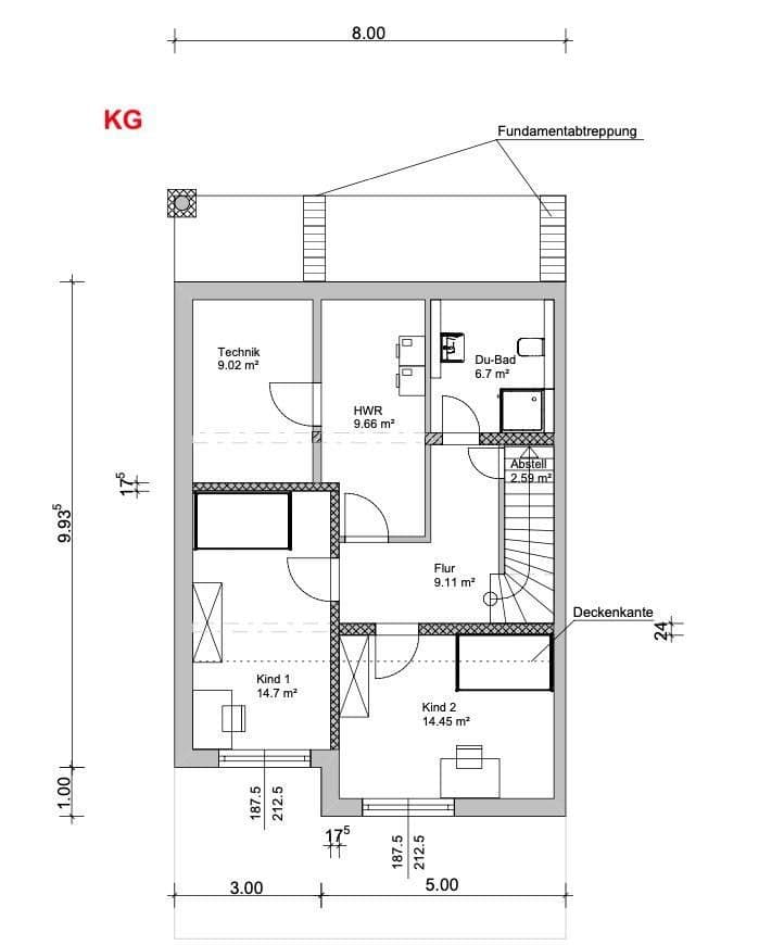
=> Horní patro – Útočiště s výhledem Přízemí – Život, vaření, radost Suterén – Prostor pro hosty, koníčky nebo teenagery Exteriér – Příroda, klid a soukromí
V okolí nemovitosti najdete
Stále hledáte to pravé?
Nastavte si hlídacího psa. Nabídky vybrané na míru dostanete souhrnně 1× denně e-mailem. S Premium profilem máte k ruce hlídačů rovnou 5 a když se něco objeví, informují vás obratem.




































