
Prodej bytu 2+kk • 56 m² bez realitkyNuselská, Praha - Michle
Nuselská, Praha - MichleČástečně vybaveno • Výtah • ParkováníVyužít program Bydlím hned, koupím později
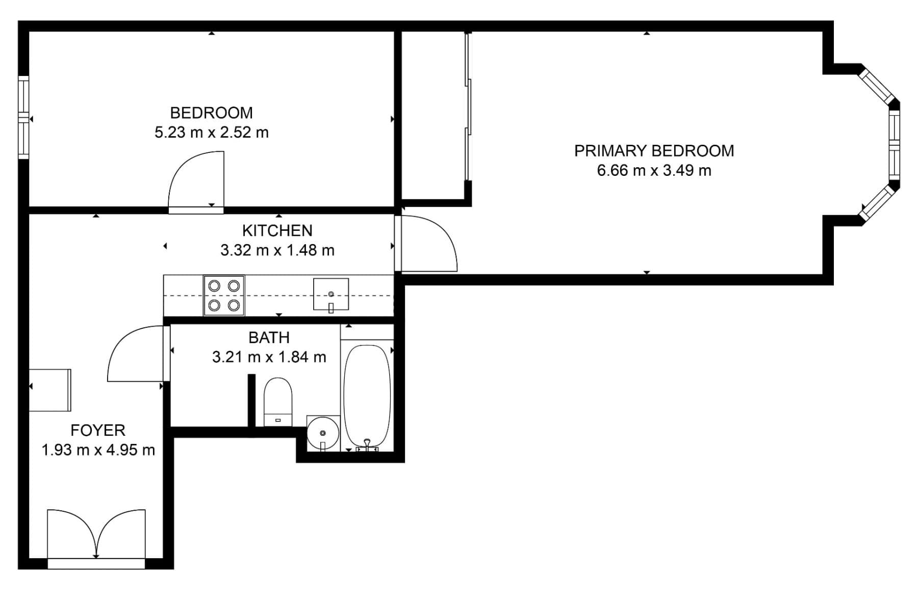
Nabízím k prodeji světlý a prostorný byt 2+kk o velikosti 56 m² v osobním vlastnictví, který se nachází ve 2. patře cihlového domu v Praze 4, nedaleko parku Jezerka.
Dům je v dobrém technickém stavu a má výtah. Byt působí prostorně díky vysokým stropům a velkým oknům, ložnice je orientovaná do klidného vnitrobloku. Prošel částečnou rekonstrukcí – nové podlahy, elektroinstalace a okna.
Byt se prodává bez nábytku – z vybavení zůstává pouze kuchyňská linka. Pro lepší představu jsou k dispozici fotografie s interiérem.
Parkování je možné přímo před domem.
Lokalita nabízí dobrou dopravní dostupnost – tramvaj 3 minuty pěšky, metro C Pankrác 15 minut pěšky nebo pár minut autobusem, budoucí metro D jen 5 minut chůze. V okolí je kompletní občanská vybavenost a park Jezerka ideální pro odpočinek.
Byt je vhodný jak pro vlastní bydlení mladé rodiny, tak i jako investice vzhledem k atraktivní lokalitě.
Cena: 8 350 000 Kč
Byt prodávám jako přímá majitelka. Pokud máte zájem nebo chcete více informací, napište mi prosím zprávu, prohlídky jsou možné pouze pro vážné zájemce. Preferuji kupující s hotovostí nebo s již schválenou hypotékou.
Realitní kanceláře nepište ani nevolejte, nemám zájem o váš marketing ani spolupráci.
Parametry nemovitosti
| Dostupné od | 22. 10. 2025 |
|---|---|
| Konstrukce budovy | Cihla |
| Vybaveno | Částečně |
| Číslo inzerátu | 957793 |
| PENB | B - Velmi úsporná |
| Užitná plocha | 56 m² |
| Cena za jednotku | 149 107 Kč / m2 |
| Stav | Velmi dobrý |
|---|---|
| Dispozice | 2+kk |
| Podlaží | 2. podlaží z 6 |
| Vlastnictví | Osobní |
| Umístění | Centrum |
| Rizika | Prověřit » |
Vybíráte byt?
Mějte jistotu, že máte všechny důležité informace!
Co tato nemovitost nabízí?
| Bezbariérový přístup | |
| Výtah |
| Parkování |
V okolí nemovitosti najdete
Využít program Bydlím hned, koupím později
Stále hledáte to pravé?
Nastavte si hlídacího psa. Nabídky vybrané na míru dostanete souhrnně 1× denně e-mailem. S Premium profilem máte k ruce hlídačů rovnou 5 a když se něco objeví, informují vás obratem.















