
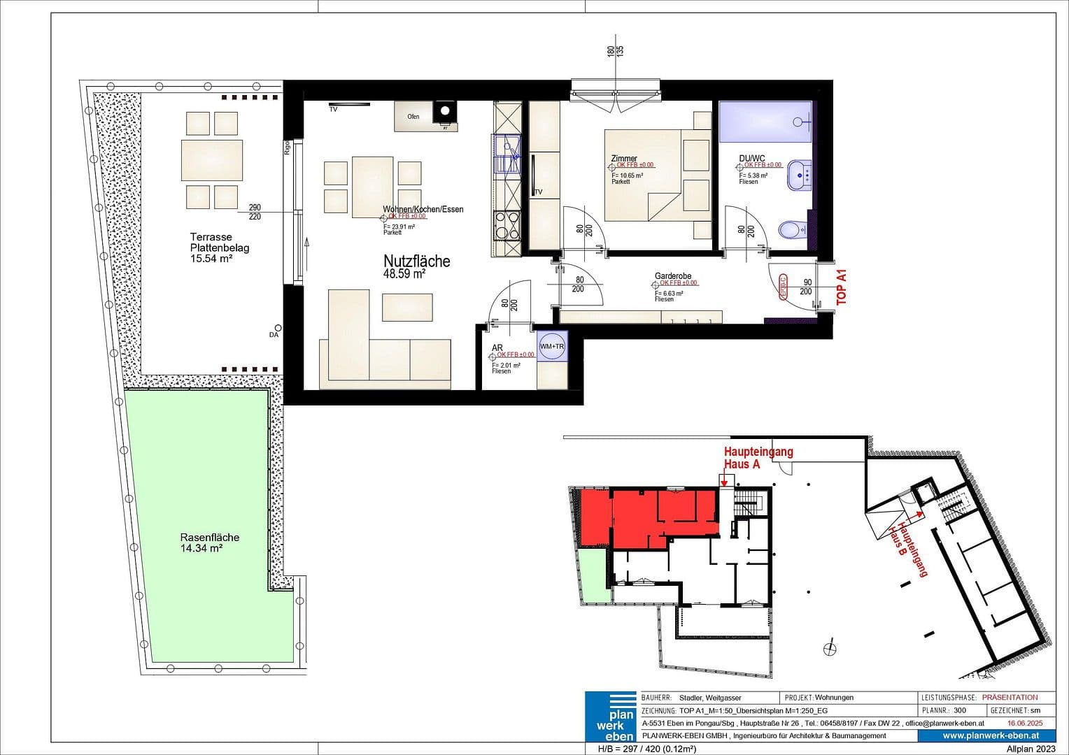
Pronájem bytu 2+1 • 50 m² bez realitkyEben im Pongau Eben im Pongau Salzburg 5531
Eben im Pongau Eben im Pongau Salzburg 5531MHD 1 minuta pěšky • ParkováníMěsíční nájemné750 €
+ Poplatky za služby200 €
Přeloženo pomocí AI
Moderní, otevřený novostavba 50 m² dvoupokojový byt vyniká svým špičkovým vybavením a klidnou sluneční polohou v Eben. První nastěhování. Částečně zařízený s kuchyní.
Klidná sluneční poloha v obytné zóně.
Nové, kvalitní vybavení, dřevěno-hliníková okna s hmyzí sítí a zatemňovacími rolety.
Kryté parkovací místo.
Bez domácích mazlíčků, nekuřácký.
V okolí nemovitosti najdete
MHD1
🚶 118 m (1 min)
PoštaPostpartner 5531, Tourismusverband
🚶 96 m (1 min)
ObchodSpar
🚶 235 m (3 min)
BankaRaiffeisenbank
🚶 104 m (1 min)
RestauraceSchwaiger
🚶 156 m (2 min)
LékárnaApotheke Eben
🚶 105 m (1 min)
ŠkolaVolksschule Eben im Pongau
🚶 143 m (2 min)
Mateřská školaKindergarten Flachau-Reitdorf
🚘 5 768 m (8 min)
SportovištěTherme Amadé
🚘 4 260 m (7 min)
Hřiště
🚶 367 m (4 min)
Vzdálenost k:
Měsíční nájemné750 €
+ Poplatky za služby200 €
Stále hledáte to pravé?
Nastavte si hlídacího psa. Nabídky vybrané na míru dostanete souhrnně 1× denně e-mailem. S Premium profilem máte k ruce hlídačů rovnou 5 a když se něco objeví, informují vás obratem.

