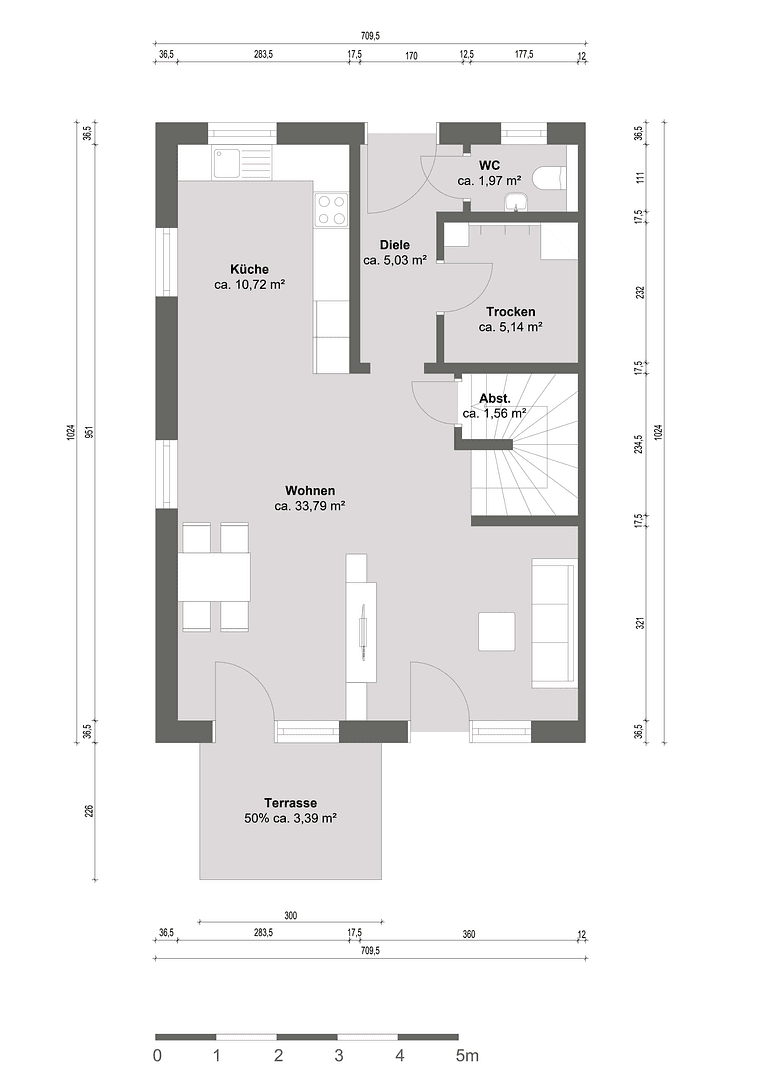
Pronájem domu 6+1 • 153 m² bez realitkyKirchdorfer Straße 58, , Bádensko-Württembersko
Kirchdorfer Straße 58, , Bádensko-WürttemberskoMHD 1 minuta pěšky • Parkování • GarážV Dettingenu an der Iller vznikají v obci řadové / střední řadové domy k pronájmu (a také k prodeji ve podobném provedení).
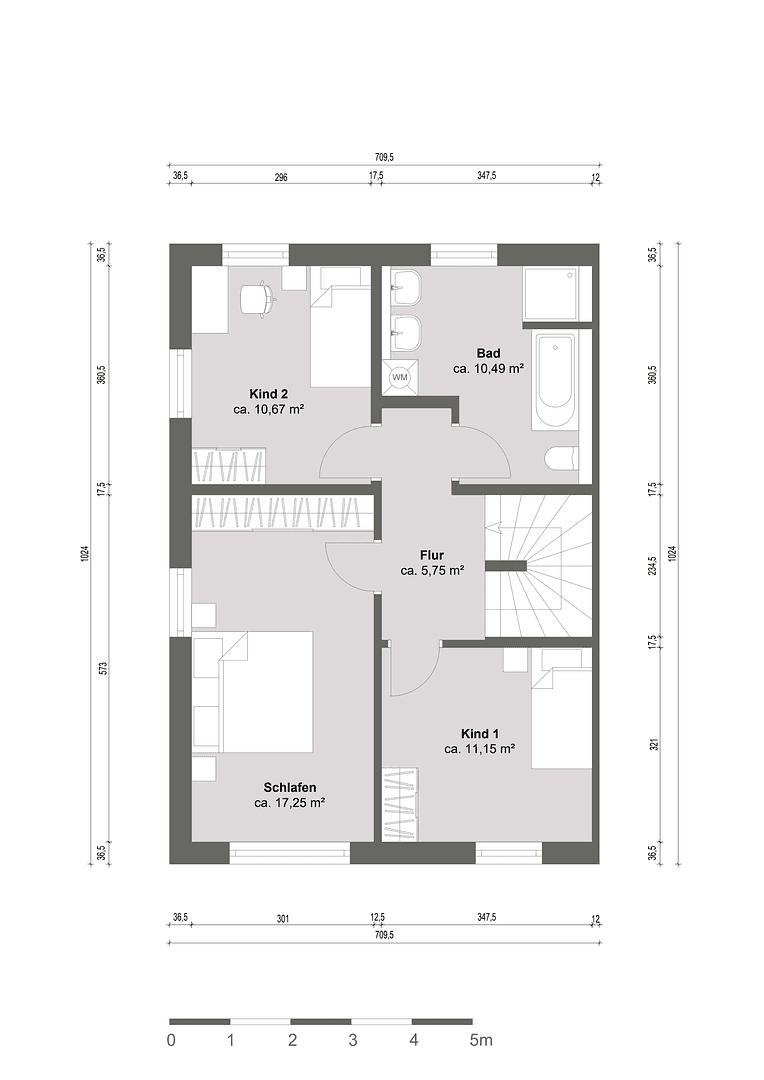
Počet pokojů a prostor nabízí mnoho možností a variant.
Zde je výběr vybavení:
- vzduchové tepelné čerpadlo
- masivní konstrukce s předem izolovanými cihlami
- podlahové vytápění
- elektrické žaluzie
- vana / sprcha
- hostinská toaleta
- zahrada
- a mnoho dalšího
- bez domácích mazlíčků
- doba odpovědi cca 2 dny
- případně může být předem nutná nájemní přihláška
- energetický průkaz zatím neexistuje kvůli probíhající novostavbě
V okolí nemovitosti najdete
Stále hledáte to pravé?
Nastavte si hlídacího psa. Nabídky vybrané na míru dostanete souhrnně 1× denně e-mailem. S Premium profilem máte k ruce hlídačů rovnou 5 a když se něco objeví, informují vás obratem.














