Prodej domu 5+1 • 117 m² bez realitky, Braniborsko
Einziehen & Wohlfühlen:
Rodinný řadový dům s jižní zahradou a spoustou prostoru
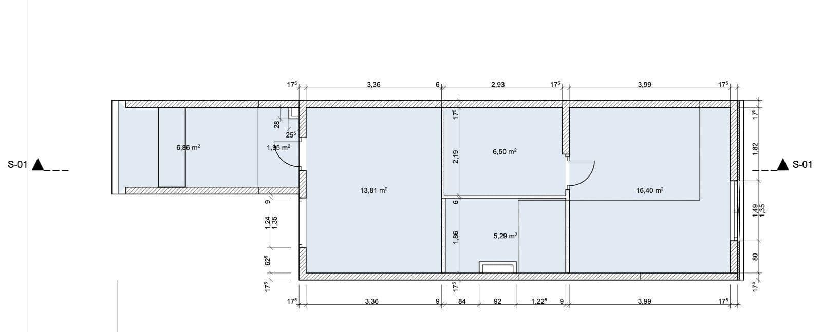
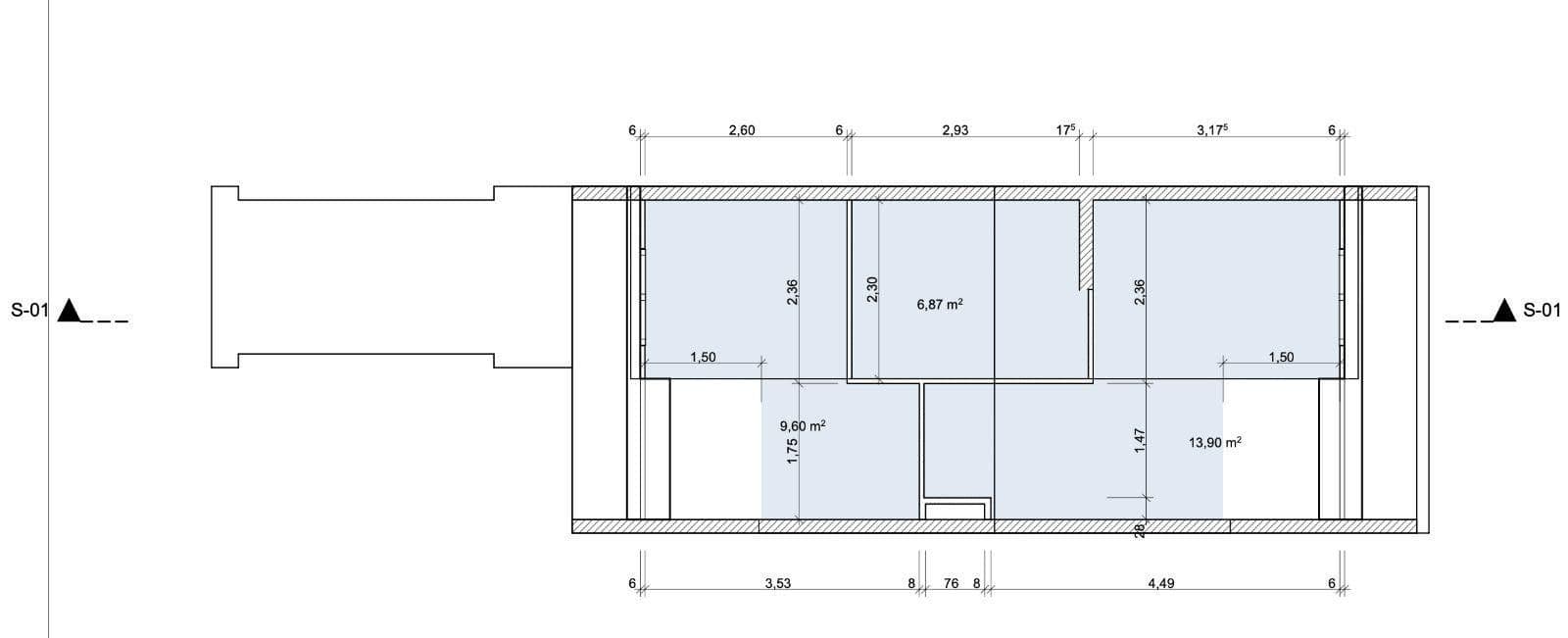
Vítejte ve vašem budoucím domově, upraveném řadovém domě s promyšleným půdorysem, prostorným uspořádáním místností a ideální polohou.
S přibližně 117 m² obytné plochy nabízí tento dům vše, co by mohlo srdce rodiny rozradovat.
Celkem pět místností, z toho čtyři oddělené ložnice nebo pracovny, zajišťují dostatek útočišť a flexibility v každodenním životě.
Dům se rozkládá na třech podlažích a pyšní se dvěma komfortními koupelnami.
Ideální pro vyhnutí se rannímu shonu.
Otevřený a praktický prostor přispívá k příjemné atmosféře domova pro všechny generace.
V exteriéru na vás čeká zvláštní lákadlo: Terasa orientovaná na jih s přilehlou zahradní plochou nabízí slunečné chvíle venku.
Ať už jde o rodinný brunch, grilování nebo jen o odpočinek, každý si zde najde své oblíbené místo.
Na půdě je k dispozici dodatečný úložný prostor, ideální pro koníčky, zásoby nebo sezónní věci.
Parkovací místo přímo u domu zaručuje pohodlný příjezd a možnost instalace nabíjecí stanice pro vaše elektrické vozidlo.
Dům byl postaven v roce 1995 v solidní a energeticky efektivní podobě.
Díky využití dálkového vytápění není třeba přestavba topení, což se pozitivně odráží na provozních nákladech.
Energetická třída se pohybuje v kategorii A.
To je skutečné plus pro životní prostředí i pro peněženku.
Lokalita přesvědčí na všech úrovních: Pouhé minuty pěšky vás dovedou k autobusovému zastávce a vlakovému nádraží s ideálním spojením do Berlína a do regionu.
Školy všech stupňů, obchodní příležitosti a gastronomické nabídky jsou rovněž snadno dostupné.
Závěr: Jedinečná nabídka v žádané lokalitě, ideální pro rodiny, které hledají prostor, komfort a dobrou infrastrukturu.
Zajistěte si tento atraktivní domov se zahradou, parkovacím místem a velkým potenciálem pro budoucí rozvoj.
Těším se na váš zájem a jsem vám kdykoliv k dispozici pro další informace a prohlídky!
Prosím, zašlete mi své kontaktní údaje a já se vám neprodleně ozvu, rád telefonicky.
Popis lokality
Dům se nachází v klidné a rodinně přátelské obytné čtvrti ve Falkenseu. Město se nachází na západním okraji Berlína a je velmi oblíbené. Upravená čtvrť s množstvím zeleně poskytuje ideální podmínky pro uvolněný a přírodně laděný život. Zároveň těžíte z blízkosti hlavního města.
Díky dobrému spojení s městskou hromadnou dopravou se dostanete do berlínského Spandaua nebo na hlavní nádraží hlavního města během krátké doby. Nádraží Falkensee je dobře dostupné na kole nebo autobusem. Autobusová zastávka se rovněž nachází v docházkové vzdálenosti. Také nedaleká státní silnice zajišťuje rychlé spojení autem do Berlína nebo do okolí.
V bezprostředním okolí najdete řadu možností k nákupům, supermarkety, pekárny, lékárny stejně jako útulné kavárny a restaurace. Pro rodiny je obzvláště atraktivní dobrá dostupnost jesliček, základních škol a středních škol, které v regionu mají výbornou pověst.
I na volný čas a odpočinek je myslíno. Zelené plochy, pěší stezky, hřiště a nedaleké jezero Falkenhagener lákají k aktivitám na čerstvém vzduchu a nabízejí prostor k relaxaci.
Tato lokalita je ideální pro lidi, kteří chtějí bydlet blízko města a zároveň si cenit klidu a kvality života v ustáleném a zeleném prostředí.
V okolí nemovitosti najdete
Stále hledáte to pravé?
Nastavte si hlídacího psa. Nabídky vybrané na míru dostanete souhrnně 1× denně e-mailem. S Premium profilem máte k ruce hlídačů rovnou 5 a když se něco objeví, informují vás obratem.























