Prodej domu 5+1 • 100 m² bez realitkyDuisburg Hochheide Nordrhein-Westfalen 47198
Tato okouzlující nemovitost nabízí s obytnou plochou přibližně 96 m² a celkovou využitnou plochou okolo 158,46 m² prostorný prostor pro celou rodinu. Na pozemku o rozloze přibližně 121 m² zaujme dům svým promyšleným uspořádáním místností, moderním vybavením a velmi udržovaným stavem.
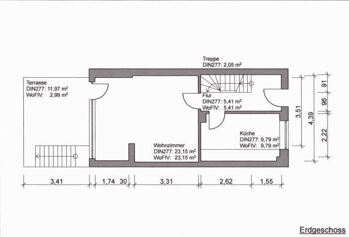
V přízemí na vás čeká světlý obývací a jídelní pokoj s přímým vstupem do zahrady. Velká terasa láká k příjemnému odpočinku venku. Otevřená, moderní kuchyně se harmonicky začleňuje do obytného prostoru a vytváří příjemnou atmosféru.
V horním patře se nacházejí dvě ložnice, z nichž jedna má přístup na balkon. Tuto úroveň doplňuje koupelna s denním světlem vybavená sprchovým koutem, toaletou a umyvadlem. V podkroví jsou k dispozici další dvě plnohodnotné ložnice, takže celkově jsou k dispozici čtyři ložnice – ideální pro rodiny nebo jako pracovna a pokoj pro hosty.
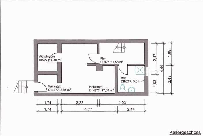
Sklep doplňuje nabídku prostor: Zde se nachází další, velmi prostorná koupelna se sprchovým koutem, vanou, toaletou a umyvadlem, která byla kompletně zrekonstruována až v roce 2023.
Zahrada je nenáročná na údržbu a kromě terasy nabízí i praktický kůlík na nářadí, kde se najde místo pro odpadkové koše a zahradní nářadí.
Dům byl v loňském roce důkladně zmodernizován a představuje se ve velmi dobrém stavu. Proto je možné do něj nastěhovat se bez nutnosti provádět zdlouhavé rekonstrukce.
Nemovitost se nachází v klidné části Duisburgu – Hochheide s dobrou infrastrukturou. Obchody, školy a mateřské školky jsou dostupné během několika minut. Nedaleké jezero Üttelsheim láká k procházkám, cyklovýletům a odpočinku v přírodě. Díky rychlému napojení na dálnice A40 a A42 je pak snadno dosažitelné centro Duisburgu i okolních měst. Veřejná doprava se rovněž nachází v bezprostřední blízkosti.
V okolí nemovitosti najdete
Stále hledáte to pravé?
Nastavte si hlídacího psa. Nabídky vybrané na míru dostanete souhrnně 1× denně e-mailem. S Premium profilem máte k ruce hlídačů rovnou 5 a když se něco objeví, informují vás obratem.














