Pronájem bytu 3+1 • 74 m² bez realitkyDieckmannstraße 144 Münster Gievenbeck Nordrhein-Westfalen 48161
Dieckmannstraße 144 Münster Gievenbeck Nordrhein-Westfalen 48161MHD 1 minuta pěšky • Výtah • GarážPečlivě udržovaný vícegenerační dům byl postaven v roce 2010 podle nejnovějších energetických standardů a nachází se ve čtvrti Auenviertel v Münster-Gievenbeck.
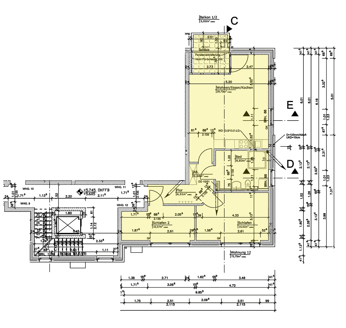
Nabízí se 3-pokojový byt ve 2. patře s balkonem orientovaným na jihozápad, sklepem a parkovacím místem v podzemní garáži.
Byt bude k dispozici od 1. 1. 2026.
Obchodní možnosti, lékaři, lékárny, školy, školky, zelené plochy a parky, UKM, zastávky městské hromadné dopravy a podobně se nacházejí v bezprostřední blízkosti. Centrum Münsteru je dosažitelné na kole za 10–15 minut.
- dálkové vytápění
- podlahové vytápění
- trojitá zateplovací okna
- bezbariérový přístup
- sprchový kout až k podlaze
- kompletně obklady
(ložnice s designovou podlahou v podobě parketové struktury)
- výtah
- připojení SAT
- parkovací místo v podzemní garáži
- sklep
- balkon orientovaný na jih/západ
Zobrazená vestavěná kuchyň může být v případě zájmu převzata současnými nájemníky.
Bohužel v tomto objektu není povoleno chovat psy ani kočky, stejně jako zakládání sdíleného bydlení – děkujeme za pochopení!
Těšíme se na Váš dotaz prostřednictvím e-mailu.
V okolí nemovitosti najdete
Stále hledáte to pravé?
Nastavte si hlídacího psa. Nabídky vybrané na míru dostanete souhrnně 1× denně e-mailem. S Premium profilem máte k ruce hlídačů rovnou 5 a když se něco objeví, informují vás obratem.










