
Pronájem bytu 2+kk • 68 m² bez realitkyNürnberg Tafelhof Bayern 90443
Nürnberg Tafelhof Bayern 90443MHD 4 minuty pěškyNabízím 3-pokojový byt na adrese Stromerstr 1a ve 4. patře (podkroví).
Byt se nachází v klidné zadní budově a vstup je možný přes vnitřní dvůr.
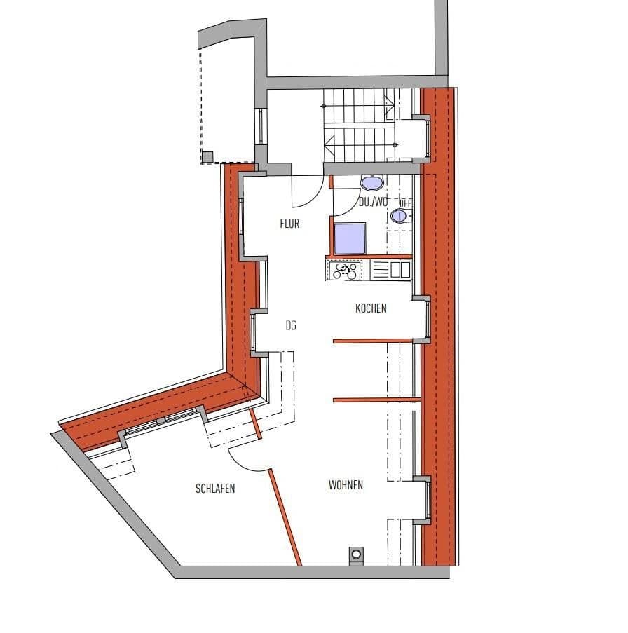
Jelikož se jedná o čtvrté patro, je byt tichý a světlý. Byt má pěkné dispozice a zahrnuje velkou ložnici a velkou obytnou kuchyni.
Byt byl zrovna čerstvě zrenovován. Jedná se o první užívání po rekonstrukci. Fotografie jsou však ještě z doby před renovací.
Těším se na vaše dotazy!
Stromerstraße 1a, velmi centrální a klidná lokalita.
5 minut k zastávce u Opernhaus, 10 minut k Bílé věži.
Velmi centrální
Byt byl zrovna čerstvě zrenovován.
Je krásně světlý a klidný.
Má nový laminátový podlahový kryt.
Dále zahrnuje koupelnu, velkou obytnou kuchyni a velkou ložnici.
V okolí nemovitosti najdete
Stále hledáte to pravé?
Nastavte si hlídacího psa. Nabídky vybrané na míru dostanete souhrnně 1× denně e-mailem. S Premium profilem máte k ruce hlídačů rovnou 5 a když se něco objeví, informují vás obratem.









