Pronájem domu 2+1 • 120 m² bez realitkyKlever Str. 8, , Severní Porýní-Vestfálsko
Klever Str. 8, , Severní Porýní-VestfálskoMHD 4 minuty pěšky • Parkování • GarážK pronájmu od 01.02.2026 je vynikající poloddělený dvojdům na okraji města Erkelenz, v klidné oblasti.
Čistý nájem činí 1.400 EUR plus 180 EUR vedlejších nákladů. Kromě toho si nájemce hradí náklady na elektřinu pro domácí spotřebu a plyn pro vytápění.
Pozemek levého domu má 307 m².
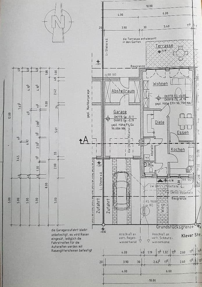
Klinkerový poloddělený dům ve venkovském stylu disponuje garáží, dlážděnou příjezdovou cestou a příjezdovou cestou k domu, včetně terasy o rozloze přibližně 30 m².
Přízemí nabízí kromě chodby, hostinského WC a variabilně řešitelné kuchyně s jídelním koutem i obývací pokoj o rozloze zhruba 32,50 m², který díky dvěma velkým okenním prvkům u podlahy prosvětluje celé přízemí.
Všechny místnosti přízemí jsou vybaveny moderními podlahovými dlaždicemi. Také ve všech obytných pokojích se nachází místní termostat pro regulaci podlahového topení v přízemí i v patře, které je provozováno pomocí plynového kondenzačního kotle nejnovější generace a solárního systému pro ohřev teplé vody.
Prakticky promyšlený je přímý vstup z garáže do domu, stejně jako vedlejší vchodové dveře, které vedou přímo z úložné místnosti za garáží ven.
Ocelové schodiště s masivními bukovými stupni vás zavede do patra, které se skládá z chodby, přibližně 18 m² velké ložnice rodičů, zhruba 13,54 m² velkého dětského pokoje a dalšího dětského pokoje o rozloze přibližně 11,60 m².
Koupelna o rozloze cca 6,80 m² je opláchnutá až po strop a obsahuje kromě umyvadla, vany a samostatné sprchy také další toaletu.
Místnost nad garáží, vybavená dvěma velkými trojúhelníkovými okny na přední i zadní straně, je individuálně využitelná jako užitkový prostor.
Další detaily vybavení zahrnují mimo jiné již instalovanou satelitní anténu a stropní sekční vrata s elektrickým pohonem.
Prosíme o bezpodmínečné uvedení vašich kompletních kontaktních údajů (přihlášky) ve vaší žádosti, neboť bez nich nebude vaše žádost brána v potaz:
• Jméno,
• Adresa,
• Počet a věk osob,
• Povolání a zaměstnavatel,
• Datum nástupu do zaměstnání,
• Čistý příjem,
• případně přítomná domácí zvířata
(Vaše přihláška prostřednictvím srovnávacího portálu totiž nelze technicky odeslat, proto prosíme o ruční uvedení.)
V okolí nemovitosti najdete
Stále hledáte to pravé?
Nastavte si hlídacího psa. Nabídky vybrané na míru dostanete souhrnně 1× denně e-mailem. S Premium profilem máte k ruce hlídačů rovnou 5 a když se něco objeví, informují vás obratem.




