
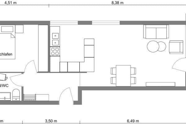
Prodej bytu 2+1 • 58 m² bez realitky, Bádensko-Württembersko
Krásný 2+kk byt se nachází ve 2. patře udržovaného činžovního domu.
Byt byl kompletně zrenovován. Ohřev teplé vody probíhá pomocí centrální topení na olej.
K bytu náleží v suterénu sklep.
Energie
Energetický průkaz
Energetická hodnota: 119 kWh/(m²·rok)
Energetická účinnost: třída D
Topení: centrální topení na olej
Rok výstavby dle energetického průkazu: 1973
Všechny obchody denní potřeby jsou v okruhu maximálně jednoho kilometru hojně zastoupeny. Například supermarket se nachází přibližně 190 metrů od bytu. Rodiny s dětmi mohou využít dobře dostupné nabídky vzdělávání a péče o děti. Nejbližší hřiště, mateřská škola a základní škola jsou vzdáleny pouhých 5 minut pěšky.
Stav objektu: běžný
Kvalita vybavení: standard
S balkonem
S vestavěnou kuchyní
S vlastním parkovacím místem
S prolékárnou (sklep na kola)
S prádelnou
V okolí nemovitosti najdete
Stále hledáte to pravé?
Nastavte si hlídacího psa. Nabídky vybrané na míru dostanete souhrnně 1× denně e-mailem. S Premium profilem máte k ruce hlídačů rovnou 5 a když se něco objeví, informují vás obratem.
















