
Prodej domu 5+1 • 175 m² bez realitky, Severní Porýní-Vestfálsko
, Severní Porýní-VestfálskoMHD 2 minuty pěšky • ParkováníSkvělé bydlení v Národním parku Siebengebirge v blízkosti rychle dosažitelného spolkého města Bonn – rodinně přívětivé a klidně situované – velmi dobrá a krásná obytná lokalita – vysoký potenciál pro volný čas a relaxaci – důležitá infrastruktura jako školky, škola, lékaři, lékárny, supermarket apod. dosažitelná pěšky – (dobré) napojení na veřejnou dopravu i dálniční síť.
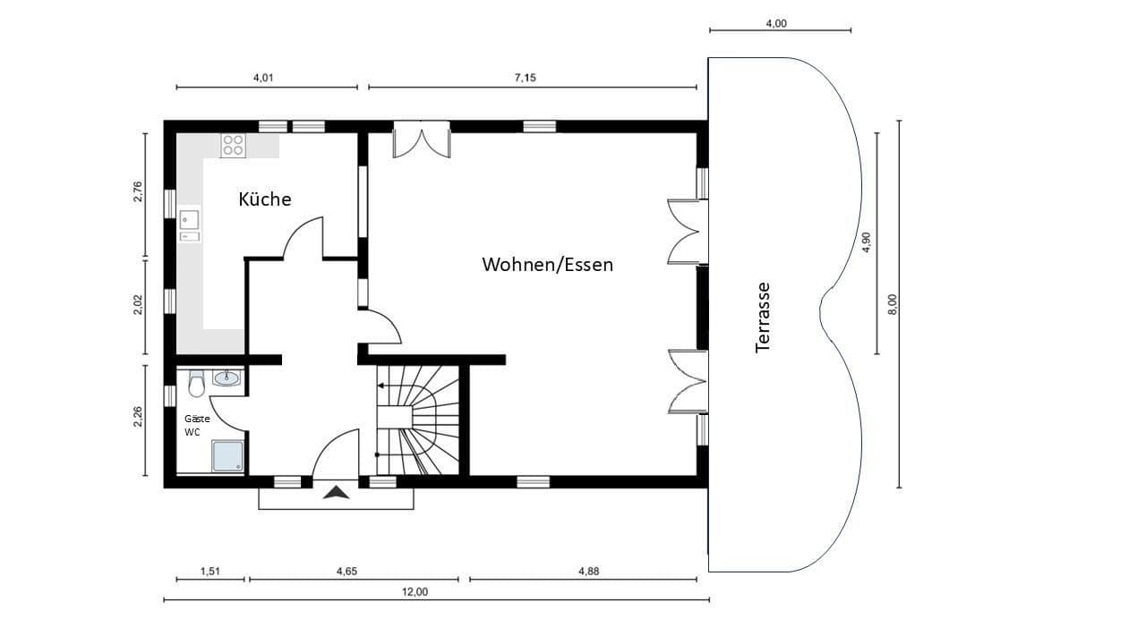
V této lokalitě se nachází tento samostatně stojící přívětivý rodinný dům, postavený v roce 1998 v masivní konstrukci, umístěný uprostřed čiré obytné čtvrti. Celková obytná a užitná plocha 270 m² zahrnuje 5 pokojů, včetně zrekonstruovaného podkroví, rozmístěných do 4 pater se zcela podzemním sklepem. Nemovitosti dále náleží prostorný venkovní prostor s terasou a zcela krytý, lákavý vstupní prostor s jedinečným designovým prvkem.
Venkovní prostor je rozčleněn následovně:
– lehce vyvýšený vstupní prostor s oddělenou mansardovou střechou
– cesta obklopující dům je zabezpečena dvěma dřevěnými vraty a vede k prostorné terase
– velká, individuálně tvarovaná terasa s jihozápadní orientací
– k terase navazuje rozlehlá trávníková plocha, lemovaná krásnou směsí rostlin
– na vstupní straně, za parkovacím místem, se nachází kryté úložné místo pro kola a další věci, následované technickým zázemím
– podlaha ve vstupním prostoru, stejně jako cesta kolem domu, místo na kola i terasa, jsou položeny z terakotových betonových dlaždic
Dům se vstupuje přes prostornou předsíň v přízemí, která ohromuje svou světlou, otevřenou obývací a jídelní částí. Díky tomu vzniká světlá a přívětivá atmosféra. Moderní kuchyně je vybavena jídelním koutem. Dále toto patro nabízí také hostinskou toaletu a šatní prostor.
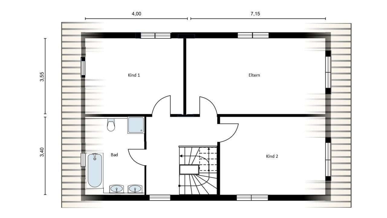
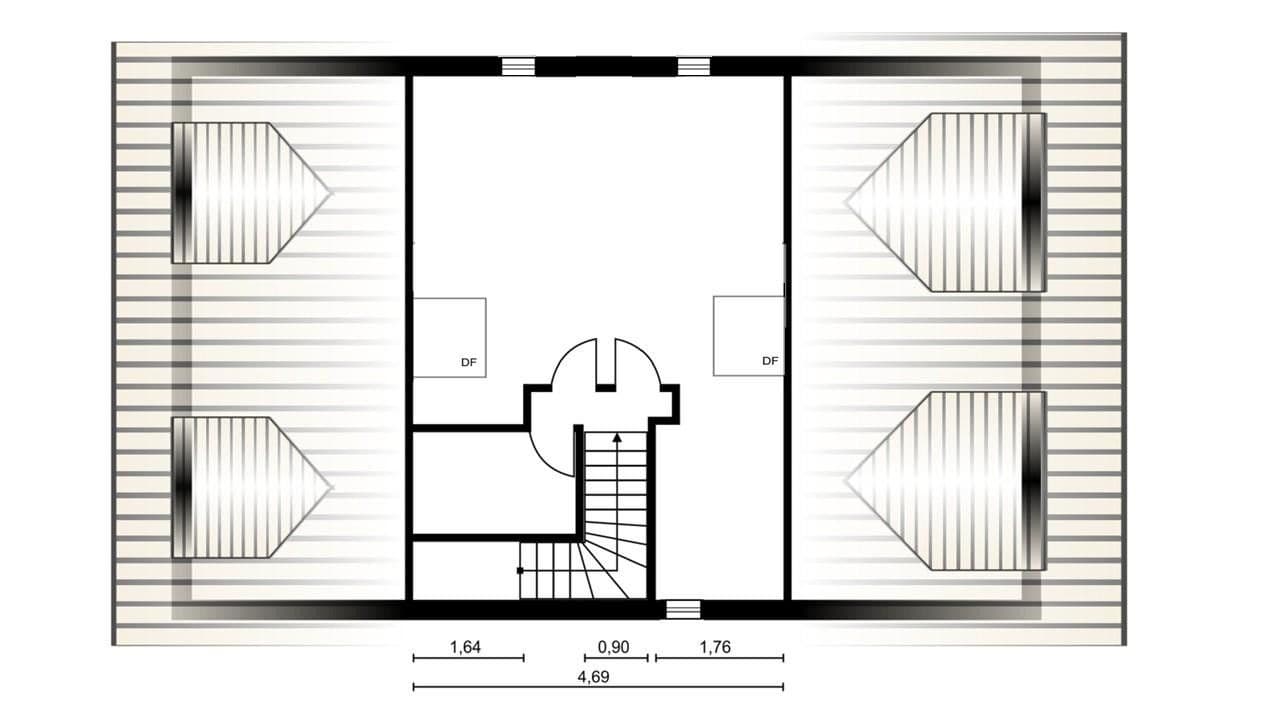
V horním patře se nacházejí dvě dětské místnosti, rodičovská ložnice a koupelna. Světlé a prostorné zrekonstruované podkroví je vybaveno dvěma vestavěnými velkými střešními okny značky Velux, díky kterým si můžete vychutnat nádherný výhled do okolí.
Sklep je rozdělen do čtyř místností: prostorného hobby sálu, prádelny, místnosti pro technické připojení domu a malé dílny.
Tento dům nabízí vše, co rodina potřebuje pro pohodlný život – v lokalitě, která přesvědčuje dnes i v budoucnu. Je to místo, kde mohou děti vyrůstat a dospělí se cítit jako doma.
Velmi výborná poloha na okraji Siebengebirge s dobrým napojením na veřejnou dopravu a vysokým rekreačním a relaxačním potenciálem.
Siebengebirge se svými lesy a známými památkami, útulnými podniky a volnočasovými zařízeními je z domu dosažitelné pěšky nebo na horském kole po četných turistických stezkách.
Krásné tenisové zařízení (venkovní kurty i hala) s výhledem až na Kolín je dosažitelné během několika minut pěšky.
V bezprostředním okolí se nacházejí také koně ohradně umístěné stájové prostory a jezdecké stájky.
Dobrá infrastruktura je dostupná pěšky v obci – základní škola, školky, kostely, lékárny, lékaři, zubaři, fyzioterapie, kadeřnictví, obchod REWE. Další možnosti nákupu pro každodenní potřeby (drogerie, discountery, supermarkety, stavebniny) se nacházejí v nedalekých obcích Oberpleis a Dollendorf.
Nejbližší gymnázium v Oberpleis je dosažitelné autobusem během několika minut.
Autobusové zastávky jsou pěšky velmi dobře dostupné.
Vzdálenost k nejbližšímu vjezdu na dálnici (A3 Siebengebirge): 5 km
Vzdálenost k vjezdu na dálnici A59 v Oberdollendorfu: 6 km
Vzdálenost k nejbližšímu nádraží (Niederdollendorf): 5,5 km
Vzdálenost k centru Bonnu: 15 km
Vybavení:
• Bílá dřevěná vstupní vrata
• Bílé dřevěné pokojové dveře
• Bílá dřevěná okna
• Střešní okna Velux
• Vysoce kvalitní terakotové Feinstein dlaždice v předsíni, na toaletě a v kuchyni
• Parkety z masivního dřeva v obývacím pokoji a horním patře
• Dřevěné podlahové desky v podkroví
• Vestavěná kuchyň s Miele spotřebiči
• Vysoce kvalitní, robustní, teplu i poškrábání odolné, stejně jako vodě a kyselinám rezistentní keramické pracovní desky
• Prostup do obývacího/jídelního prostoru vybavený velkým skleněným oknem
• Hostinská toaleta se sprchou v přízemí
• Koupelna v horním patře se dvěma umyvadly, vanou a sprchou
• Podkroví se dvěma masivními dřevěnými dveřmi a dvěma velkými střešními okny Velux
(včetně pevných okenních částí v dolní části) s elektrickými žaluzie
• Energeticky efektivní centrální plynové topení s vodním zásobníkem, instalováno v roce 2013
• 160litrový ohřívač vody, obnovený v roce 2025
• Vestavěné rolety v přízemí
• Venkovní rolety v horním patře
• Prádelní šachta ve schodišti spojující horní patro a sklep
• Malá mezistupňová plošina ve schodišti sloužící jako úložný prostor pro kufry a podobné předměty
Pro sjednání termínu prohlídky je nutné předložit doklad o financování z Vaší banky.
V okolí nemovitosti najdete
Stále hledáte to pravé?
Nastavte si hlídacího psa. Nabídky vybrané na míru dostanete souhrnně 1× denně e-mailem. S Premium profilem máte k ruce hlídačů rovnou 5 a když se něco objeví, informují vás obratem.




























