Prodej bytu • 294 m² bez realitkyJahnstraße 16a Düsseldorf Friedrichstadt Nordrhein-Westfalen 40215
Kousek Düsseldorfs historie průmyslu byl znovu oživen – ve staré senfové továrně se autentická atmosféra loftu setkává s architektonickou precizností a udržitelností do budoucna.
V bývalé senfové továrně z roku 1843 se setkává industriální šarm s moderním obytným komfortem v rámci výjimečného konceptu bydlení.
Mezi lety 2016 a 2019 byla budova kompletně zrekonstruována – včetně kompletní výměny všech rozvodů, moderního topného systému, podlahového vytápění s viditelnou betonovou vrstvou a špičkové klimatizace.
Prostorný loft ohromuje původní parketovou podlahou z masivního dubového dřeva, otevřenou kuchyňskou zónou s elegantním mozaikovým obklady Zeľige a prosvětlenými místnostmi díky zakázkovým dřevěným oknům od Frovin (Dánsko).
Střecha v rovině je již připravena na zeleň nebo výstavbu střešní terasy – staticky proveditelná, povolení ještě není.
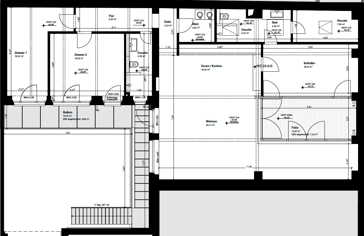
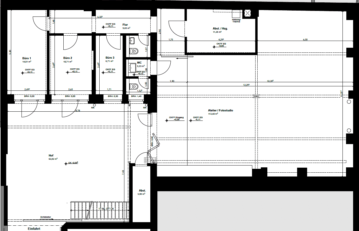
Nemovitost je dělitelná na čtyři jednotky a nabízí flexibilní možnosti využití jako obytný dům, ateliér nebo kreativní pracovní prostředí.
Na dvorku se historické dlažební kameny z kostelního předníku setkávají s moderní udržitelností: připraveno pro elektrickou nabíjecí stanici, volitelně s urban farmingovou plochou nebo solární elektrárnou.
Dvě parkovací místa v podzemní garáži ve vedlejší budově doplňují tuto vzácnou nabídku.
Stará senfová továrna se nachází v klidné, avšak centrální lokalitě Düsseldorfu – jen několik minut od Königsallee, historického centra a procházky podél Rýna.
Čtvrť zaujme ideální kombinací městské živosti a příjemného sousedství. Obchody, restaurace, školy a veřejná doprava jsou dosažitelné pěšky.
Díky výbornému spojení s veřejnou dopravou a blízkosti k důležitým dopravním tahům je lokalita ideální jak pro rodiny, tak pro kreativce a dojíždějící profesionály.
Kompletní rekonstrukce 2016–2019 (technika, rozvody, izolace, elektroinstalace)
• Moderní topný systém s ohřevem vody (2019)
• Podlahové vytápění s viditelným betonovým povrchem v ateliéru
• Původní parketová podlaha z masivního dubového dřeva
• Klimatizace
• Špičková dřevěná okna a dveře (Frovin, Dánsko)
• Otevřená kuchyňská zóna s ručně vyrobenými mozaikovými dlaždicemi Zeľige
• Patio s udržitelným dřevem z Brokopondo přehrady (Surinam)
• Střecha v rovině připravená pro zelenou střechu / střešní terasu / solární elektrárnu
• Dvůr s historickou dlažbou a přípravou na elektrickou nabíjecí stanici
• 2 parkovací místa v podzemní garáži ve vedlejší budově
• Celková plocha cca 403 m² (Přízemí 237 m² / 1. patro 166 m²)
Parametry nemovitosti
| Stáří | Nad 50 let |
|---|---|
| Číslo inzerátu | 959356 |
| Cena za jednotku | 13 605 € / m2 |
| Stav | Po rekonstrukci |
|---|---|
| Užitná plocha | 294 m² |
Co tato nemovitost nabízí?
| Balkón | |
| MHD 4 minuty pěšky |
| Garáž | |
| Parkování | |
| Terasa |
V okolí nemovitosti najdete
Stále hledáte to pravé?
Nastavte si hlídacího psa. Nabídky vybrané na míru dostanete souhrnně 1× denně e-mailem. S Premium profilem máte k ruce hlídačů rovnou 5 a když se něco objeví, informují vás obratem.










































