Prodej domu 7+1 • 144 m² bez realitkyVogelherdstr. 15c, , Bavorsko
Vogelherdstr. 15c, , BavorskoMHD 3 minuty pěšky • GarážTento prázdný, masivní řadový dům na konci řady nabízí přibližně 144 m² obytné plochy, různé možnosti využití a je ideální jak pro investory hledající nemovitost k pronájmu, tak pro řemeslníky s vizemi.
Detaily objektu:
- Stav: Prázdný, vyžaduje rekonstrukci
- Stavba: Masivní konstrukce
- Rok výstavby: 1965
- Ideální pro pár nebo rodinu
Přízemí: Vstupní hala, hostinské WC, kuchyně a obývací pokoj s terasou
1. patro: 3 ložnice a koupelna
2. patro: 2 ložnice
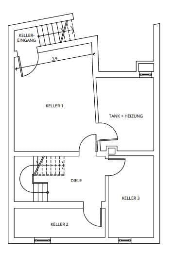
Sklep: Různé sklepní místnosti a prostor pro techniku domácnosti
Budova vykazuje konkrétní potřebu sanace či rekonstrukce:
- Sanitační instalace
- Vnitřní úpravy (podlahy, stěny, stropy)
Tento objekt je opravdovým surovým diamantem pro ručně zručné kupce nebo investory. S dostatkem prostoru, solidní konstrukcí a atraktivním pozemkem nabízí nejlepší předpoklady pro výdělečnou rekonstrukci a různorodé využití – ať už k vlastnímu bydlení, nebo k pronájmu.
Dům je okamžitě k nastěhování.
Dům je vytápěn centrálním topením na olej.
Energetický štítek je právě ve fázi vyhotovení.
Prodej probíhá soukromě, a proto je bez provize.
Makléřské dotazy nejsou výslovně žádoucí a nebudou zodpovězeny.
V okolí nemovitosti najdete
Stále hledáte to pravé?
Nastavte si hlídacího psa. Nabídky vybrané na míru dostanete souhrnně 1× denně e-mailem. S Premium profilem máte k ruce hlídačů rovnou 5 a když se něco objeví, informují vás obratem.






























