Prodej bytu 4+1 • 140 m² bez realitkyKlosterstraße 10, , Bavorsko
Prodává se exkluzivní a individuálně navržený architektonický byt v centru Eggenfelden.
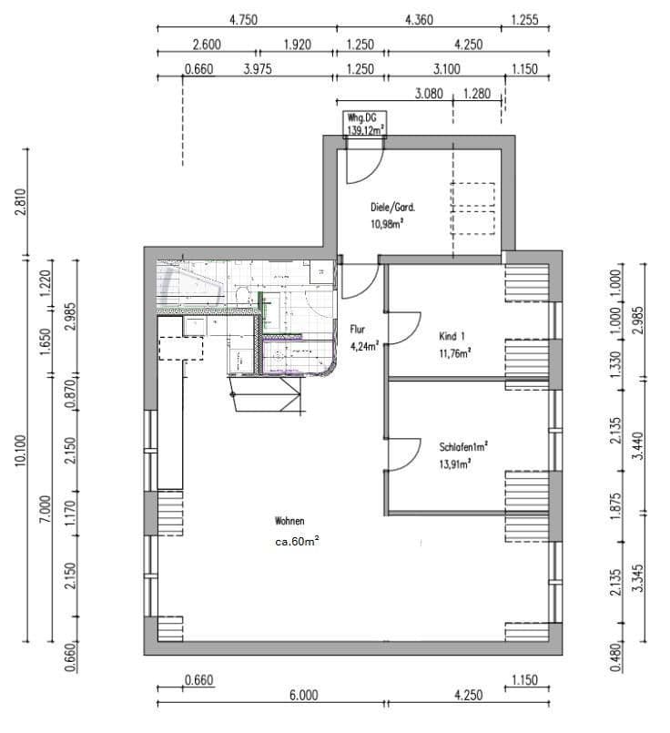
Byt má obytnou/užitkovou plochu 140 m². V současnosti je byt vlastně využíván k vlastnímu bydlení. K budově vede výtah až ke vstupním dveřím a byt je – kromě galerie – bezbariérový.
Všechny místnosti jsou vybaveny stropními reflektory, takže není nutné instalovat další stropní osvětlení.
Nemovitost se nachází v Eggenfelden, městě s velmi dobrým dopravním spojením u křižovatky silnic B20, B388 a B588. Na dálnici A94 směr Mnichov dojedete za 15 minut, odkud se do hlavního města spolkové země dostanete během jedné hodiny. Oblast Rottaler Bäder-Dreieck se nachází 30 km daleko.
Obchody, restaurace, školy, lékaři, volnočasová zařízení, úřady, městské náměstí atd. jsou v bezprostřední pěší dostupnosti. Vlaková zastávka se nachází 400 metrů od bytu.
U šestiparťového domu jsou pro vlastníky tři parkovací místa přímo u budovy. Celý komplex je převážně využíván komerčně (lékaři, lékárna, kanceláře), proto je zejména o víkendech a večerních hodinách velmi klidno.
Místnosti byly původně využívány jako architektonické kanceláře, a v roce 2022 došlo k přestavbě na obytné prostory, což bylo podle stanovení možného dle prohlášení o společném vlastnictví.
Byly instalovány velké střešní balkony a zavedeno zastínění pro první střešní sklo. Kompletní přestavba koupelny, vysoce kvalitní kuchyně s přírodním kamenem a parketovou podlahou, stejně jako úpravy dispozic, rovněž pocházejí z roku 2022.
Kromě toho byly vyměněna střešní okna a první střešní sklo.
Program bytu:
- Vstupní hala s novým vestavěným nábytkem od truhláře pro šatnu a úložný prostor
- Kancelář (nebo dětský pokoj)
- Koupelna s vanou a bezbariérovou sprchou
- Ložnice
- Velký kuchyňsko-jídelní obývací prostor o rozloze cca 60 m²
- Galerie se střešními balkony, které téměř přemění prostor na střešní terasu
- Pokoje pro hosty na galerii
Měsíční poplatek za dům činí 408 € plus přibližně 193 € na úspory. Úspory pro celou budovu se do konce roku 2025 odhadují na cca 43 000 €, přičemž podíl na úsporách pro tento byt činí podle podílu na společném vlastnictví přibližně 6 500 €.
V okolí nemovitosti najdete
Stále hledáte to pravé?
Nastavte si hlídacího psa. Nabídky vybrané na míru dostanete souhrnně 1× denně e-mailem. S Premium profilem máte k ruce hlídačů rovnou 5 a když se něco objeví, informují vás obratem.



















