
Pronájem kanceláře • 180 m² bez realitkyDettingerstr.1, , Bádensko-Württembersko
Dettingerstr.1, , Bádensko-WürttemberskoMHD 1 minuta pěšky • Výtah • ParkováníNájemní prostor se nachází v 1. patře a je přístupný schodištěm nebo výtahem. Místnosti jsou díky velkému množství oken světlé a vhodné pro kanceláře, ordinace, školící místnosti, pojišťovny atd.
Centrum Kirchheim, Dettingerstr. 1, vstup přes Alleenstr. 54, 1. patro.
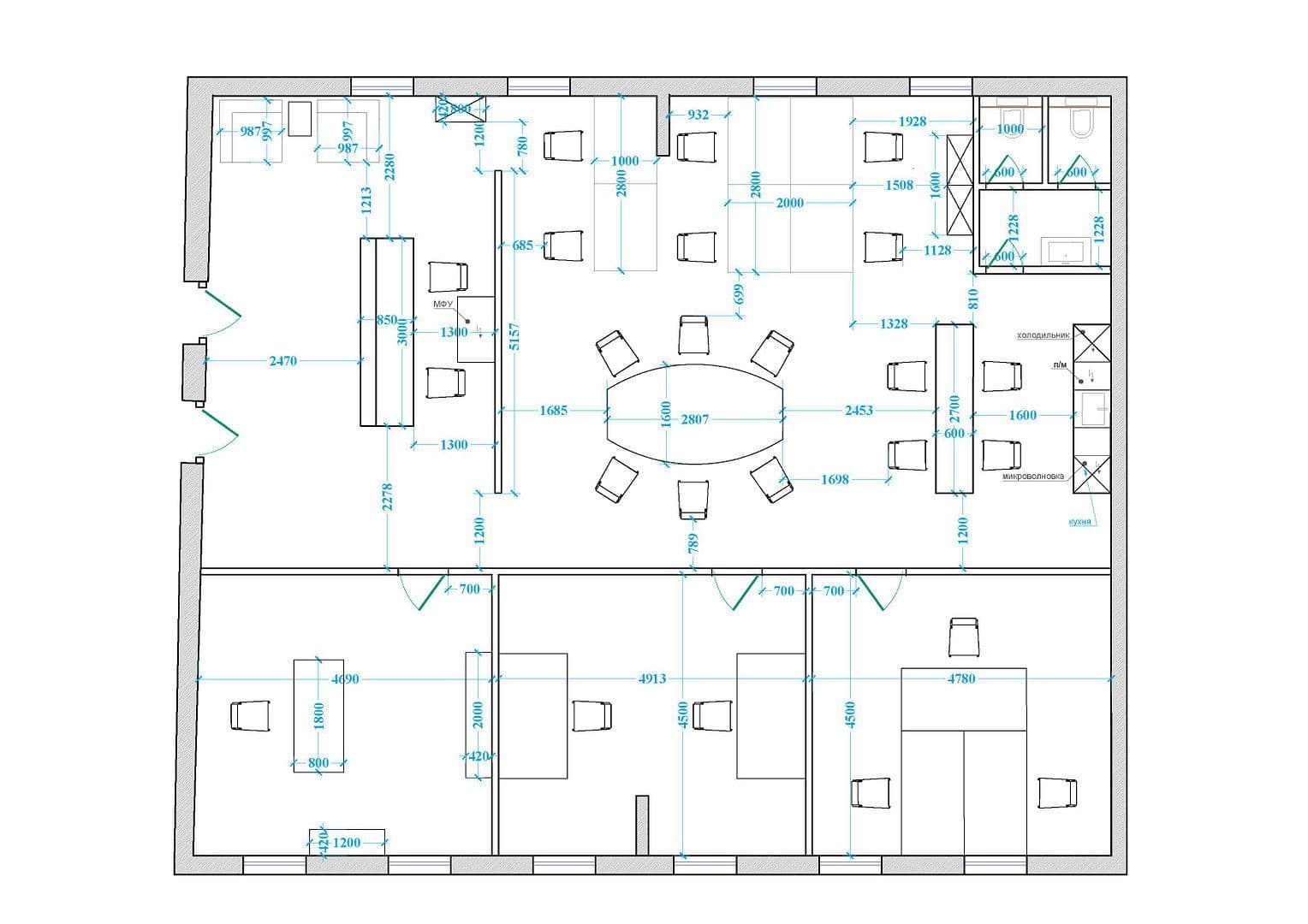
Nemovitost je ve stavu částečného dokončení, proto je možné její dokončení dle individuálních požadavků. Nájemní plocha o rozloze 180 m² (modře vyznačená na půdorysu) je možné rozšířit na 230 m² (červeně vyznačená).
Parkovací možnosti:
Nabízíme k pronájmu 2–3 parkovací místa (55,- € netto za místo za měsíc) asi 300 metrů od objektu.
Nájemné za kancelářské/ordinace prostory:
9–11 € za m², v závislosti na požadavcích na úpravu, přičemž náklady na úpravu a délka nájemní smlouvy jsou na straně nájemce.
Parametry nemovitosti
| Podlaží | 1. podlaží |
|---|---|
| Plocha kanceláře | 180 m² |
| Číslo inzerátu | 959828 |
|---|---|
| Cena za jednotku | 10 € / m2 |
Co tato nemovitost nabízí?
| Parkování |
| Výtah | |
| MHD 1 minuta pěšky |
V okolí nemovitosti najdete
Stále hledáte to pravé?
Nastavte si hlídacího psa. Nabídky vybrané na míru dostanete souhrnně 1× denně e-mailem. S Premium profilem máte k ruce hlídačů rovnou 5 a když se něco objeví, informují vás obratem.






