Prodej bytu 3+1 • 90 m² bez realitkySchützenstr. 79, , Porýní-Falc
Přímé užívání od 01.12.2025; udržovaný vlastnický byt v prvním patře tříbytového domu se nachází s 1 garáží a 2–3 parkovacími místy pro osobní vozy a se stavebním pozemkem na zadní části pozemku.
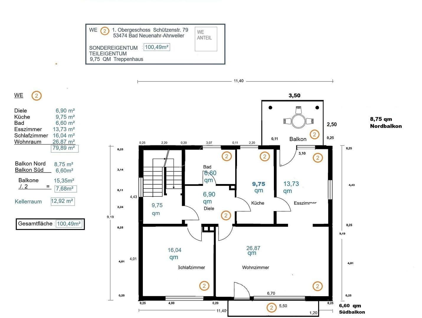
Sklep, přízemí, částečně i 1. patro (koupelna, chodba a pokoj zrekonstruovány, patro s připojením krbového kamna – k dispozici jsou 2 komínové tahy); okna s dvojskly a elektrická sekční garážová vrata; nové technické rozvody ve sklepě a přízemí; různé kvalitní podlahové krytiny – dlaždice i parkety; vestavěná skříň; vytápění pomocí nových dvojitých tepelných čerpadel značky Daikin (2022); oplocení; vjezd s možností parkování pro 2–3 vozy; žádné nahromaděné nutné rekonstrukce! Při nastěhování se počítají pouze drobné opravy. K bytu patří výhradní užívání uzavřené zadní části zahrady (přístup boční cestou nebo přes garáž).
Při koupi bytu a levé garáže je pevná cena 240 000 €.
V znaleckém posudku se pro byt počítá cena 270 000 € (3 000 € za m²) a pro garáž 30 000 € (elektrická sekční vrata za 4 000 €). Proto je možná financování v rozmezí 80 až 100 %.
Dům se nachází v srdci obce Bad Neuenahr – Ahrweiler (PSČ 53474), ve třetí řadě domů od řeky Ahr. Všechny obchody jsou v centru Ahrweilera rychle dostupné.
Byt v 1. patře se dvěma balkony (jižním a severním) bude volně k dispozici od 30.11.2025.
Podlahou je parketa (broušitelná/lakovatelná), dále zde najdete dlaždicovou podlahu a dlaždicovou stěnu, dřevěnou obložení stěn a vestavěnou skříň, která může sloužit i jako ložnice.
Garáž je ihned volná. Parkovací místa budou na pozemku zřízena před prodejem.
V okolí nemovitosti najdete
Stále hledáte to pravé?
Nastavte si hlídacího psa. Nabídky vybrané na míru dostanete souhrnně 1× denně e-mailem. S Premium profilem máte k ruce hlídačů rovnou 5 a když se něco objeví, informují vás obratem.



















