Prodej bytu 4+1 • 116 m² bez realitkyEinumer Str. 5, , Dolní Sasko
Tato starší bytová etážová bytová jednotka je oboustranně využitelná. K bytu se však kupuje značná možnost rozšíření v podobě zrekonstruovatelného půdního prostoru a sklepa, takže zde je prostor jak pro koníčky, tak pro rozšíření obytné plochy. Získáte další obytný prostor s výhledem na město. Na západní straně by se dal zabudovat francouzský balkon a na jižní straně se právě doplňuje tzv. kabrio okno s možností úniku. To druhé je součástí koupě.
Byt může sloužit malé rodině, spolubydlícím nebo pro společné bydlení a práci. Díky rozdělení na dva samostatné části je také velmi vhodný pro sdílené bydlení. Dům vyzařuje kouzlo zakladatelského období, ale je moderně vybaven plynovými jednotkovými kotli a společnou zahradou. Vlastník platí plyn sám. Byt se nachází v blízkosti centra na ulici Einumer ve nejvyšším patře domu. Čtyři pokoje jsou vždy spojeny ve dvojicích do jedné jednotky, tedy jsou zde 2 průchozí pokoje. U tří pokojů je výhled do společné zahrady, která také nabízí možnost grilování.
K bytu se prodává rozvojový potenciál pod půdními prostory (cca 50 m²). Zde je možnost vybudování střešní terasy nebo volného posezení s výhledem na Hildesheim. Byt se tak stává zajímavým pro toho, kdo jej chce rozšířit (nyní nebo později): tedy pro ty, kteří chtějí vytvořit exkluzivní obytný prostor nad střechami Hildesheimu. Půdní prostor bude stejně jako samostatný pokoj ve sklepu začleněn do prohlášení o rozdělení vlastnictví společenství vlastníků a bude k tomuto bytu výlučně přiřazen. Půda i hobby místnost ve sklepě mohou být samozřejmě také rozvedeny až později.
Navíc zde jsou zahrada, prádelna a chodby ve společném vlastnictví.
Blízko centra, ale klidně, se krásnou zahradou k společnému užívání a vlastním balkonem směřujícím k tiché straně zahrady. Všechna důležitá zařízení jsou v pěší vzdálenosti v centru Hildesheimu.
Kuchyně (včetně vestavěné kuchyňské linky), hala, koupelna, prádelna a sklep na zásoby, zahrada ke společnému využití, byl instalován plynový jednotkový kotel.
Střešní okno se dá otevřít tak, že přímo pod střechou vznikne malý balkon. Současně toto okno slouží jako druhá úniková možnost, pokud by se půda měla zrekonstruovat (viz koncept).
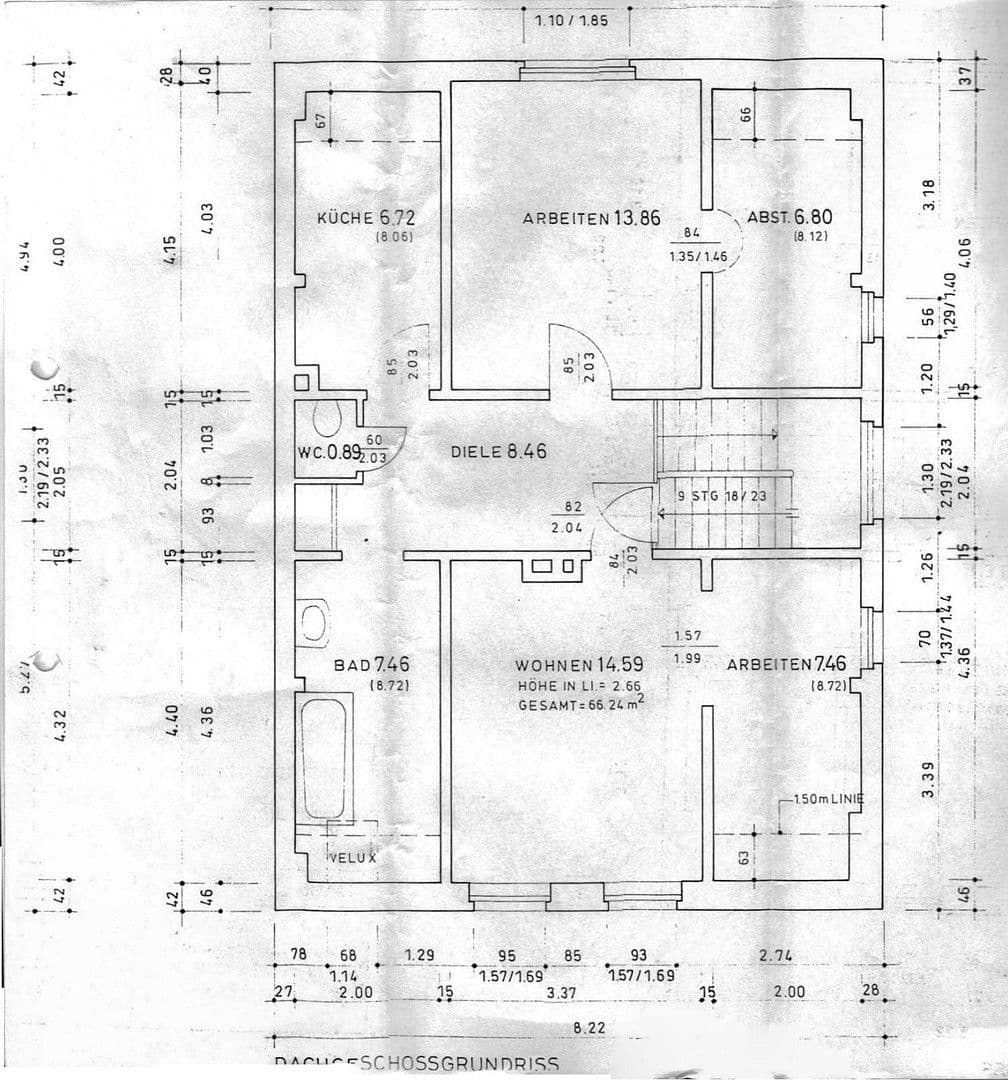
Existuje konceptuální analýza architekta, díky které se obytná plocha zvýší ze 66 na více než 116 m². Kromě toho vznikne další obytný prostor ve střešní oblasti, který však díky nedostatečné výšce není zahrnut do výpočtu obytné plochy (nad rámec 116 m²). Počet pokojů se zvýší ze 4 na 6. Tato konceptuální analýza přechází na kupujícího spolu s koupí.
Je k dispozici prohlášení o rozdělení. Byt má – včetně sklepení – celkovou plochu 135 m².
V okolí nemovitosti najdete
Stále hledáte to pravé?
Nastavte si hlídacího psa. Nabídky vybrané na míru dostanete souhrnně 1× denně e-mailem. S Premium profilem máte k ruce hlídačů rovnou 5 a když se něco objeví, informují vás obratem.
















