Prodej domu 4+1 • 143 m² bez realitky, Bavorsko
Prodávám dům v centru města, udržovaný, s ústředním topením a krbem v obývacím pokoji, s moderní kuchyní a ostrovem od Nobilia,
Podlaha je z černého parketu, dále vinylový laminát, stěny jsou obloženy tapetami a koupelna je také ve výborném stavu.
Dům se skládá ze tří podlaží vedle malého pozemku, na kterém si můžete postavit terasu. Rok výstavby:
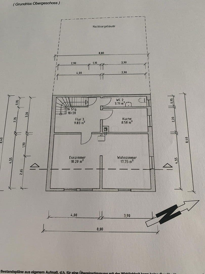
Horní dvě podlaží a střecha byly postaveny v roce 1965, první patro a sklep s klenutými stropy vznikly dříve, v roce 1876. Všechny dokumenty z minulé doby jsou k dispozici a existuje také náčrt inženýrské kanceláře s přesným plánem a rozměry domu.
Ústřední topení je od roku 2009, ale v roce 2020 byl nainstalován nový hořák a nádrže na olej.
Přízemí je uzpůsobeno pro vozíčkáře a má samostatný vstup.
Okna v domě byla postavena v roce 1992 a všechna jsou zvukově izolovaná. Pouze v podkroví by je bylo vhodné vyměnit, ale město Rieneck má podpůrný program pro domy ve starém městě se slevou 30 %.
Dům se nachází v centru města, v blízkosti obchodu, banky, autobusové zastávky, základní školy a mateřské školy. V Rienecku je také vlakové nádraží.
V okolí se nachází velké městské parkoviště.
Přízemí je v plánu domu zakresleno pouze jako sklad, neboť dříve bylo využíváno pro samostatnou činnost. Jinak je obyvatelné a přizpůsobené pro vozíčkáře, má samostatný vstup z ulice, ovšem má nízké stropy s výškou až 2,20 m. Viz plán domu.
Vedlejší náklady spojené s prodejem (notář, katastr, daně, …) nese kupující.
Pokud máte dotazy, napište mi, odpovím vám a můžete si také domluvit termín prohlídky domu.
V okolí nemovitosti najdete
Stále hledáte to pravé?
Nastavte si hlídacího psa. Nabídky vybrané na míru dostanete souhrnně 1× denně e-mailem. S Premium profilem máte k ruce hlídačů rovnou 5 a když se něco objeví, informují vás obratem.

















