
Prodej domu • 180 m² bez realitky, Dolní Sasko
Ihr neues Zuhause wartet – Großzügiges 1-2 Familienhaus mit ländlichem Charme in zentraler Lage!
— Vaše nový domov čeká – prostorný rodinný dům pro 1-2 rodiny s venkovským kouzlem v centrální lokalitě!
(Wir sind gerade in die Umzugsphase unseres neuen Hauses. Steht einem zeitnahen Verkauf und der Übergabe des Hauses nichts mehr im Wege.)
— (Právě se stěhujeme do našeho nového domu. Na rychlý prodej a předání domu není již nic, co by tomu bránilo.)
Dieses zweistöckige MASSIVhaus ist ideal für Mehrgenerationen wohnen oder als großzügiges Einfamilienhaus nutzbar. Es wurde damals als 2 Familienhaus mit 2 Wohnungen gebaut.
— Tento dvoupatrový masivní dům je ideální pro soužití více generací, nebo jej lze využít jako prostorný rodinný dům. Původně byl postaven jako dům pro 2 rodiny se dvěma byty.
Haus mit Mehrwert:
1. Perfekt für die Großfamilie.
2. Wohnen & Einkommen: Ideal zur Kombination von Selbstwohnen und Teilvermietung.
3. Volle Rendite: Komplette Nutzung als Mehrfamilien-/Kapitalanlageobjekt möglich.
— Dům s přidanou hodnotou:
1. Perfektní pro rozvětvené rodiny.
2. Bydlení a příjem: Ideální pro kombinaci vlastního bydlení a částečného pronájmu.
3. Úplný výnos: Plná využitelnost jako objekt pro více rodin či investiční nemovitost.
Großes Grundstück: Genießen Sie das weitläufige, 1.240 m² große Grundstück mit einem massiv gebauten Gartenhaus, das im Sommer zu einem zusätzlichen Wohnraum wird.
— Prostorný pozemek: Užijte si rozsáhlý pozemek o rozloze 1 240 m² se zahradním domkem postaveným z masivu, který se v létě promění v další obytný prostor.
Qualität und Komfort: Das Haus wurde in solider, zweischaliger Bauweise errichtet, was für eine natürliche Dämmung sorgt. Es verfügt überwiegend über Parkettböden, und Solarkollektoren helfen beim Stromsparen. Die funktionstüchtige Öl-Zentralheizung ist vorhanden und ein Gasanschluss ist bereits im Haus.
— Kvalita a komfort: Dům byl postaven solidní dvoudílnou konstrukcí, která zajišťuje přirozenou izolaci. Většina podlah je dřevěná parketa a solární kolektory pomáhají šetřit elektřinu. K dispozici je funkční centrální topení na olej a gasová přípojka je již v domě.
Bitte beachten Sie: Obwohl wir mit teilweise elektro installation angefangen haben, das Haus ist unrenoviert und ideal für Käufer, die eigenen Stil und Renovierungsarbeiten einbringen möchten. Bitte beachten Sie, dass wir die Renovierungsstellen mit Brüchen, unverputzten Stellen und Ähnlichem nicht verputzt oder ästhetisch bearbeitet haben. Dies diente dazu, Ihnen einen ungefilterten Einblick in den tatsächlichen Zustand der Mauern und Kabelkanäle zu ermöglichen. Wir haben bewusst auf eine oberflächliche Kaschierung verzichtet.
— Vezměte prosím na vědomí: Přestože jsme částečně začali s elektroinstalací, dům je nezasunutý (není zrekonstruován) a je ideální pro kupce, kteří chtějí do něj vložit svůj vlastní styl a provést rekonstrukční práce. Vezměte prosím na vědomí, že jsme nezakryli ani esteticky neupravili místa po opravách s prasklinami, neomítnutými místy a podobně. Sloužilo to k tomu, abyste získali nezkreslený pohled na skutečný stav zdí a kabelových kanálů. Záměrně jsme se vyhnuli povrchnímu zakrývání nedostatků.
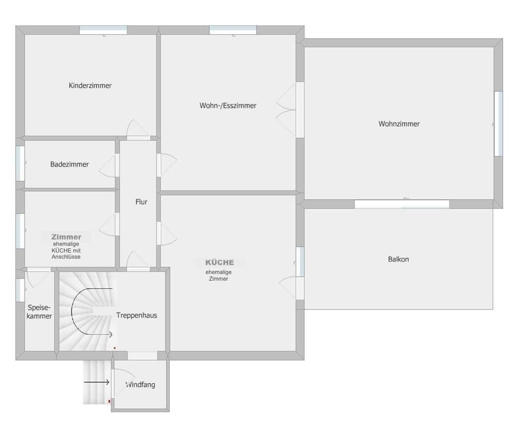
Großzügige Raumaufteilung:
Wohn- und Nutzfläche: Insgesamt ca. 300 Quadratmeter (ca. 180 Quadratmeter Wohnfläche, ca. 120 Quadratmeter Nutzfläche).
Erdgeschoss: Eine Terrasse mit Fernblick, eine geräumige Küche (ca. 20 m²), ein großes Wohn- und Esszimmer (ca. 50 m²), ein Schlafzimmer, ein Gästezimmer und ein Bad mit Fenster.
— Prostorné dispoziční řešení:
Obytná a užitná plocha: Celkem cca 300 m² (cca 180 m² obytné plochy, cca 120 m² užitné plochy).
Přízemí: Terasa s výhledem do dálky, prostorná kuchyně (cca 20 m²), velký obývací a jídelní pokoj (cca 50 m²), ložnice, pokoj pro hosty a koupelna s oknem.
Obergeschoss: Fünf weitere Zimmer (inkl. ehem. Küche), ein Bad mit Badewanne und ein Balkon.
— Patro: Pět dalších pokojů (včetně bývalé kuchyně), koupelna s vanou a balkon.
Keller: Der Wohnkeller bietet zusätzliche Nutzfläche mit zwei großen Zimmern, einem Duschbad und einer Doppelgarage mit zwei Rolltoren.
Die Immobilie ist mit einer vollständigen Drainage rund um das Haus ausgestattet.
— Suterén: Obytný sklep nabízí další užitnou plochu se dvěma prostornými pokoji, koupelnou se sprchou a dvojgaráží se dvěma posuvnými vraty.
Nemovitost je vybavena kompletním drenážním systémem okolo domu.
Hinweise für Interessenten:
Keine Maklerprovision: Da es sich um einen Privatverkauf handelt, sparen Sie sich die Maklergebühren.
— Poznámky pro zájemce:
Žádný makléřský poplatek: Jedná se o soukromý prodej, takže ušetříte na makléřských provizích.
Lagevorteile:
Die Hauptstraße bietet eine hervorragende Infrastruktur. Alfeld Zentrum mit viele Einkaufsmöglichkeiten ist in 15 Gehminuten zu erreichen.
Einkaufsmöglichkeiten, Schulen, Ärzte und öffentliche Verkehrsmittel sind bequem zu erreichen.
Alfeld selbst besticht durch seinen historischen Charme und seine grüne Umgebung.
— Výhody lokality:
Hlavní silnice nabízí vynikající infrastrukturu. Centrum Alfeldu s mnoha obchody je dosažitelné během 15 minut chůze.
Obchodní možnosti, školy, lékaři a veřejná doprava jsou snadno dostupné.
Samotný Alfeld okouzluje svým historickým šarmem a zeleným okolím.
Ein Hauskauf in dieser Größenordnung verdient einen seriösen Ablauf – vom ersten Gespräch bis zur Schlüsselübergabe. Daher legen wir großen Wert auf gewissenhafte und nachweislich korrekte Angaben unsererseits.
— Nákup domu v této hodnotě si zaslouží seriózní průběh – od prvního rozhovoru až po předání klíčů. Proto klademe velký důraz na pečlivé a prokazatelně správné informace z naší strany.
Ebenso freuen wir uns über eine offene und ehrliche Kommunikation von ernsthaften Interessenten. Gerne geben wir Ihnen bei einer Besichtigung Einblick in unsere privaten Räumlichkeiten, in denen wir täglich leben.
— Také se těšíme na otevřenou a upřímnou komunikaci od vážných zájemců. Při prohlídce vám rádi ukážeme náš soukromý prostor, ve kterém denně bydlíme.
Abschließend möchten wir Sie freundlich bitten, uns nach einer Besichtigung kurz mitzuteilen, ob weiterhin Interesse an der Immobilie besteht. Diese Rückmeldung hilft uns sehr in unserer Planung und wir bedanken uns im Voraus für Ihren respektvollen Umgang.
— Nakonec vás prosíme, abyste nám po prohlídce krátce dali vědět, zda máte stále zájem o nemovitost. Tato zpětná vazba nám velmi pomůže při plánování a předem děkujeme za váš respektující přístup.
Der Kauf eines Hauses im Wert von über 200.000 Euro ist ein wichtiger Schritt, bei dem ein reibungsloser Ablauf entscheidend ist. Vom ersten Gespräch bis zur Schlüsselübergabe legen wir größten Wert auf gewissenhafte Angaben und nachweisbare Fakten. Um Besichtigungstermine effizient koordinieren zu können, bitten wir Interessenten, uns vorab einen Nachweis über die gesicherte Finanzierung (allgemeine Finanzierungsrahmen) zukommen zu lassen. Vielen Dank für Ihr Entgegenkommen.
— Nákup domu za více než 200 000 eur je důležitým krokem, kde je rozhodující plynulý průběh celého procesu. Od prvního rozhovoru až po předání klíčů klademe největší důraz na pečlivé informace a ověřitelná fakta. Abychom mohli efektivně koordinovat prohlídky, žádáme zájemce, aby nám předem předložili doklad o zajištěném financování (v rámci obecného finančního limitu). Děkujeme za vaši vstřícnost.
Ebenso wünschen wir uns von ernsthaften Interessenten eine offene und ehrliche Kommunikation.
— Rovněž očekáváme od vážných zájemců otevřenou a upřímnou komunikaci.
Darüber hinaus bitten wir um eine kurze Rückmeldung nach einer Besichtigung, auch wenn kein weiteres Interesse besteht. Leider ist dies nicht immer der Fall!!!
— Navíc vás prosíme o krátkou zpětnou vazbu po prohlídce, i kdyby o nemovitost již nebyl zájem. Bohužel se to neděje vždy!!!
Ein respektvoller Umgang miteinander ist für uns selbstverständlich, da wir Ihnen unsere privaten Räumlichkeiten zeigen, in denen wir täglich leben.
Vielen Dank für Ihr Verständnis.
— Respektující přístup mezi námi je pro nás samozřejmostí, protože vám ukazujeme naše soukromé prostory, kde denně bydlíme.
Děkujeme za vaše pochopení.
Parametry nemovitosti
| Stáří | Nad 50 let | 
|---|---|
| Číslo inzerátu | 960475 | 
| Užitná plocha | 180 m² | 
| Celkem podlaží | 2 | 
| Stav | Před rekonstrukcí | 
|---|---|
| PENB | G - Mimořádně nehospodárná | 
| Plocha pozemku | 1 240 m² | 
| Cena za jednotku | 1 383 € / m2 | 
Co tato nemovitost nabízí?
| Balkón | |
| Garáž | |
| Parkování | |
| Terasa | 
| Sklep | |
| MHD 1 minuta pěšky | 
V okolí nemovitosti najdete
Stále hledáte to pravé?
Nastavte si hlídacího psa. Nabídky vybrané na míru dostanete souhrnně 1× denně e-mailem. S Premium profilem máte k ruce hlídačů rovnou 5 a když se něco objeví, informují vás obratem.



























