
Prodej domu 5+1 • 111 m² bez realitkyWulmstorfer Ring Hamburg Neugraben-Fischbek Hamburg 21149
Wulmstorfer Ring Hamburg Neugraben-Fischbek Hamburg 21149MHD 5 minut pěškyProvíze neplatíte – tento špičkově moderní řadový dům se nachází na stylovém pozemku orientovaném na jih, takže si můžete ve své vlastní zahradě užívat sluneční paprsky.
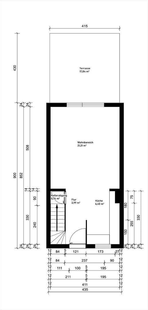
Dům se rozprostírá přes 2 podlaží – přízemí a nadzemní patro – plus zrekonstruovaný půdorys a obytné sklepení, celkem nabízí 5 pokojů a 2 koupelny.
Uvnitř domu se vstupní prostor otevírá do chodby, ze které vedou dobře vybavená kuchyně a obývací pokoj s přístupem na terasu. Ze střežené terasy se vám naskytne pohled na krásně zeleně zarostlou zahradu orientovanou na jih s množstvím slunečního světla.
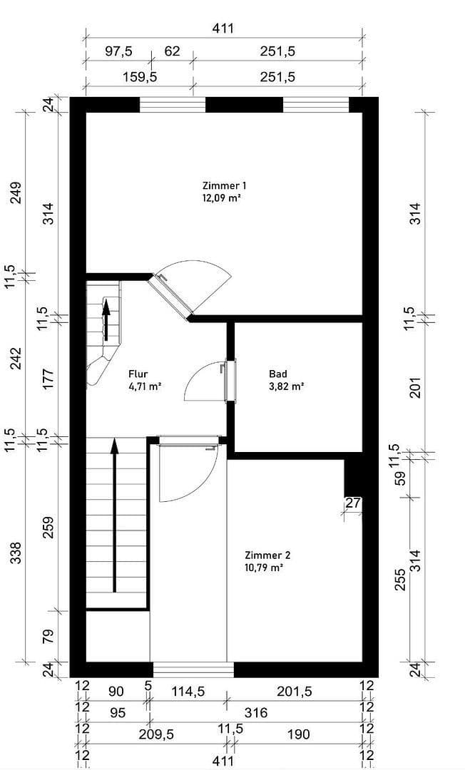
Horní patro nabízí moderní koupelnu, dvě ložnice nebo ložnici/dětský pokoj a kancelář, kterou lze například využít jako domácí pracovní místnost. Větší pokoj je orientován na jih, přímo směrem do zahrady.
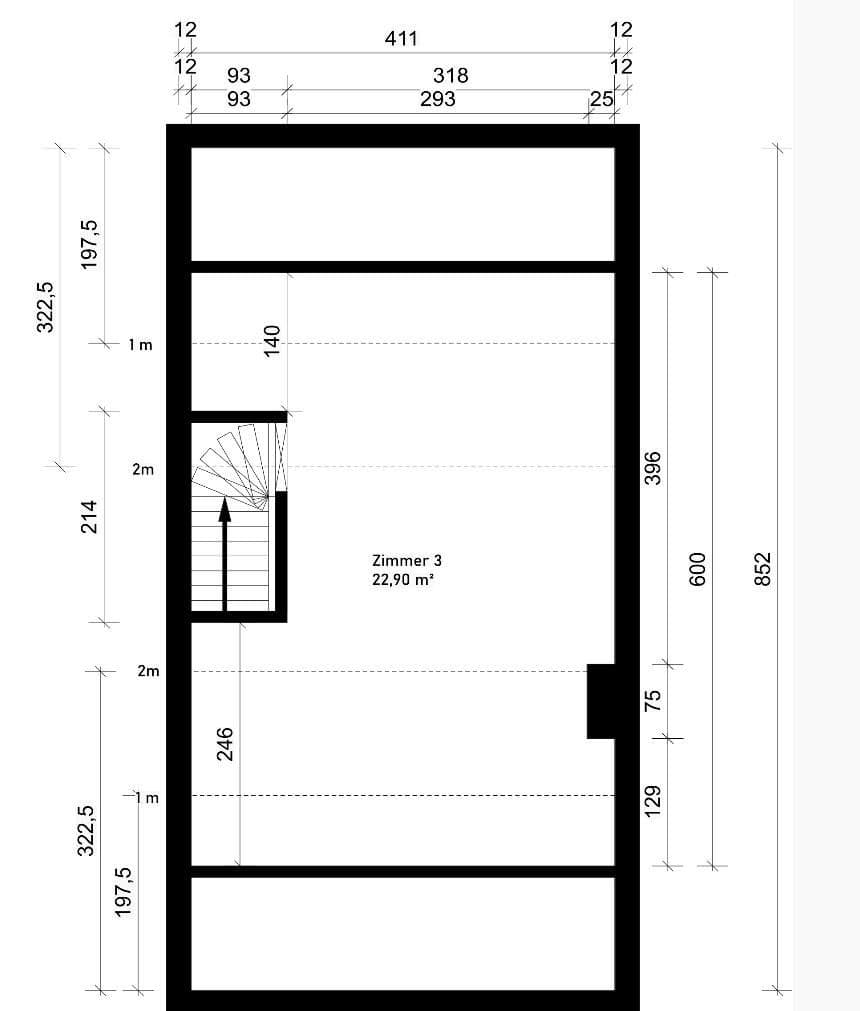
Zrekonstruovaný půdorys má dvě nová střešní okna a rovněž působí jako velký, prosvětlený pokoj, který může sloužit jako další ložnice či hobby místnost.
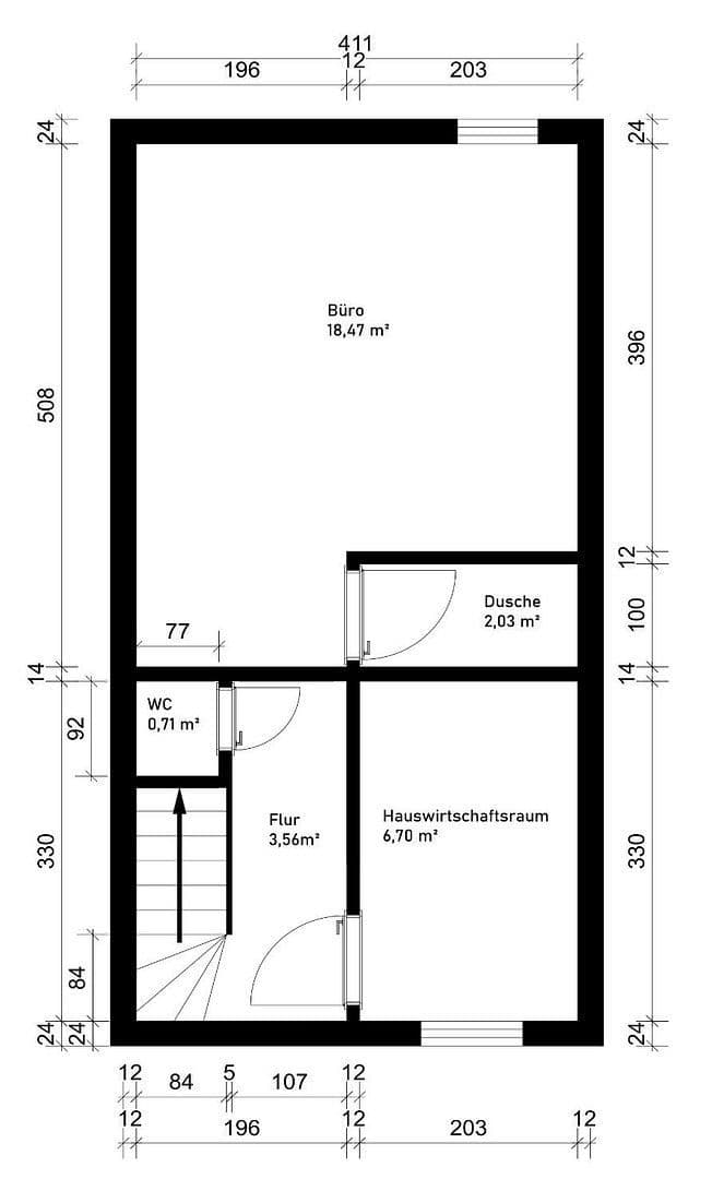
Dům je navíc plně podsklepený a poskytuje tak dostatek dodatečného prostoru pro všechna vaše přání – můžete zde mít moderní toaletu pro hosty, další sprchu a další velkou místnost s podlahovým topením a oknem, kterou využijete pro hosty nebo jako hobby místnost. Technická místnost nabízí dostatek místa pro nový rozvaděč, vaše domácí spotřebiče nebo další věci k uskladnění.
Obytná plocha byla spočítána dle normy DIN 277 a činí přibližně 112 m².
Všechna okna byla právě vyměněna, jsou trojitě zasklená a mají nové elektrické rolety. Rámy oken jsou vyrobeny z bílého plastu. Stěny domu září moderní polární bílou barvou s odpovídajícími novými vypínači a zásuvkami. Celá elektroinstalace včetně jističové skříně byla vyměněna a odborně prověřena.
Nová podlaha je z lehce udržovatelného a příjemného vinylu v dubové podobě s hamburgerovou lištou a byla položena souvisle přes celé podlahové topení v domě. Rušivé radiátory tu nenajdete!
Dům byl vybaven třemi novými tepelnými čerpadly, takže si můžete podle libosti nastavit rozdílnou teplotu pro každé patro, případně je zcela nezávisle vypnout. Tím získáváte dům připravený do budoucnosti, který je díky trojitě zaskleným oknům, tepelné spojené fasádě a solidně zateplenému stropu velmi dobře izolován, což zajišťuje vynikající energetickou účinnost.
Tento řadový dům je něčím zcela výjimečným a jeho četná lákadla čekají, aby se stala vaším novým domovem – nastěhujte se okamžitě a prostě se dobře cítíte!
Dům se nachází v klidné lokalitě Neugraben-Fischbeks, mezi přátelskými sousedy a upravenými zahradami, v tiché obytné ulici s dostatkem parkovacích míst a pěknou sousedskou infrastrukturou. Užijete si zde rodinnou atmosféru s množstvím zeleně, přímo sousedící s Fischbeker Heide.
Fischbeker Heide je jedním z největších chráněných území jihozápadně od centra Hamburku, kde vede Heidschnuckenwanderweg (cesta putovních ovcí) podél heide až do Buchholzu. I pro kratší procházky a pěší výlety je Fischbeker Heide ideálně dostupná – pouhé 3 minuty pěšky od tohoto řadového domu – a nabízí například s paraglidingovým letištěm nebo květem heide několik jedinečných zážitků.
V bezprostřední blízkosti naleznete řadu obchodů, restaurací, kaváren a volnočasových zařízení. Spojení s veřejnou dopravou je vynikající, takže do centra se dostanete pohodlně a rychle. Školy, školky a zdravotnická zařízení jsou také dobře dostupná. Tato lokalita je proto zvláště atraktivní pro rodiny a pracující.
- tři nová tepelná čerpadla
- nová elektroinstalace s novým rozvaděčem
- nová trojitě zasklená okna
- nové elektrické rolety s dálkovým ovládáním
- nové moderní vybavení od renomovaných výrobců, jako například GROHE nebo Bosch.
V okolí nemovitosti najdete
Stále hledáte to pravé?
Nastavte si hlídacího psa. Nabídky vybrané na míru dostanete souhrnně 1× denně e-mailem. S Premium profilem máte k ruce hlídačů rovnou 5 a když se něco objeví, informují vás obratem.

















