
Pronájem bytu 3+1 • 86 m² bez realitky, Hessen
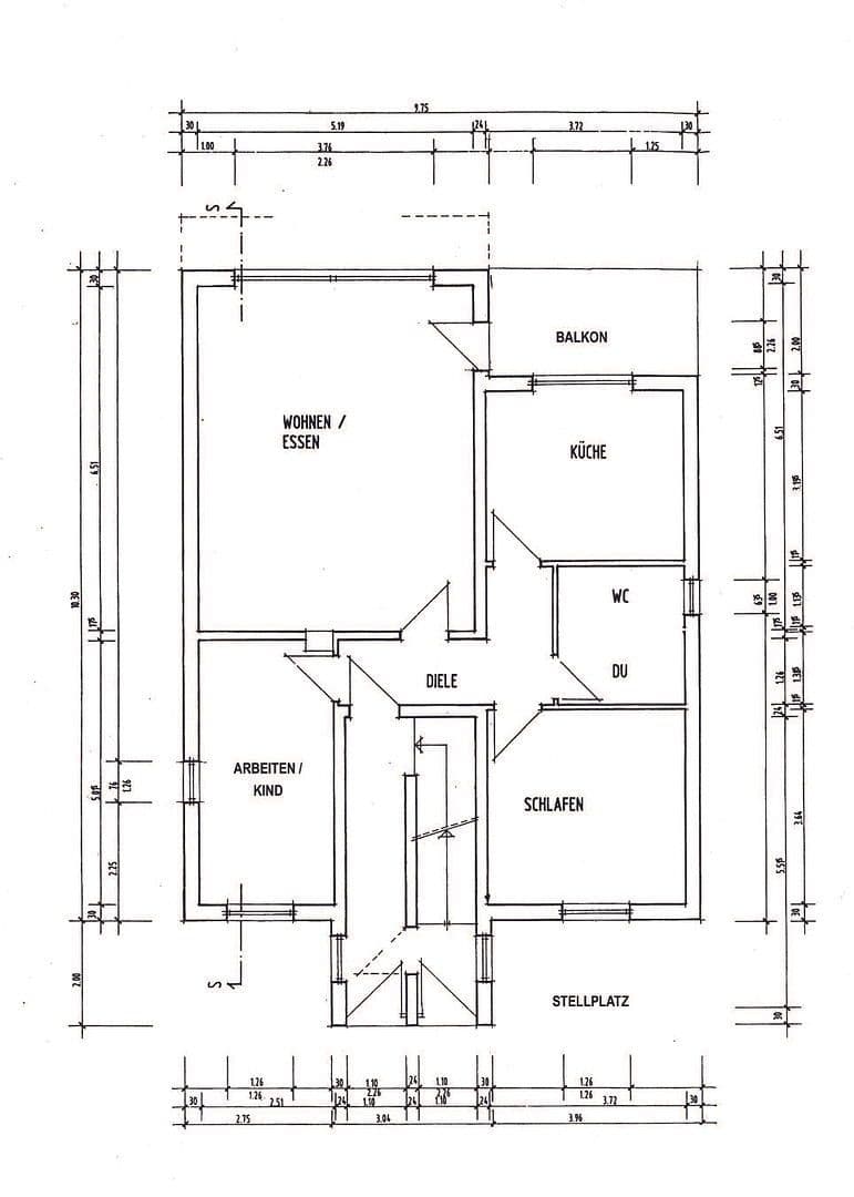
, HessenMHD 3 minuty pěšky • ParkováníV Traisa/Mühltal se nachází tento exkluzivní 3-pokojový byt o přibližné ploše 86 m², bezbariérový, v přízemí. Byt je situován v tiché, přírodě naladěné lokalitě na soukromé ulici (slepá ulice) a přesto není daleko od centra Traisy. Díky jihozápadní orientaci je byt velmi světlý a umístění domu na svahu nabízí nádherný výhled na Kirchberg a zelené okolí. K balkonovi vedou dva vstupy – z kuchyně a z obývacího pokoje. Dům byl postaven v roce 2006 metodou masivní výstavby s tepelně izolačními tvárnicemi.
Byt disponuje plynovým kondenzátním ústředním topením (včetně podlahového topení a ohřevu vody) a kontrolovaným ventilačním systémem (filtrovaný venkovní vzduch, vhodný pro alergiky) s rekuperací tepla. Další energie je získávána prostřednictvím solární kolektorové soustavy, která je napojena na plynové ústřední topení. Využívá se také cisterna pro užitkovou vodu. Ve všech místnostech je k dispozici LAN kabeláž. Byt je vybaven aktuální kuchyní od IKEA s kvalitními spotřebiči. Vícevrstvě izolovaná okna mají elektrické rolety, jež lze ovládat jednotlivě nebo celkově pomocí centrálního ovládání (s protivniklovou ochranou díky systému zabezpečujícímu rolety a zamykatelnými klikami oken). Domovní zásobování vodou je řešeno pomocí odměkčovacího zařízení. Instalace wallboxu u parkovacího místa by byla možná. Jedná se o nekuřácký byt, bez domácích mazlíčků. Byt bude volný od února, případně již dříve, neboť stávající nájemníci se stěhují ke své rodině do jiného města a možnost dřívějšího vystěhování existuje.
Dvousměrný rodinný dům s tímto exkluzivním 3-pokojovým bytem (nekuřácký byt, bez psů) se nachází v Traisa/Mühltal v klidné obytné čtvrti na soukromé ulici bez průjezdu. V útulném historickém centru Traisy s přibližně 3 000 obyvateli naleznete všechny obchody potřebné pro každodenní život. Výjimečný je Edeka trh s kompletním sortimentem včetně bio produktů. K dispozici je také poštovní přepážka, obchod s časopisy, lékárna, bankovní servis, několik restaurací a ordinace lékařů. Větší nákupní možnosti jsou pak dostupné v blízkém Nieder-Ramstadtu, Ober-Ramstadtu nebo dokonce ve Darmstadtu samotném. V Traise se rovněž nachází základní škola a mateřská škola. Železniční stanice Mühltal je vzdálena asi 15 minut pěšky (Dadina Odenwaldbahn nabízí přímé rychlé spoje do Frankfurtu). Silnice Bundesstraße 449 spojuje Traisu s Darmstadtem a dále s hlavními dálničními komunikacemi. Traisa nabízí také vlastní velmi pěkný venkovní bazén. Nedaleká Bergstraße, přední část Odenwaldu a město Darmstadt nabízejí po celý rok řadu kulturních a sportovních akcí.
V okolí nemovitosti najdete
Stále hledáte to pravé?
Nastavte si hlídacího psa. Nabídky vybrané na míru dostanete souhrnně 1× denně e-mailem. S Premium profilem máte k ruce hlídačů rovnou 5 a když se něco objeví, informují vás obratem.



























