
Prodej bytu 2+kk • 43 m² bez realitkyHnězdenská, Praha - Troja
Využít program Bydlím hned, koupím později
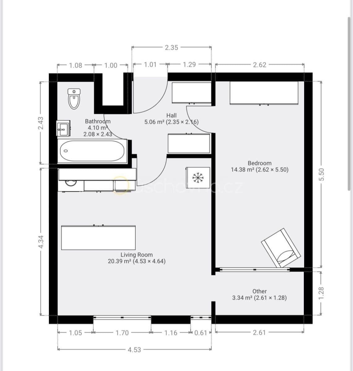
Nabízím k prodeji svůj světlý a útulný byt 2+kk, který se nachází v panelovém domě v osobním vlastnictví. Nemovitost je ve velmi dobrém stavu a nabízí příjemné a funkční uspořádání o celkové ploše 43 m². Byt je v 8 patře s výtahem a kompletní kuchyňskou linkou včetně lednice, zabodované 3 skříně v předsíni, dům zaručuje snadnou dostupnost a bezbariérový přístup.
Dispozice bytu je promyšlená a nabízí dostatek prostoru pro pohodlné bydlení. Pro milovníky světla a čerstvého vzduchu je připravená lodžie o rozloze 6 m², kde si můžete vychutnat klidné chvíle. I přesto, že byt je nevybavený, jeho moderní dispozice poskytuje řadu možností, jak si prostor zařídit přesně podle vlastní představy.
Nemovitost je také vybavena výtahem a zajišťuje pohodlí každodenního života. K bytu náleží garážové stání, což výrazně usnadní parkování a pomůže s péčí o vaše vozidlo. Energetický štítek třídy B poukazuje na ekonomickou a efektivní provozuschopnost celého objektu.
Pro bližší informace a domluvení prohlídky mě, jako přímého majitele, prosím kontaktujte prostřednictvím zpráv na komunikační platformě. Těším se na Vaše zprávy a možnost představit Vám tento výjimečný byt.
I am offering for sale my bright and cozy 2-room apartment with a kitchenette, located in a panel house owned personally. The property is in very good condition and offers a pleasant and functional layout with a total area of 43 m². The apartment is situated on the ground floor of a one-story building, which guarantees easy accessibility and barrier-free access.
The apartment's layout is well thought out and provides plenty of space for comfortable living. For those who love natural light and fresh air, there is a balcony measuring 6 m² where you can enjoy quiet moments. Even though the apartment is unfurnished, its modern design offers numerous possibilities for arranging the space exactly to your liking.
The property is also equipped with an elevator, ensuring the comfort of daily life. A garage is part of the apartment, which significantly simplifies parking and helps take care of your vehicle. The energy performance certificate in class B highlights the economic and efficient operation of the entire building.
For more information and to schedule a viewing, please contact me directly via messages on the communication platform. I look forward to your messages and the opportunity to present this exceptional apartment to you.
Parametry nemovitosti
| Dostupné od | 2. 11. 2025 |
|---|---|
| Konstrukce budovy | Panel |
| Vybaveno | Nevybaveno |
| Číslo inzerátu | 961085 |
| PENB | B - Velmi úsporná |
| Užitná plocha | 43 m² |
| Cena za jednotku | 197 674 Kč / m2 |
| Stav | Velmi dobrý |
|---|---|
| Dispozice | 2+kk |
| Podlaží | 8. podlaží z 11 |
| Vlastnictví | Osobní |
| Umístění | Klidná část |
| Rizika | Prověřit » |
Co tato nemovitost nabízí?
| Bezbariérový přístup | |
| Lodžie 6 m² |
| Garáž | |
| Výtah |
V okolí nemovitosti najdete
Využít program Bydlím hned, koupím později
Stále hledáte to pravé?
Nastavte si hlídacího psa. Nabídky vybrané na míru dostanete souhrnně 1× denně e-mailem. S Premium profilem máte k ruce hlídačů rovnou 5 a když se něco objeví, informují vás obratem.















