
Pronájem bytu 4+1 • 141 m² bez realitkyWilhelm-Schussen-Str.44, , Bádensko-Württembersko
Wilhelm-Schussen-Str.44, , Bádensko-WürttemberskoMHD 2 minuty pěšky • VýtahModerní, světlý 4-pokojový byt se nachází v prvním patře luxusní novostavby v srdci Bad Schussenrieds. Byt zaujme svým prostorným uspořádáním a dvěma rozlehlými střešními terasami, které vybízí k odpočinku na slunci nebo k pohodovým večerům.
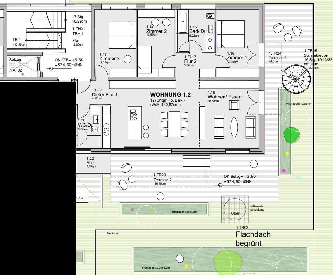
Obytná plocha činí cca 140,5 m² a je rozdělena mezi tři ložnice, prostorný obývací/jídelní pokoj s moderní vestavěnou kuchyní a samostatné hostinské WC. Díky výtahu a bezbariérovému přístupu je byt pohodlně dostupný.
K bytu náleží větraný sklepní prostor o ploše cca 23 m², který lze využít jako hobby místnost nebo jako dodatečný úložný prostor. Plánuje se zajištění vlastního parkovacího místa, avšak momentálně jsou k dispozici dostatečné bezplatné parkovací plochy v bezprostřední blízkosti.
Vysoce kvalitní vybavení zahrnuje:
• podlahové vytápění
• řízené větrání obytných prostor
• klimatizaci
• stylovou vestavěnou kuchyni
• úložný prostor na terase (3,6 m²)
Obě terasy nabízejí slunce od rána do večera – dopoledne na východní straně s výhledem do zeleně a odpoledne na jižní straně, kde můžete vychutnat teplé letní večery. Při prohlídce je k dispozici aktuální energetický štítek. Vstup do bytu je možný od 1. února 2026.
Byt se nachází v klidné, ale přesto centrální části Bad Schussenrieds. V přízemí se nachází ordinace lékaře. V bezprostředním okolí najdete kavárny, restaurace, pekárny, supermarkety, lékárny a různé možnosti volnočasových aktivit. Dopravní spojení je velmi dobré – Bad Schussenried je napojen na hlavní železniční trať mezi Ulmem a Friedrichshafen.
Vysoce kvalitní vybavení zahrnuje:
• podlahové vytápění
• řízené větrání obytných prostor
• klimatizaci
• stylovou vestavěnou kuchyni
• úložný prostor na terase (3,6 m²)
Obě terasy nabízejí slunce od rána do večera – dopoledne na východní straně s výhledem do zeleně a odpoledne na jižní straně, kde můžete vychutnat teplé letní večery. Aktuální energetický štítek je k dispozici při prohlídce.
V okolí nemovitosti najdete
Stále hledáte to pravé?
Nastavte si hlídacího psa. Nabídky vybrané na míru dostanete souhrnně 1× denně e-mailem. S Premium profilem máte k ruce hlídačů rovnou 5 a když se něco objeví, informují vás obratem.








