
Pronájem bytu 3+1 • 100 m² bez realitkyBahnhofsstraße 9 Eichenau Eichenau Bayern 82223
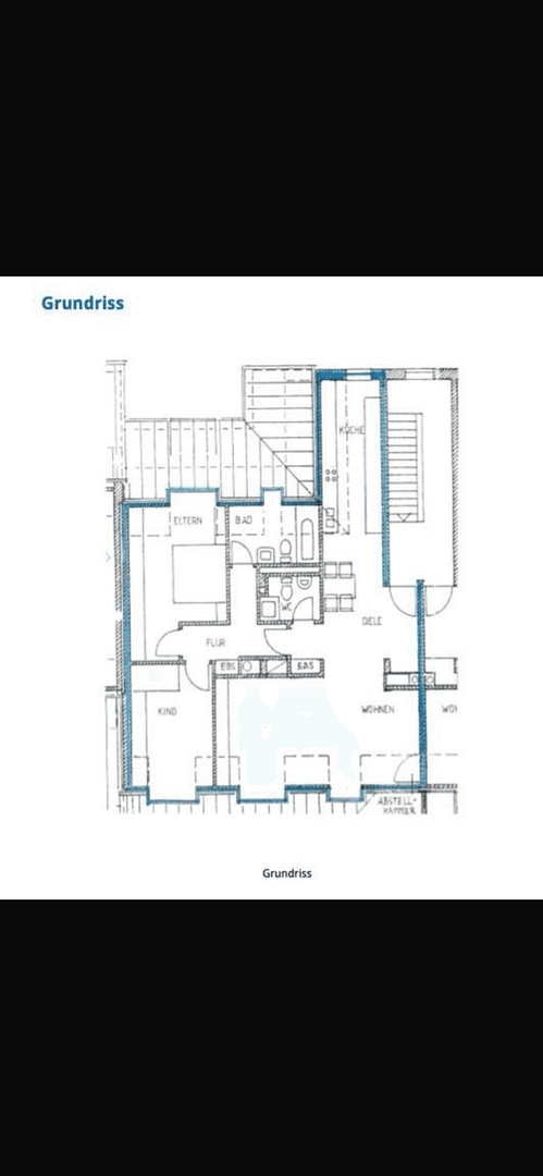
Bahnhofsstraße 9 Eichenau Eichenau Bayern 82223MHD 1 minuta pěšky • GarážByt o rozloze přibližně 100 m² se nachází ve třetím patře udržovaného domu s více byty. Byt byl nedávno kompletně zrekonstruován a prezentuje se v moderním, skoro novém stavu.
Prostorná vstupní hala nabízí dostatek místa pro šatník a skříň. Vpravo od vstupu se nachází prostorná kuchyň, která pojme jídelní kout. K dispozici jsou dvě koupelny: moderní sprchová koupelna a velká hlavní koupelna s vanou, umyvadlem a toaletou.
Na konci chodby jsou dvě dobře uspořádané ložnice. Velmi prostorný obývací pokoj naproti vstupu působí působivě díky velkým okenním plochám.
Během rekonstrukce byly mimo jiné modernizovány elektroinstalace, podlahy, koupelny a také stěny a stropy.
K dispozici je také možnost pronájmu garážového stání do podzemní garáže.
Zahradní město Eichenau, jak se nazývá díky svému zelenému charakteru, je oblíbená rezidenční obec s dobrou infrastrukturou. Místo nabízí několik jeslí, mateřských škol, základní školu a nižší střední školu, lékaře a různé možnosti nákupu. Volnočasové možnosti jsou zde opravdu vysoké. Sportovní areály v Eichenau i Eichenauer See nabízejí příležitosti k různým aktivitám, a s kolem se z Eichenaus dostanete kamkoliv.
Byt se nachází ve střední části Eichenau, v naprosto klidné obytné čtvrti, přitom je v docházkové vzdálenosti zastávka S-Bahn a různé možnosti nákupů.
V okolí nemovitosti najdete
Stále hledáte to pravé?
Nastavte si hlídacího psa. Nabídky vybrané na míru dostanete souhrnně 1× denně e-mailem. S Premium profilem máte k ruce hlídačů rovnou 5 a když se něco objeví, informují vás obratem.















