Pronájem bytu 2+1 • 119 m² bez realitky, Bavorsko
, BavorskoMHD 2 minuty pěšky • Parkování • GarážTato čerstvě kompletně zrekonstruovaná 2+kk bytová jednotka v přízemí (umístěná na svahu orientovaném na jih) domu EE70 (kompletně zrekonstruováno v roce 2025, postaveno v roce 1975) nabízí prvotřídní komfort bydlení o rozloze přibližně 119 m².
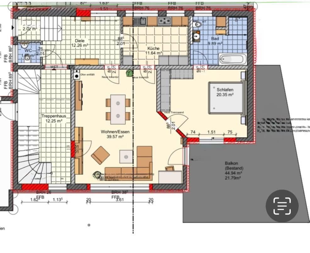
Slunný, částečně krytý balkon orientovaný na jih (cca 45 m², z toho přibližně 22 m² odečitatelné obytné plochy, přístupný ze dvou místností) rozšiřuje obytný prostor do volného vzduchu. Balkon se nachází na jižní straně svahu.
Místnosti jsou velmi prostorné a díky velkým oknům naplněné světlem. Byt je ideální pro jednotlivce nebo páry.
Nachází se v domě se třemi byty. V sklepě se nachází obchodní jednotka/praktika. V přízemí a patře se pak nachází vždy jeden nájemní byt.
Rozložení místností:
– 1 ložnice
– 1 velmi prostorný obývací/jídelní prostor
– 1 kuchyň s vestavěnou linkou
– 1 koupelna s WC připojená k ložnici (přístupná pouze z ložnice) s bezpráhovou otevřenou sprchou a vanou (nově zrekonstruováno)
– 1 hostinská toaleta
– velký vstupní prostor s oddělenými vchodovými dveřmi (schody)
– možný vstup přes zadní dvůr nebo přes stávající garáž přes společný přechod
– přibližně 29 m² velká garáž s elektrickou bránou a přípravou na elektrickou nabíječku
– vjezd do dvora před garáží jako další parkovací místo
Upozorňujeme, že fotografie ukazují nedokončený stav bytu.
Byt se nachází v centru na Bahnhofstraße – jen přibližně 2 minuty chůze od nádraží. Obchody, gastronomie a příroda (řeka Rezat) jsou v bezprostřední blízkosti. Lokalita je klidná, přestože je blízko nádraží – ideální pro ty, kteří hledají útočiště a pro páry.
Další vybavení:
– Podlahové vytápění pomocí tepelného čerpadla
– Trojitě zasklená okna
– Elektrické rolety
– Ohřev teplé vody průtokovým ohřívačem
– Zabezpečovací systém
– Vestavěná svítidla po celém bytě
– Kvalitní vinylová podlaha a v koupelně kvalitní keramické dlaždice
– Bílé vnitřní dveře
– Řízené větrání a odsávání vzduchu
– Vlastní garáž přímo před vchodovými dveřmi za 50 € měsíčně (s přípravou na elektrickou nabíječku)
– Vestavěná kuchyňská linka včetně všech zařízení (bez lednice) za 50,00 € měsíčně
Velký důraz klademe na odpovědné a spolehlivé nájemníky. Byt je ideální pro jednotlivce nebo páry. Domácí mazlíčci jsou povoleni po předchozí domluvě.
Předpoklady:
Stabilní příjem, nekuřácký byt, Schufa nebo vlastní prohlášení nájemce.
V případě vážného zájmu nás neváhejte kontaktovat.
V okolí nemovitosti najdete
Stále hledáte to pravé?
Nastavte si hlídacího psa. Nabídky vybrané na míru dostanete souhrnně 1× denně e-mailem. S Premium profilem máte k ruce hlídačů rovnou 5 a když se něco objeví, informují vás obratem.



















