
Pronájem bytu 2+kk • 115 m² bez realitky, Hessen
, HessenMHD 3 minuty pěšky • ParkováníJak malý dům: samostatně stojící objekt; vlastní vchod se slunnou zahradou a vlastní přístřešněnou terasou (cca 24 m²) orientovanou na jih, a nepřehlédnutelný malý přístřešněný balkon/posezení na straně sever (cca 2 m²). Vstupní prostor s dlažbou z dlážděných kamenů. Terasa je navíc vybavena automatickou sluneční markýzou. Dále je zde přístřešné úložné místo (například pro kola, gril atd., cca 6 m²). Velká sklepní místnost (cca 30 m²) s přípojkou pro pračku a vinným regálem.
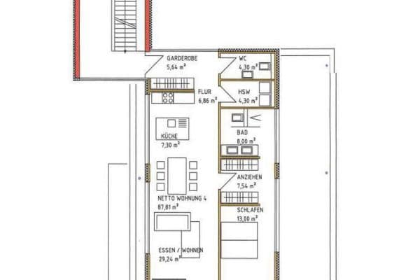
V tomto prostorném, světlém 2,5-pokojovém bytě (cca 101 m²) je dost místa pro 2–3 osoby. Byt má samostatný vchod. K bytu náleží vstupní hala, ze které navazuje velká otevřená kuchyň spojená s obývacím pokojem a vybavená velmi praktickými vestavěnými skříněmi. Kuchyň je zařízena kuchyňským koutem a částečně novými elektrospotřebiči. Za ní se nachází dětská/spací/pracovní místnost rovněž s vestavěnými skříněmi. Vpravo od vchodu je obývací pokoj a prostor galerie, ke kterému vede závitové (lichoběžníkové) schodiště a který lze využít například jako pracovní či tréninkový kout. Nově zrekonstruovaná koupelna s WC disponuje prostornou walk-in sprchou s proskleným oddělením.
Všechny místnosti mají vysoké stropy (přes 3,5 m) a působí tak velmi prostorně. Jsou částečně vybaveny okny až ke podlaze. Ve všech místnostech je realizován moderní osvětlovací koncept s stmívatelnými reflektory apod. Galerie má dvě velká střešní okna, která jsou vybavena elektrickými rolety (ovládání na dálku), a dále disponuje vestavěnou polici.
Celá nemovitost, ke které tento byt patří, je vytápěna klimaticky neutrálně pomocí pelet a má solární termickou techniku. Okna jsou trojitě zasklená; stropy a střecha jsou kompletně izolovány. V roce 2024 byly všechny vnější stěny dodatečně izolovány.
Vlastní optické připojení již probíhá ve sklepě, který prostřednictvím rychlé LAN kabeláže zásobuje všechny místnosti.
Zde budete bydlet v bytě, který má neobvyklé a útulné dispozice – bytě, který není typický pro každého.
Byt je ve výborném stavu a je okamžitě k nastěhování.
Nachází se v Rodenbachu u Hanau, v části Niederrodenbach, v klidné lokalitě. Rodenbach je atraktivní obec s dobrou infrastrukturou.
Máte zde mateřské školy, školky, denní pečovatelky, školy, spolky a volnočasové aktivity v dostatečném rozsahu pro každý vkus a věk. Obecní koupaliště u přírodního jezera nabízí plážovou bar.
Vlastní vlakové nádraží s velmi dobrou železniční dostupností přímo do Frankfurtu nad Mohanem (cca 25 minut), Hanau (cca 10 minut), Gelnhausen (cca 35 minut) a Fuldy (cca 60 minut).
V bezprostřední blízkosti se nachází průmyslový park Wolfgang, Fraunhoferův institut a řada dalších mezinárodních zaměstnavatelů a středně velkých firem.
Optimální dostupnost dálnic A3, A45 a A66 do všech světových směrů. Lesní cesty, cyklistické stezky i rekreační oblasti jsou doslova na dosah dveří.
Pro starší generaci jsou zde lékaři, lékárny a pečovatelská zařízení a zároveň vynikající možnosti pro nákupy.
Na místě najdete provozovny jako Rewe, Rossmann, Norma, Tegut, NKD. Dále jsou zde sportovní vyžití – tenis, golf, fotbal, házená, atletika a mnoho dalšího.
V galerii a obytné části bytu působí podlahové vytápění, zatímco v ostatních místnostech je centrální topení. Topení i ohřev teplé vody jsou zajištěny CO2-neutrálně pomocí pelet a solární techniky.
Střešní izolace, okna (trojité zasklení), zahrada i terasa byly v roce 2009 plně, resp. energeticky, zrekonstruovány; topná soustava byla kompletně obnovena v roce 2013 a podlahové vytápění v roce 2015. V roce 2019 byl kompletně rekonstruován obývací pokoj a koupelna v roce 2025, přičemž vnější vstupní prostor/dvůr/terasa byly zrevidovány v letech 2022 a 2025. Rovněž v roce 2024 byly izolovány všechny vnější stěny.
Internetové připojení je dostupné až do 50 Mbit/s. Optické připojení je naplánováno na rok 2026; přípojky již byly vytvořeny, avšak zatím ještě nejsou plně funkční.
Kontakt: Žádné telefonáty, žádný WhatsApp.
Před sjednáním termínu prohlídky je nutné zaslat e-mailem:
1. Výpis ze SCHUFA,
2. průkazný důkaz o příjmu,
3. doporučující dopis od předchozího pronajímatele.
V okolí nemovitosti najdete
Stále hledáte to pravé?
Nastavte si hlídacího psa. Nabídky vybrané na míru dostanete souhrnně 1× denně e-mailem. S Premium profilem máte k ruce hlídačů rovnou 5 a když se něco objeví, informují vás obratem.



































