Pronájem kanceláře • 307 m² bez realitkyAxel-Springer-Platz 2 Hamburg Neustadt Hamburg 20355
Axel-Springer-Platz 2 Hamburg Neustadt Hamburg 20355MHD 1 minuta pěškyPřátelské, velmi světlé a multifunkční prostory v centru Hamburku. Osvětlení ze všech stran a skleněné stěny vytvářejí transparentní prostory v celém objektu. Přírodní dřevěná podlaha a otevřenost podporují prožitek prostoru a pohodu.
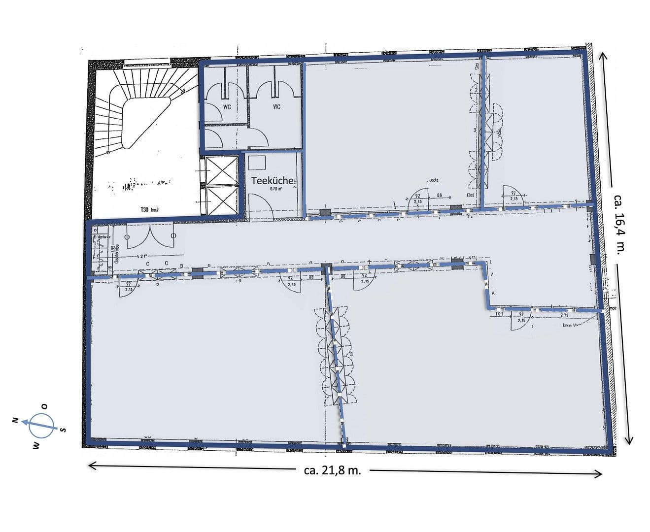
Przestranné dispozice nabízí flexibilitu prostoru: pro tradiční i nové využití v proměnlivé kancelářské práci. Ideální pro komunikativní spolupráci v různě využívaných, příjemných prostorech. V případě potřeby lze některé místnosti dělit. Prostory pro týmovou práci, práci na projektech, akční skupiny a setkání – na samostatném patře. Výrazná stavba mírné moderny, druhého období průmyslového rozmachu, střed 20. století.
Nemůže to být centrálnější: centrum Hamburku (Neustadt), Axel-Springer-Platz. Pěšky za 5-7 minut se nachází Binnenalster, Jungfernstieg (S/U) a Neuer Wall, Rathausmarkt (U), Gänsemarkt (U), Großneumarkt, Stadthausbrücke (S), Rödingsmarkt (U). 5 minut veřejnou dopravou od hlavního nádraží a přístavu. Četné nákupní a gastronomické nabídky v bezprostřední blízkosti. Hotely pro obchodní cestující a náročnější turisty v docházkové vzdálenosti.
Masivní dřevěný parket, skleněné zdi a dveře, týmové místnosti, připojení optického vlákna, LAN kabeláž, kuchyň, vestavěné skříně, kompletně modernizované sanitární prostory, vnější dálkově ovládaná sluneční ochrana. Dva rychlé výtahy.
Neuhaus Handels- und Verwaltungs-GmbH, Axel-Springer-Platz 2, 20355 Hamburk
Všechny ceny jsou uvedeny bez DPH.
Parametry nemovitosti
| Stáří | Nad 50 let |
|---|---|
| Stav | Po rekonstrukci |
| Číslo inzerátu | 961569 |
| Cena za jednotku | 20 € / m2 |
| Dostupné od | 1. 12. 2025 |
|---|---|
| Podlaží | 3. podlaží |
| Plocha kanceláře | 307 m² |
Co tato nemovitost nabízí?
| MHD 1 minuta pěšky |
V okolí nemovitosti najdete
Stále hledáte to pravé?
Nastavte si hlídacího psa. Nabídky vybrané na míru dostanete souhrnně 1× denně e-mailem. S Premium profilem máte k ruce hlídačů rovnou 5 a když se něco objeví, informují vás obratem.



















