Prodej bytu 4+1 • 104 m² bez realitkySmikova, Praha - Černý Most
Využít program Bydlím hned, koupím později
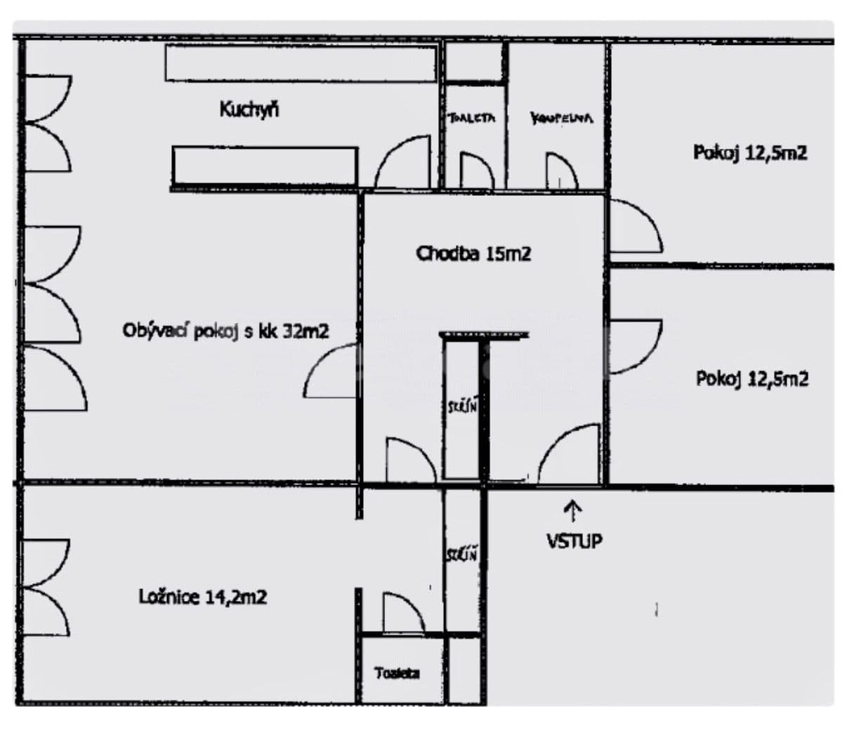
Bez prostředníka nabízím k prodeji výjimečný, zrekonstruovaný družstevní byt 4+1 o celkové ploše 104 m², který spojuje moderní styl, dostatek prostoru a promyšlené detaily. Byt se nachází ve čtvrtém patře bez výtahu.
Podlahová plocha činí 95 m², k bytu náleží lodžie o velikosti 7 m² a samostatná komora na patře (2 m²).
Byt nabízí tři samostatné, neprůchozí pokoje, prostorný obývací pokoj se vstupem na lodžii, moderní kuchyň a koupelnu s vanou, doplněnou o dvě samostatná WC. V interiéru dominují kvalitní vinylové podlahy, plastová okna, nové rozvody a stoupačky, a v předsíni praktické vestavěné skříně. Kuchyňská linka je plně vybavená vestavnými spotřebiči – troubou, varnou deskou, myčkou, lednicí i pračkou.
Byt prošel kompletní rekonstrukcí v roce 2022, včetně bezpečnostních vstupních dveří. Aktuální nesplacená anuita činí 3 383 000 Kč.
Tento byt představuje ideální volbu pro ty, kteří hledají kombinaci kvality, prostoru a klidného rodinného bydlení bez nutnosti dalších investic.
Prohlídky jsou možné po předchozí domluvě. Realitní kanceláře prosím nekontaktovat.
Parametry nemovitosti
| Dostupné od | 4. 11. 2025 |
|---|---|
| Konstrukce budovy | Panel |
| Vybaveno | Částečně |
| Provedení | Standardní |
| Číslo inzerátu | 961844 |
| PENB | C - Úsporná |
| Umístění | Sídliště |
| Cena za jednotku | 58 654 Kč / m2 |
| Stav | Velmi dobrý |
|---|---|
| Dispozice | 4+1 |
| Podlaží | 4. podlaží z 4 |
| Vytápění | Ústřední |
| Vlastnictví | Družstevní |
| Rekonstrukce | Kompletní |
| Užitná plocha | 104 m² |
Co tato nemovitost nabízí?
| Sklep 2 m² | |
| Lodžie 7 m² |
V okolí nemovitosti najdete
Využít program Bydlím hned, koupím později
Stále hledáte to pravé?
Nastavte si hlídacího psa. Nabídky vybrané na míru dostanete souhrnně 1× denně e-mailem. S Premium profilem máte k ruce hlídačů rovnou 5 a když se něco objeví, informují vás obratem.
















