Prodej domu • 550 m² bez realitky, Severní Porýní-Vestfálsko
FREIESLEBEN-IMMOBILIEN vám představuje:
Výrobní hala z roku 1995 s integrovanou kanceláří a exkluzivním bytem jako solidní investiční příležitost na přibližně 1 766 m² vlastního pozemku v oblíbené a dopravně výhodně situované průmyslové zóně v Dülmenu.
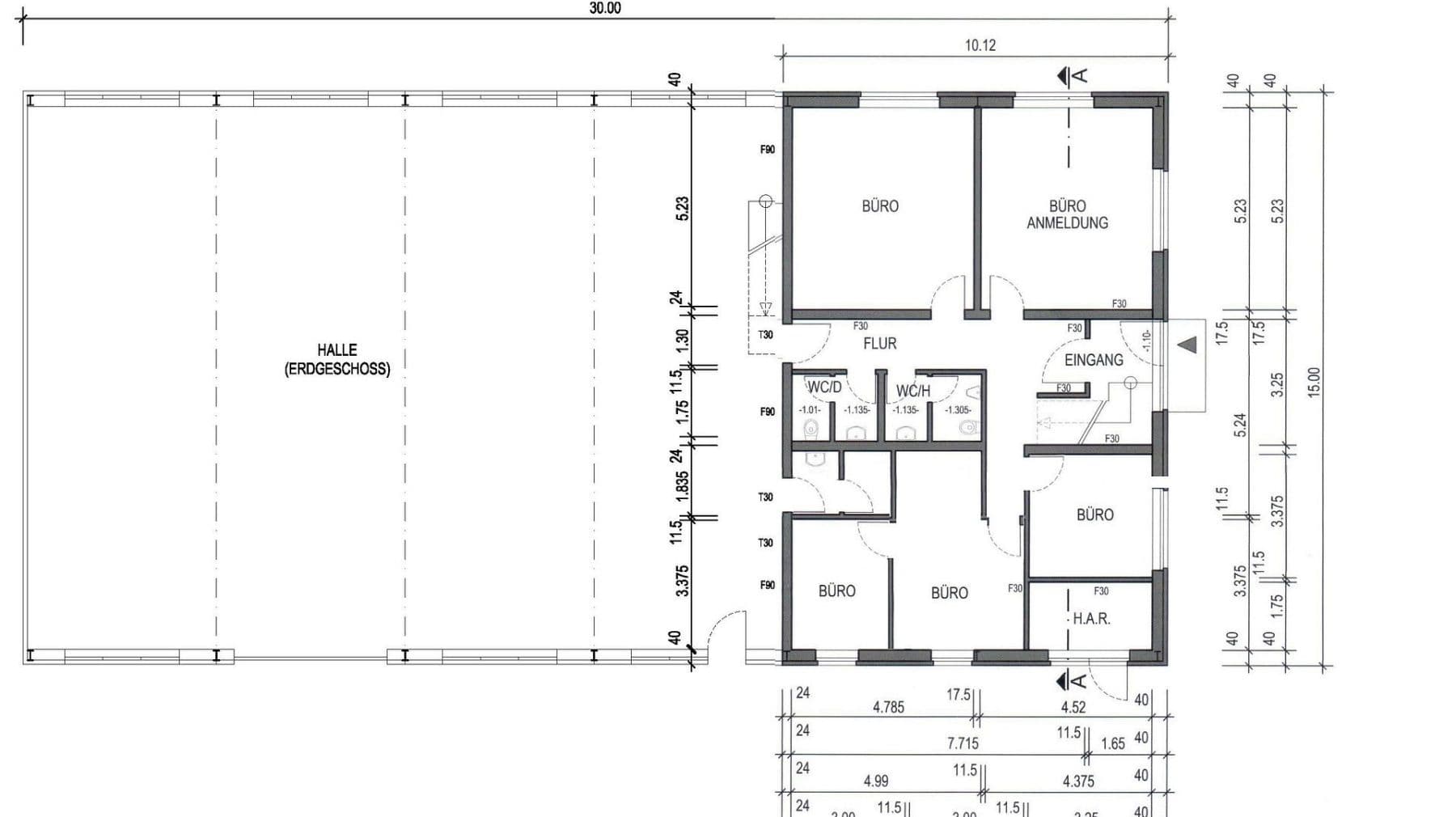
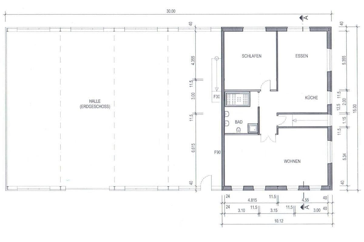
Prosvětlená hala zahrnuje asi 300 m² velkou, kvalitní a topnou výrobní halu se 3,2 tunovým halovým jeřábem a masivně postavenou kancelářskou a obytnou budovu se dvěma podlažími (každé o podlahové ploše 150 m²) a půdním prostorem, který lze dobře využít jako sklad.
Podlaha výrobní haly a elektricky ovládaná vysoká sekční vrata jsou vhodná pro nákladní vozy.
Byt v horním patře má luxusní vybavení, mezi které patří bambusový parket, žulová podlaha, vířivka a prostorná sprcha (walk-in).
Dva garáže, dlažděný dvůr s 11 parkovacími místy a zelená plocha se třemi ovocnými stromy doplňují nabídku nemovitosti.
Pozemek je kompletně oplocen kvalitním plotem; je zde také velká elektrická posuvná vrata.
Nemovitost je dobře pronajata již od 01.09.2017.
Současný čistý roční příjem z nájmu činí 38 974,80 €.
Roční poplatky spojené s vlastnictvím činí 1 784,44 €.
Chcete si ji ihned prohlédnout?
Pak nám prosím zašlete dotaz prostřednictvím kontaktního formuláře nebo e-mailem na info@immobilienmakler12.de, a my vás neprodleně budeme kontaktovat.
Písemné dotazy jsou vyřizovány výrazně rychleji než telefonické!
BEZ PROVIZE PRO KUPCE
Nemovitost se nachází v udržovaném průmyslovém areálu Dernekamp / Dülmen.
Je zajištěno dobré napojení na dálnici A43, a tím i na města Porubní oblasti a Münsterland.
Dülmen je středně velké okresní město v německém spolkovém státě Severní Porýní-Vestfálsko, v okrese Coesfeld, a leží mezi Münsterem a Porubní oblastí. S přibližně 46 500 obyvateli má status středně velkého města a disponuje rozsáhlou sítí cyklotras, což z něj činí atraktivní cíl zejména pro obyvatele blízké Porubní oblasti. Objekt se nachází nedaleko centra – do centra města, kde naleznete širokou nabídku obchodů a rozmanitých podniků, potřebujete pouze 5 minut jízdy.
Infrastruktura:
Lékárna, diskont potravin, praktický lékař, mateřská škola, základní škola, hlavní škola, reálná škola, gymnázium, integrovaná škola, veřejná doprava
Hala sestává z:
- Topné výrobní haly o rozloze cca 300 m², s halovým jeřábem a elektricky ovládanými sekčními vraty
- Masivní, dvoupodlažní kancelářské a obytné budovy
Byt v horním patře s vířivkou a walk-in sprchou
Podlahy:
- Výrobní hala má podlahu vhodnou pro jízdní provoz nákladních vozů
- Kancelář má obloženou dlaždicemi
- V bytě jsou podlahy s bambusovým parketem a žulovou podlahou
Exteriér:
- Dlažděný dvůr s parkovacími místy pro osobní vozy
- Velká elektrická posuvná vrata
- Zelená plocha se ovocnými stromy
- Pozemek kompletně oplocen
- Ocelová konstrukce se tepelně izolovanou vnější vrstvou (sandwich konstrukce) pro střechu,
- Ocelová konstrukce se tepelně izolovanou vnější vrstvou (sandwich konstrukce) pro vnější stěny,
- Základová deska z železobetonu,
- Kancelářský blok a obytná část z masivního zdiva z vápencokřemičitých cihel,
- Přízemní strop z železobetonu,
- Plastová okna s izolačním zasklením,
- Alarmový systém s připojenou ostrahou.
Jedná se o nezávaznou nabídku společnosti
FREIESLEBEN GmbH,
Viktoriastraße 45
44787 Bochum
Tel.: 0234 – 92 56 98 00
Internet: www.immobilienmakler12.de
E-mail: info@immobilienmakler12.de
Můžete nás telefonicky kontaktovat od PONDĚLÍ do NEDĚLE
od 7:00 do 22:00. O víkendech vám navíc nabízíme služby v oblasti ocenění nemovitostí, prohlídek objektů a osobního setkání.
Ohledně objektu jsme závislí na informacích od vlastníků a úřadů. Za správnost a úplnost uvedených údajů nelze převzít žádnou odpovědnost. Dále nelze za objekt převzít žádnou záruku a za solventnost smluvních partnerů neodpovídáme.
Chcete, aby vaše nemovitost byla profesionálně propagována?
– Využijte naši bezplatnou službu a nechte jednoho z našich specialistů na nemovitosti ocenit současnou hodnotu vaší nemovitosti.
– Optimalizujte prodejní šance vaší nemovitosti tím, že pro vás vytvoříme speciálně na míru přizpůsobený marketingový plán.
– Využijte naši vynikající celostátní síť, která vám dokáže včas zajistit zájemce o koupi. Stovky zájemců na vás čekají!
Zavolejte nám, těšíme se na vás!
Centrála Münsterland: Tel.: 0251 – 39 444 998
Centrála Porubní oblasti: Tel.: 0234 – 92 56 98 00
Parametry nemovitosti
| Stáří | Nad 50 let |
|---|---|
| Číslo inzerátu | 961914 |
| Plocha pozemku | 1 766 m² |
| Cena za jednotku | 1 998 € / m2 |
| Stav | Dobrý |
|---|---|
| Užitná plocha | 550 m² |
| Celkem podlaží | 2 |
Co tato nemovitost nabízí?
| Garáž | |
| MHD 3 minuty pěšky |
| Terasa |
V okolí nemovitosti najdete
Stále hledáte to pravé?
Nastavte si hlídacího psa. Nabídky vybrané na míru dostanete souhrnně 1× denně e-mailem. S Premium profilem máte k ruce hlídačů rovnou 5 a když se něco objeví, informují vás obratem.





















