
Pronájem bytu 2+kk • 62 m² bez realitky, Severní Porýní-Vestfálsko
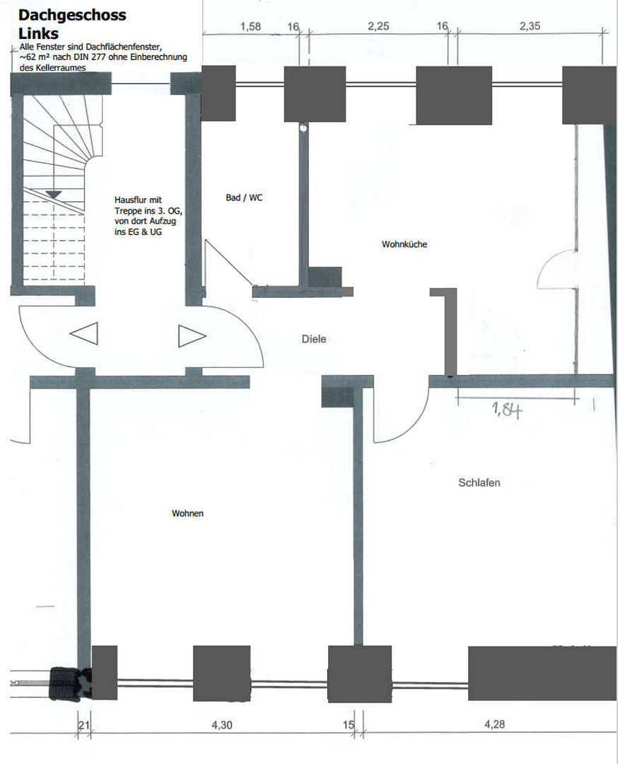
, Severní Porýní-VestfálskoMHD 1 minuta pěšky • VýtahTato okouzlující slunná podkrovní bytová jednotka v srdci města okouzlí svým obytným komfortem a centrální polohou – 2 místnosti, sprchové koupelny a obývací kuchyně s pěkným dispozicním řešením na podkroví.
Před několika lety zcela zrekonstruovaná a v velmi udržovaném stavu, umožňuje zde užívat si život. Světlá obývací kuchyně nabízí prostor pro vaření a stolování, například při snídani s výhledem přes střechy města. Vestavěná kuchyň je k převzetí za dohody o ceně.
Moderní sprchové koupelna je provedena ve světlém designu a vybavena kvalitním zařízením. Světlý obývací pokoj poskytuje útočiště pro večerní relaxaci. Samostatná ložnice nabízí dostatek prostoru pro klid a odpočinek, a také pro velkou skříň je místo.
Praktickou výhodou je úložný prostor přímo v bytě a také dodatečný sklep – spousta úložného prostoru!
Ať už jako byt pro jednotlivce, pár nebo městské útočiště – tato nemovitost vám nabízí komfortní domov přímo uprostřed dění.
Byt se nachází na podkroví (4. patro). Výtahem se dostanete až do 3. patra, odkud vede půvabný dřevěný schodiště nahoru do klidného podkroví, do vašeho nového útulného hnízda.
Byt není vhodný pro spolubydlení.
Přímo v centru Heiligenhaus na náměstí u radnice – již nemůžete být více uprostřed dění!
Krátké vzdálenosti ke všemu, co denně potřebujete: Během 5 minut pěší chůze dosáhnete 3 supermarketů, drogérií, lékáren, lékařů, obchodů s oblečením, pobočky Sparkasse apod.
Kavárny a restaurace lákají k posedění a panoramatická stezka je dosažitelná rovněž za méně než 5 minut. Na kole se během několika minut dostanete do zeleně nebo do okolních měst. Přibližně 15 minut do Kettwigu nebo Höselu, 10 minut do Velberta.
Pro dojíždějící i městské objevitele: Přímo před domem nabízí autobusová zastávka spojení do okolí, rychlobus z/na Essen a přístup ke stanicím S-Bahn Hösel (S6).
Přímo před domem můžete ve středu a sobotu brouzdat tržnicí nebo první čtvrtek v měsíci navštívit tržnici po pracovní době s pohledem na sklenku vína. Máte rádi klasickou hudbu či operu? Několikrát do roka nasedněte do autobusu kulturního úřadu a navštivte koncerty či operu v Essenu. Každá kulturní akce ve městě je pro vás na dosah ruky.
A to nejlepší? Díky poloze na podkroví si však zachováte klid, když budete chtít.
Byt byl v roce 2020 kompletně zrekonstruován. Koupelna, podlahy, dveře a střešní okna jsou nové. V bytě je kvalitní laminátová podlaha, koupelna je červeně obklazena bílými dlaždicemi s mnoha možnostmi odkládání věcí.
Vestavěná kuchyň je stará 3 roky a může být po dohodě převzata od předchozí nájemnice, včetně sporáku, trouby, digestoře a možnosti instalace myčky nádobí.
Úložný prostor přímo v bytě a sklep nabízí spoustu místa. Balkon není k dispozici.
Vícebytový dům je velmi udržovaný a rovněž zrekonstruován. Nový výtah i centrální topení.
V okolí nemovitosti najdete
Stále hledáte to pravé?
Nastavte si hlídacího psa. Nabídky vybrané na míru dostanete souhrnně 1× denně e-mailem. S Premium profilem máte k ruce hlídačů rovnou 5 a když se něco objeví, informují vás obratem.






















