
Pronájem bytu 1+kk • 36 m² bez realitkyMěděná, Plzeň - Plzeň, Plzeňský kraj
Máte o nabídku zájem?
Ušetřete 13 000 Kč na provizi a komunikujte se všemi majiteli.
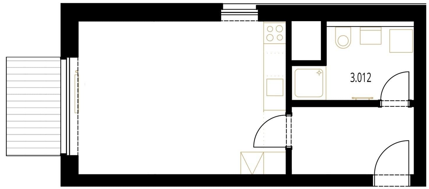
Nabízím k pronájmu úplně nový, pěkný bezbariérový byt 1+kk o velikosti 36,4 m2 s balkonem. Byt je umístěn ve druhém patře novostavby v lokalitě Plzeň - Jižní Předměstí.
Byt je částečně vybaven a sestává se z prostorné předsíně, velké obytné místnosti s velkými okny a výhledem, koupelny a skladovací místností na patře. V kuchyni je kuchyňská linka s varnou deskou, troubou, myčkou, mikrovlnnou troubou a lednicí. V koupelně jsou umístěny sprchový kout, umyvadlo, toaleta a příprava na pračku se sušičkou
Vytápění je zajištěno dálkově. Byt je orientován západním směrem. V domě žijí milí a bezproblémoví sousedé.
Veškerá občanská vybavenost, včetně obchodního centra, restaurace, pošty, polikliniky, lékárny a zastávky MHD, je dostupná v okolí.
Cena pronájmu je 13 000 Kč + 2 500 Kč poplatky za měsíc plus elektřina. Vratná kauce činí 18 000 Kč. Bez provize.
Pronájem parkovacího stání v garážích domu dle domluvy.
Byt je vhodnější pro nekuřáky a zájemce bez velkých mazlíčků.
Jsem přímý majitel. Prosím o zprávu, ozvu se zpět. Pronájem doporučuji.
V okolí nemovitosti najdete
Máte o nabídku zájem?
Ušetřete 13 000 Kč na provizi a komunikujte se všemi majiteli.
Stále hledáte to pravé?
Nastavte si hlídacího psa. Nabídky vybrané na míru dostanete souhrnně 1× denně e-mailem. S Premium profilem máte k ruce hlídačů rovnou 5 a když se něco objeví, informují vás obratem.
















