
Pronájem bytu 3+1 • 118 m² bez realitkyDorfstraße 23, , Dolní Sasko
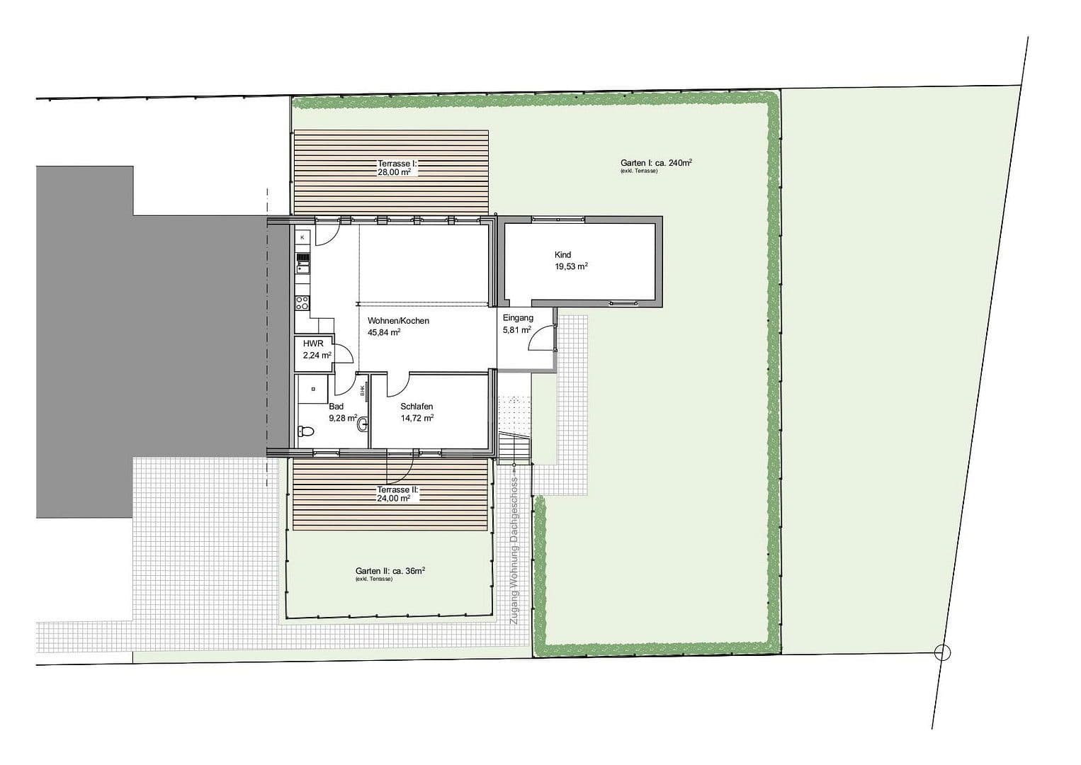
Dorfstraße 23, , Dolní SaskoMHD 5 minut pěšky • ParkováníTento půvabný 3+kk byt v Dachtmissen-Reppenstedt se nezdá být jen bytem – připomíná malé zelené domku. Díky dvěma prostorným terasám (28 m² a 24 m²), zahradě o celkové ploše přibližně 276 m² a otevřenému půdorysu, kde máte pocit, že jste opravdu doma.
Prostorový dojem:
Vzdušný obývací/jídelní prostor o rozloze zhruba 46 m² se otevírá do velké dřevěné terasy a zahrady. Kuchyně je moderní a otevřená. Koupelna o ploše téměř 10 m² nabízí dostatek místa a byla zařízena s láskou k detailu. Obě ložnice jsou prostorné, jedna z nich má přímý přístup na druhou terasu a malou zahrádku.
Praktický a promyšlený:
Prádelna o ploše přes 2 m² se nachází přímo vedle kuchyně a poskytuje prostor pro pračku, zásoby a další. Díky vlastnímu vstupu, velkorysému pozemku a otevřené obytné struktuře máte pocit, že žijete ve vlastním malém domku – se všemi jeho přednostmi.
Stručně řečeno:
Domov pro lidi s důrazem na kvalitu, udržitelnost a opravdový pocit z bydlení. Spousta prostoru, spousta zeleně, žádné kompromisy. Nastěhujte se, zhluboka se nadechněte, přijďte domů.
V okolí nemovitosti najdete
Stále hledáte to pravé?
Nastavte si hlídacího psa. Nabídky vybrané na míru dostanete souhrnně 1× denně e-mailem. S Premium profilem máte k ruce hlídačů rovnou 5 a když se něco objeví, informují vás obratem.

















