
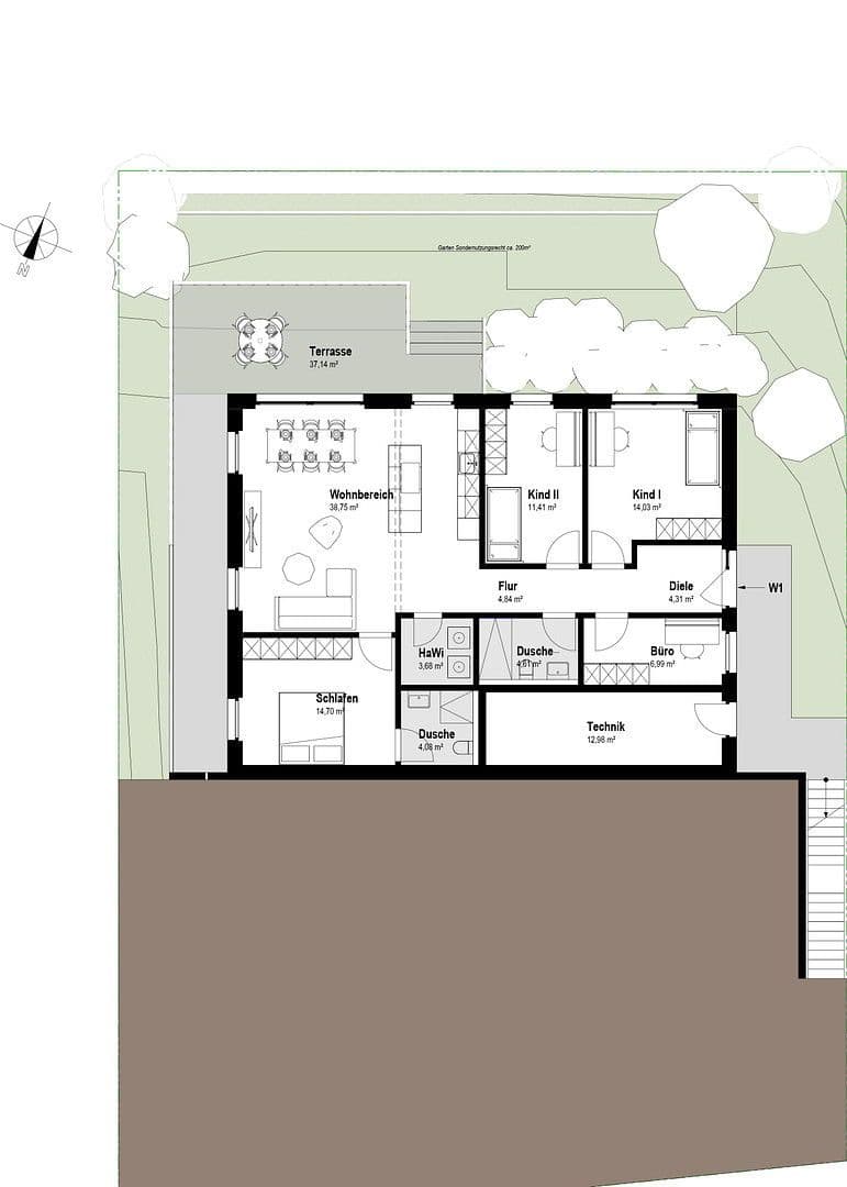
Prodej bytu 4+kk • 127 m² bez realitkyGoethestrasse 5, , Bádensko-Württembersko
Goethestrasse 5, , Bádensko-WürttemberskoMHD 4 minuty autem • ParkováníTento klimaticky šetrný bytový dům se staví v jihozápadní části vesnice, v Goethestraße č. 5 v Affalterbachu, a nachází se přímo na okraji chráněné krajinné oblasti Lemberg.
▪ viditelné stropy z masivního dřeva
▪ vysoce kvalitní okna s trojsklením
▪ topení s individuálním nastavením teploty pro každou místnost a funkcí chlazení
▪ elektrické rolety/žaluzie
▪ dubový parketový podlahový kryt
▪ centrální větrací systém
▪ koupelnové vybavení se značkovými produkty (Laufen, Hansgrohe)
▪ velké bezprůběhové sprchy
▪ vysoké interiérové dveře natřené na bílou (211 cm)
▪ praktická úložná skříňka v chodbě (na přání)
▪ koupelny s kompletním vybavením, sprchovým koutem a sprchovou zónou
▪ moderní dřevěné obložení
▪ příprava pro wallbox pro každou bytovou jednotku
▪ nabíjecí možnost pro elektrokola v úložné místnosti
▪ vnitřní obklady z přírodního kamene
▪ velké terasy/balkóny
▪ promyšlený a atraktivní návrh zahrady a venkovního prostoru
▪ doprovod našeho plánovacího týmu v průběhu celé výstavby
▪ úsporná budova třídy 40 s QNG certifikací – možnost speciálního odpisu 5 % navíc a úvěr až 150 000 € s nízkým úrokem (od 1,30 %)
▪ atraktivní pro investory
V okolí nemovitosti najdete
Stále hledáte to pravé?
Nastavte si hlídacího psa. Nabídky vybrané na míru dostanete souhrnně 1× denně e-mailem. S Premium profilem máte k ruce hlídačů rovnou 5 a když se něco objeví, informují vás obratem.






