Prodej bytu 4+1 • 127 m² bez realitkyHamburg Rahlstedt Hamburg 22143
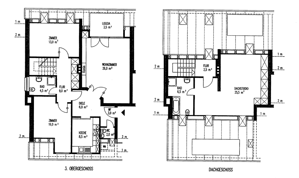
Hamburg Rahlstedt Hamburg 22143MHD 1 minuta pěšky • GarážTento okouzlující 4-pokojový mezonetový byt s přibližně 127 m² obytné plochy se nachází v půdním patře šestipodlažního domu v Hamburku-Rahlstedt. Byt disponuje dvěma koupelnami s přirozeným denním světlem. Světlý obývací prostor s přístupem na lodžii orientovanou na jih, vybavenou elektrickou markýzou, zve k posezení. Vedle kuchyně – která je vybavena vestavěnou kuchyňskou linkou – se nachází kotelna s připojením pro pračku. Přes chodbu s praktickými vestavěnými skříněmi jsou dostupné další dva pokoje. Velká ložnice s až 3 metry vysokým stropem, také vybavená vestavěnými skříněmi, se nachází v horním patře. Zde pak najdete i velkou koupelnu s další sprchou a vanou. Byt bude volný k nastěhování od 1. února 2026. Velká sklepní místnost poskytuje další úložný prostor. K ceně je již zahrnuto místo v garáži a je k dispozici také společná zahrada.
Rahlstedt nabízí rozmanitou obytnou čtvrť s klidnými, zelenými částmi a dobrou infrastrukturou – ideální pro rodiny a dojíždějící. Jedná se o nejrozsáhlejší městskou část Hamburku, nacházející se v okrese Wandsbek, na severovýchodním okraji města. Lokalita vyniká kombinací městského šarmu s blízkostí přírody. Se svými četnými parky a zelenými plochami, mezi které patří Stellmoorer Tunneltal a Berner Wald, nabízí Rahlstedt odpočinek a volnočasové aktivity přímo za rohem.
Nejbližší autobusová zastávka je vzdálena 100 m a nádraží Rahlstedt 1000 m. Z nádraží se dostanete na hlavní nádraží během 16 minut. V současnosti se také staví nová linka S-Bahn S4, která dále zlepší spojení do centra města.
Okna:
• Částečně dvojskla vyrobená z plastu
• Částečně trojskla vyrobená z plastu (s venkovními rolety)
Podlahové krytiny:
• Parkety z jurty, koberec, designová podlaha s efektivním vzhledem dřeva, dlaždice
Kuchyně:
• Krémová vestavěná kuchyň, již zahrnutá v ceně
Koupelny:
• Koupelna s denním světlem a sprchou v horním patře
• Koupelna s denním světlem, vanou a oddělenou sprchou v půdním patře
Bylo provedeno několik modernizací.
Prosíme o pochopení, že odpovídáme pouze na kompletní písemné dotazy s uvedením jména, adresy a telefonního čísla.
Všechna prohlášení jsou bez záruky. Případné nepřesnosti a změny vyhrazujeme.
Dotazy od makléřů nejsou vítány. Podle § 7 UWG jsou nevyžádané kontakty makléřů bez výslovného souhlasu příjemce zakázány!
V okolí nemovitosti najdete
Stále hledáte to pravé?
Nastavte si hlídacího psa. Nabídky vybrané na míru dostanete souhrnně 1× denně e-mailem. S Premium profilem máte k ruce hlídačů rovnou 5 a když se něco objeví, informují vás obratem.












