Prodej bytu 6+kk • 200 m² bez realitkyNerudova, Tábor - Tábor, Jihočeský kraj
Nový
Nerudova, Tábor - Tábor, Jihočeský krajVybaveno • Výtah • Parkování • Sklep 8 m² • Terasa 150 m²Cena16 900 000 Kč
Tato nemovitost již od 66 036 Kč měsíčně s roční úrokovou sazbou od 4,19 %.
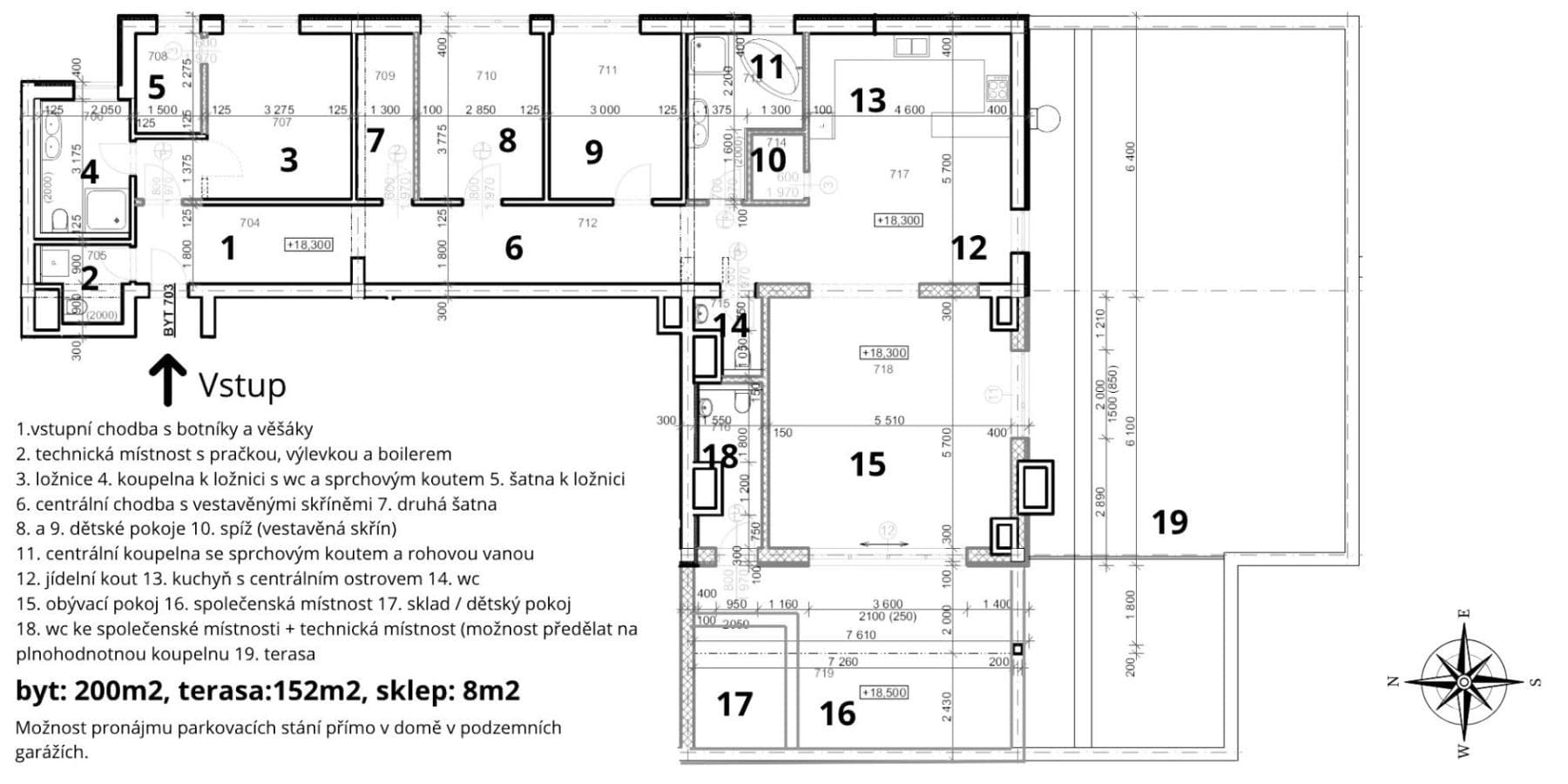
Nabízím k prodeji nadstandardní loftový byt v centru Tábora. 6+kk (2 x koupelna, 3 x toaleta). Půdorys bytu viz. fotogalerie. Pokud Vás tato nabídka zaujala, rád Vám sdělím všechny informace a detaily nabídky osobně.
RK prosím nevolat.
Parametry nemovitosti
| Stáří | Do 10 let |
|---|---|
| Stav | Novostavba |
| Dispozice | 6+kk |
| Podlaží | 7. podlaží z 7 |
| Vytápění | Plynové |
| Vlastnictví | Osobní |
| Rekonstrukce | Kompletní |
| Užitná plocha | 200 m² |
| Cena za jednotku | 84 500 Kč / m2 |
| Dostupné od | 6. 11. 2025 |
|---|---|
| Konstrukce budovy | Cihla |
| Vybaveno | Vybaveno |
| Provedení | Luxusní |
| Číslo inzerátu | 962494 |
| PENB | G - Mimořádně nehospodárná |
| Umístění | Centrum |
| Rizika | Prověřit » |
Co tato nemovitost nabízí?
| Bezbariérový přístup | |
| Parkování |
| Sklep 8 m² | |
| Výtah | |
| Terasa 150 m² |
V okolí nemovitosti najdete
Vzdálenost k:
Cena16 900 000 Kč
Tato nemovitost již od 66 036 Kč měsíčně s roční úrokovou sazbou od 4,19 %.
Stále hledáte to pravé?
Nastavte si hlídacího psa. Nabídky vybrané na míru dostanete souhrnně 1× denně e-mailem. S Premium profilem máte k ruce hlídačů rovnou 5 a když se něco objeví, informují vás obratem.







