Prodej bytu • 309 m² bez realitkyFriedrich-Pieper-Str. 6, , Severní Porýní-Vestfálsko
Prodává se soukromá čtyřčlenná bytová jednotka se čtyřmi parkovacími stáními v kompletně zrekonstruované vile v exkluzivní čtvrti vila Friedrichshöhe/Am Königsberg v Detmold-Heiligenkirchen, k prvním odběratelům.
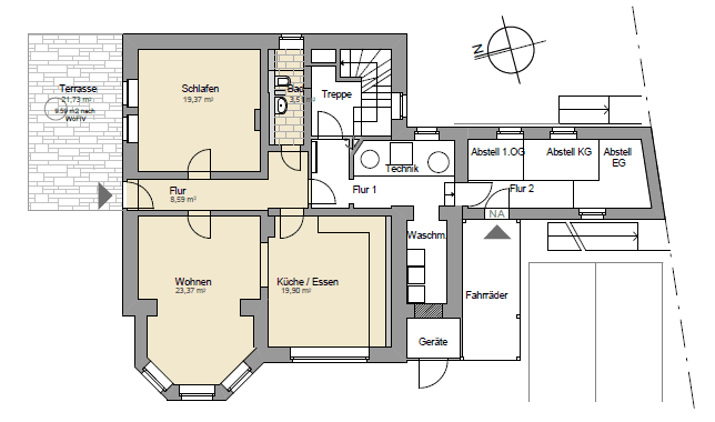
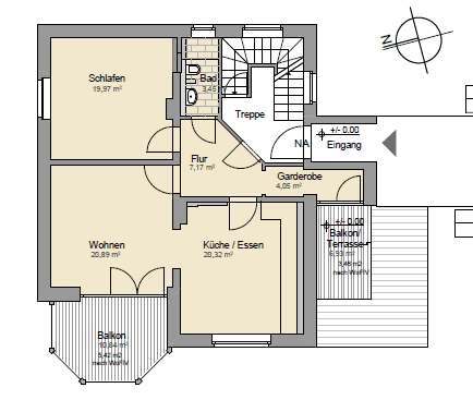
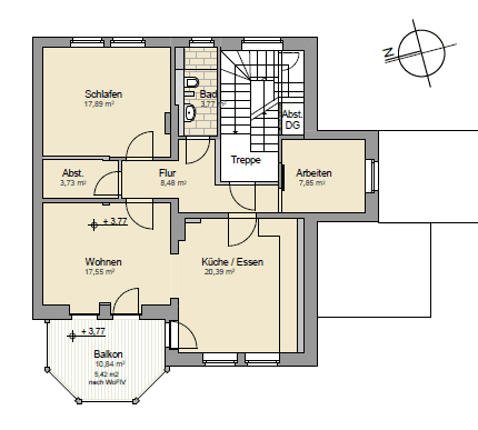
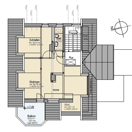
Byty jsou k prodeji jednotlivě nebo dohromady. Celková obytná plocha činí 309 m² se 13 místnostmi. Pozemek má rozlohu 785 m².
Více informací o budově a fotografie bytů naleznete na www.villa-sonnenblick.com.
Lokalita se vyznačuje klidnou obytnou zónou s exkluzivními vilami a výhledem na památník Hermannsdenkmal. Také muzeum LWL Freilichtmuseum je vzdáleno jen několik minut.
Zvláště pak je třeba zmínit rodinně přátelské obytné prostředí a velmi dobrou infrastrukturu. Linka autobusu 701 je vzdálena přibližně 200 m, a pěkné centrum Detmoldu se na kole dostanete za 10 minut. V Heiligenkirchen najdete veškeré obchody a zařízení pro každodenní potřeby (Rewe, lékárnu, lékaře, poštu, čerpací stanici, mateřskou školu, školy apod.).
Budova je vybavena nejmodernější tepelno-vzduchovou tepelnou čerpadlem se centrálním zásobením teplou vodou a podlahovým vytápěním na všech patrech. Velké balkony zajišťují jedinečný pocit z bydlení.
Parametry nemovitosti
| Stáří | Nad 50 let |
|---|---|
| Číslo inzerátu | 962652 |
| Užitná plocha | 309 m² |
| Stav | Po rekonstrukci |
|---|---|
| PENB | B - Velmi úsporná |
| Cena za jednotku | 4 029 € / m2 |
Co tato nemovitost nabízí?
| Balkón | |
| Sklep | |
| Parkování | |
| Terasa |
| Bezbariérový přístup | |
| MHD 2 minuty pěšky |
V okolí nemovitosti najdete
Stále hledáte to pravé?
Nastavte si hlídacího psa. Nabídky vybrané na míru dostanete souhrnně 1× denně e-mailem. S Premium profilem máte k ruce hlídačů rovnou 5 a když se něco objeví, informují vás obratem.









