Pronájem domu 5+1 • 129 m² bez realitkyHebbelstr.6 u. 6a, , Severní Porýní-Vestfálsko
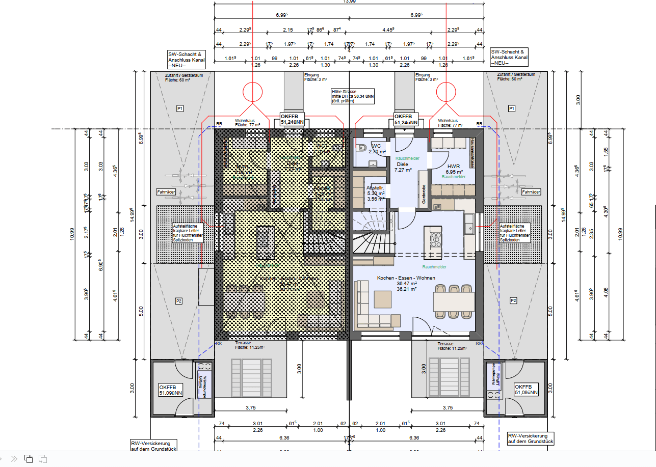
Hebbelstr.6 u. 6a, , Severní Porýní-VestfálskoMHD 2 minuty pěšky • ParkováníTyto dvě novostavby – polodvojdomky – Vám a Vaší rodině nabízejí s přibližně 129 m² obytné plochy nejmodernější komfort.
Domy se nacházejí na parcele o rozloze 246 m² v Neuenkirchen/St. Arnold a budou k 1. březnu 2026 připraveny k nastěhování.
Díky prostornému dispozici přízemí (otevřený koncept obývacího, jídelního a kuchyňského prostoru) vzniká moderní a přívětivý životní prostor, ideální pro společenská setkání. Pro milovníky oddělené kuchyně existuje možnost stavebního oddělení kuchyně od obývacího/jídelního prostoru. Samostatná vybavená kuchyně je na starost nájemci. Dále se v přízemí nachází velký skladovací prostor, technická místnost s připojením pro pračku a sušičku, a také návštěvnická toaleta.
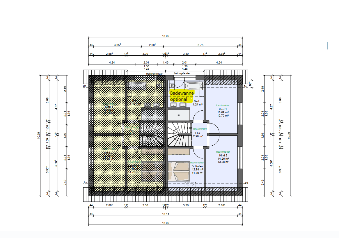
Podkroví nabízí tři ložnice a moderní koupelnu s bezprahovou sprchou. Je zde možnost instalace vany.
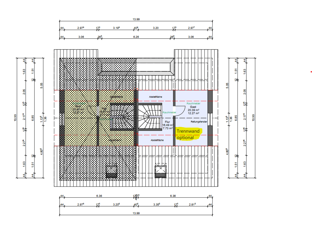
V půdním prostoru se nachází další světlý prostor o rozloze více než 12 m², který lze ideálně využít jako kancelář, pokoj pro hosty či další ložnici.
Podlahové vytápění v přízemí a podkroví, termostaty v každé místnosti, elektrické rolety a plastová okna s trojitým izolačním zasklením slibují nejvyšší komfort bydlení.
Všechny obytné místnosti budou vybaveny elegantní podlahovou krytinou s dřevěným vzhledem. Výjimkou je půdní prostor (kde budou položené pohodlné kobercové dlaždice) a koupelna/hostinská toaleta/skladová místnost/technická místnost – tyto prostory budou opatřeny moderními, velkoformátovými dlaždicemi. Styl doplňují bílé dveře.
Polodvojdomky se vyznačují moderní architekturou, konstrukcí v dřevěné rámové technologii a úsporným, klimaticky šetrným vytápěcím systémem (energetická účinnost třída KfW 40+). Kombinace vzduch-voda tepelného čerpadla s fotovoltaickou elektrárnou a bateriovým úložištěm snižuje provozní náklady, zlepšuje ekologickou bilanci a zvyšuje energetickou nezávislost.
Na terase s orientací na severovýchod se dá i v horkých letních dnech příjemně pobývat. K dispozici je carport a navíc i domek pro zahradní nářadí.
Domy budou předány k nastěhování (novostavba/první bydlení) s hladkou textilií a natřené na bílo.
Celkově jde o skvělou nabídku, o které se můžete osobně přesvědčit při prohlídce.
Máte zájem? Prosím, zasílejte svou poptávku výhradně e-mailem – rádi Vám odpovíme.
Polodvojdomky se nacházejí v klidné a ustálené obytné čtvrti ve St. Arnold, oblíbené části Neuenkirchen v okrese Steinfurt.
V zasazené zelené a klidné krajině na okraji Münsterlandu se pro milovníky přírody idylický venkovský život spojuje s dobrou infrastrukturou a výhodnou dopravní dostupností.
Přímo před domem se rozkládá okouzlující rekreační oblast s dvěma rybníky vhodnými k rybaření! Kolem je zaveden dobře přístupný okružní chodník s informačními tabulemi – ideální pro odpočinek, pozorování a relaxaci. Naučné stezky o přírodě a vodě a také cvičební stezka s přístroji nabízejí jak aktivní volnočasové možnosti, tak i odpočinek.
St. Arnold nabízí vše potřebné pro každodenní život: pekárnu, supermarket, mateřskou školu, základní školu, střední školu, dále lékaře a sportovní kluby jsou přímo na místě. Nedaleké centrum Neuenkirchen a okresní město Rheine jsou dostupné za několik minut autem či autobusem.
Neuenkirchen s přibližně 14 000 obyvateli nabízí vysokou kvalitu bydlení a života. Aktivní společenský život, četné kulturní akce, optimální infrastruktura, dobré nákupní možnosti a týdenní trh slibují pestrost a vytvářejí charakter obce.
Specifikace:
• Vytápění pomocí vzduch-voda tepelného čerpadla
• Fotovoltaická elektrárna s bateriovým úložištěm
• Podlahové topení v přízemí a podkroví (půdní prostor s radiátorem)
• Termostaty v každé místnosti
• Elektrické žaluzie
• Obytné prostory s designovou podlahovou krytinou v imitaci dřeva (půdní prostor s kobercovými dlaždicemi)
• Koupelna/hostinská toaleta/skladová místnost/technická místnost s moderními velkoformátovými dlaždicemi
• Koupelna s bezprahovou sprchou
• Carport
• Domek pro zahradní nářadí
V okolí nemovitosti najdete
Stále hledáte to pravé?
Nastavte si hlídacího psa. Nabídky vybrané na míru dostanete souhrnně 1× denně e-mailem. S Premium profilem máte k ruce hlídačů rovnou 5 a když se něco objeví, informují vás obratem.






